990 Offices

Project Details

Project Name
990 Offices
Location
990 E 17th stsuite 100TucsonAZ85719
Project Types
Office
Shared By
Rob Paulus
Project Status
Built
Year Completed
2009
Style
Modern
Size
4,292 ft²
Team
Structural Engineer: Schneider Structural Engineers
Electrical Engineer: GLHN Architects and Engineers
Landscape Architect: Chris Winters & Associates
Contractor: Mega Trend Inc.
Construction Management: Rob Paulus Architects
Photographer: Liam Frederick - Bradley Wheeler

Project Description

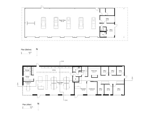
The 990 Offices re-purposes an existing repair shop building into 4,292 square feet of modern professional office building. Taking advantage of the efficient and open structure a unique office space is created to serve design-oriented users. The transformation begins with the exterior skin. In place of the existing standard metal building panel, a new skin of lightweight aluminum panels form a rain screen over a heavily insulated wall system. A bright white roof with high R-value encloses the building with south facing shaded monitor skylights at each of the four bays. Each of the original 10’x10’ Roll-up doors along the north façade is replaced with clear glass to provide views to the landscaped courtyard and mountains beyond. Additional apertures are inserted along the East and West of the building to expose hints of structure and activity inside. Along the South facade, a thin strip window runs high along the length of the building to maximize the natural lighting possibilities within the interior. Inside, an undulating wood slat ceiling; think violin, creates an organic flowing space providing spatial interest and acoustic relief. A shared restroom core at the center of the building frees up interior space for each tenant to create a plan to suit their needs. Outside, lush desert landscaping and re-purposed concrete Hardscape enliven the outdoor spaces throughout the site to create a virtual oasis with shade and plant color. The building plays off its neighbors including other award winning projects by Rob Paulus Architect: to the north, the re-adaptation of the Ice House and Cold Storage Building into the successful Ice House Lofts, and to the east the popular Barrio Metalico residential development. This third project completes the block with complementary design and a common sensitivity to smart urban development.

Upcoming Events

  • Design Smarter: Leveraging GIS, BIM, and Open Data for Better Site Selection & Collaboration

    Live Webinar

    Register for Free
  • Slate Reimagined: The Surprising Advantages of Slate Rainscreen Cladding

    Webinar

    Register Now
  • The State of Residential Design Today: Innovations and Insights from RADA-Winning Architects

    Webinar

    Register for Free
All Events