8 Burnley St. ‘A Place to Live’

Project Details

Project Name
8 Burnley St. ‘A Place to Live’
Architect
SJB Architects
Project Types
Project Scope
New Construction
Shared By
Symone
Project Status
Built
Year Completed
2016
Size
8,718 ft²

Project Description

FROM THE ARCHITECTS:

As the name suggests, the primary driver for the final building in the ‘A Place to Live’ development is the people who live here. Innovative floor-plans, generous balconies, premium finishes, passive thermal control and cross ventilation coalesce to provide the intangible feeling of comfort these apartments embody. And, while these elements are extremely important to the residents, what the design achieves is far broader. Bold, yet restrained, the result is a curvilinear form that posits rigour of scale and proportion in a single sweeping gesture that is both place making and highly aspirational.

Key to the building’s appeal is a combination of calm and strength, where the rhythm of line negates the bustle of the intersection. Visually cueing the layered curves of Frank Lloyd Wright’s Guggenheim in New York, wide bands of powder-coated aluminium composite seemingly float in space thanks to deeply recessed balconies. The design however, is wholly cognisant of the site and not simply the hero curve of the corner, no matter how dramatic! The result is an unexpected and extremely beautiful transition that exaggerates the visual grace of the cantilevered balconies. It also creates a clearly defined corner from which to commence the portion overlooking Williams Reserve.

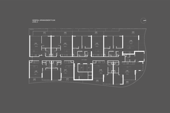
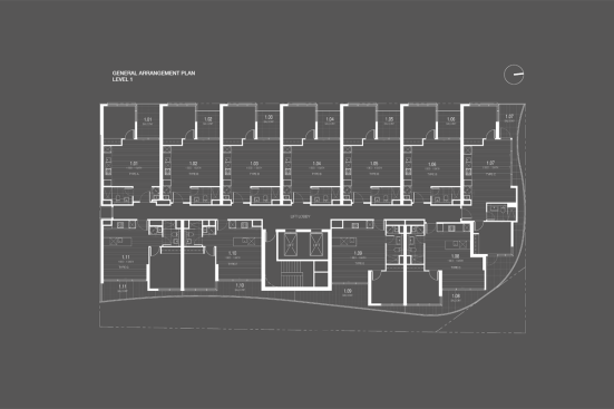
Occupying a site of approximately 810m2 the sculptural form of the 63 apartment, mix use building demonstrates a tailored response to key drivers inherent to the location: the busy intersection; and Williams Reserve. Pragmatic concerns, raised in shadow analysis, have been mitigated by a stepped layering of floors that ensures minimal shadow impact on the reserve. Additionally this has the benefit of increased sight lines, with no awareness of the upper floors from within 22 metres. And, while this solution is invisible by definition, what it achieves for the overall form is imparted as a sense of lightness a solid block cannot deliver. This is driven home by the extraordinary design that visually floats the whole building above a fully transparent ground floor.

This palette is continued in the apartments, which benefit from generous balconies finished with fine louvres and substantial glazing. Arranged to maximise privacy and view, the floor-plates mimic the individual floor-plans in cognition of neighbours, view and amenity. Completing the building at ground floor are a convenience store and café, plus wellness facilities including a gym, pool and sauna. Indeed, taking full advantage of the lower floor glazing, the pool, which runs along the side facing Williams Reserve, allows tenants to fully engage with the reserve while doing their morning laps.

Upcoming Events

  • Design Smarter: Leveraging GIS, BIM, and Open Data for Better Site Selection & Collaboration

    Live Webinar

    Register for Free
  • Slate Reimagined: The Surprising Advantages of Slate Rainscreen Cladding

    Webinar

    Register Now
  • The State of Residential Design Today: Innovations and Insights from RADA-Winning Architects

    Webinar

    Register for Free
All Events