7th Street

Project Details

Project Name
7th Street
Location
BerkeleyCA
Project Types
Single Family
Shared By
Sidell Pakravan
Project Status
Built
Year Completed
2022
Style
Modern
Size
1,500 ft²
Team
Design Principal: Rudabeh Pakravan
Design Principal: Kristen Sidell

Project Description

Sidell Pakravan puts a new spin on the traditional bungalow.

The 7th Street house responds to the Berkeley vernacular by reassessing contextual response and reconfiguring contemporary residential space.

Bungalows from the 1920s extend across the ‘flats’ of Berkeley, providing efficient wood-framed housing in the walkable, level neighborhoods. These bungalows share a consistent spatial typology and relationship to the street.

The 7th Street house begins as a formal inquiry emerging from a critical re-examination of context. Context is not scalar relationships or elevational consistencies. Instead, context is understood as something spatial that can respond to experiential needs.

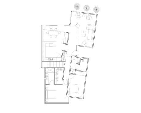
The bungalow typology consists of a simple rectangular plan filled with rooms that abut each other. Each room houses one typical residential program – sleeping, cooking, bathing, or socializing. A simple roof caps everything, yielding a blocky & undifferentiated mass. The interiors are dark and cramped, with no spaces for transition. Throughout the neighborhood, this pattern recurs ubiquitously.

The client, a couple from Atlanta, purchased a lot several doors down from their daughter and grandkids to spend their retirement near family. An existing, dilapidated home was torn down, and Sidell Pakravan was engaged to reinterpret the traditional Berkeley bungalow. Located on a small lot, the clients wanted ample light and the feeling of openness and wanted everything located on one level so that they could age in place.

In order to create a richer residential experience, the design team’s reading of context was not the pattern of openings on the exterior walls, but the volumes contained within the bungalow. The design strategy expands, shifts, and rotates these volumes to respond to needs for natural light, privacy, or connection. The volumes retain their original functions – bedrooms, kitchen, living room, and bathrooms – but are modified slightly to meet contemporary needs. All the rooms retain the intimate scale associated with the bungalow typology yet gain the benefits of this volumetric strategy: natural light, enhanced public/private distinctions, and cross-connection between rooms.

At the exterior, rather than follow the bungalow strategy of using a highly articulated front porch to hide the bulky massing, the 7th Street House immediately expresses the four primary masses derived from the critical context analysis. The three-dimensional aggregation of these masses inherently creates a sheltered entry and welcoming backyard.

Material choices enhance the formal strategy. Each volume is uniformly finished with a neutral but light-reflecting white plaster. Where the volumes intersect, wood panels with an articulated level of relief and openings highlight the contrast. Other openings are simple windows that yield to the monolithic form sheathed in white plaster.

Upcoming Events

  • Design Smarter: Leveraging GIS, BIM, and Open Data for Better Site Selection & Collaboration

    Live Webinar

    Register for Free
  • Slate Reimagined: The Surprising Advantages of Slate Rainscreen Cladding

    Webinar

    Register Now
  • The State of Residential Design Today: Innovations and Insights from RADA-Winning Architects

    Webinar

    Register for Free
All Events