62M

Project Details

Project Name
62M
Location
62 MacDonald AveWinnipegMBCANADAR3B 0H8
Project Types
Multifamily
Project Scope
New Construction
Shared By
Shannan
Project Status
Built
Year Completed
2019
Size
28,000 ft²

Project Description

62M is a residential development located at the edge of downtown Winnipeg and the Red River. Unofficially dubbed the “flying saucer” or “UFO” due to its circular shape rising over the city, the condominium emerges on the skyline with a distinctive presence, rising from between the adjacent freeway and the backs of
neighbouring properties.

The building’s marginal site was considered undesirable due to its industrial nature, restricted views out of the site, and lack of street frontage. This resulted in a unique opportunity and challenge, requiring 5468796 to devise a design that would flip perceptions and capitalize on the project’s close proximity to the Red River and Historic Exchange District. Designed for a budget equal to that of
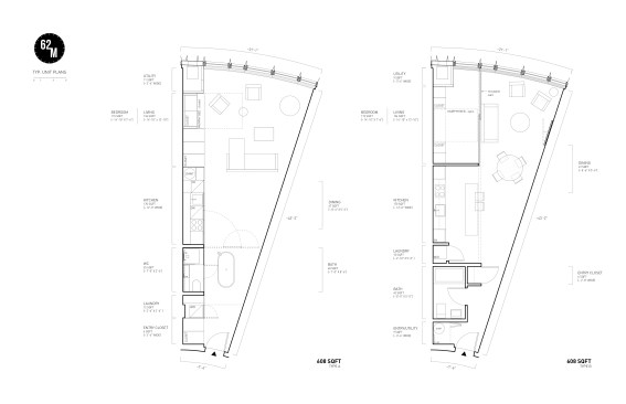
standard wood frame building construction, each of the 40 entry-level studio units are under 57 square metres (610 sf).

62M’s unique form results from practical solutions to the challenges of both site and budget. Lifting the building up on 35’ high columns, the design overcomes the limitations of the surrounding area while generating unprecedented sight-lines. Entry to the building is through a centralized concrete core. Housing a stairwell, elevator and service shaft, it also provides all of the lateral stability for
the structure. Unusual for Canada, and particularly Winnipeg where temperatures
can reach minus 40 degrees Celsius, the corridors are covered but open-air, with
concrete surfaces and chain link fencing borrowed from the pervasive industrial nature of the project’s surroundings. Devised to combat alienation induced by endless nondescript corridors, the suites are accessed through a circular ‘agora’ – where one can see more than half of all the suite entry doors – creating opportunities for contact and the potential to meet one’s neighbours.

A circular design is the project’s defining innovation. Reducing the constructed exterior envelope by 30 per cent relative to a comparably sized rectilinear building, it was devised to offset the costs of elevating the building itself. The 360 degree plan is
spatially efficient and cost-effective, providing a narrow circumference/area dedicated to communal corridors and the widest possible perimeter for suite windows in order to optimize construction costs. Once the platform was constructed ‘in the air,’ the construction proceeded as for a standard two-storey building. Two layers of 20 pie-shaped layouts also simplified assembly. Each suite is arranged so that the entry and utility spaces occupy the narrow end, closest to the circulation core. This configuration frees the remaining square footage for a flexible and airy open living area that culminates in an expansive wall of six metre floor-to-ceiling glass.

At ground level, 20 supporting columns spaced between double parking stalls form a ring just inside the building’s perimeter. The columns’ thinness is a clear counterpoint to the band of housing above, emphasizing its weight and mass. In order to reduce construction timelines and stick to a very tight budget, the building
was conceived as a pre-fabricated structure. The pre-cast concrete columns – shaped to provide ledges for lighting and space for parking – were made off-site over the winter and arranged along a radial grid in the spring. Once the cast-in place core was built to the height of the columns, the radial grid of steel beams aligning to the suite-demising walls link the columns to the core. Pre-fabricated
wall and wood floor sections in the shape of wedges were craned into place to form the doughnut-shaped two storey building. A pre-fabricated unitized system of conventional windows was developed to complete the envelope around the full building perimeter. A series of custom-formed fins align in the breaks between the windows and weathering steel cladding, with the benefit of concealing faceting. The resulting building breaks all conventions for entry-level developer housing while making use of a derelict site to provide a striking new addition to the Winnipeg skyline.

Finishes are intentionally raw wherever possible to further simplify construction and minimize future condominium maintenance costs. The primary material palette consists of cast-in-place concrete, weathering steel and glass in a
conscious attempt to prove an alternative to typical product-library-composed facades characteristic of many ‘stumpies’.

Part way through the project, 5468796 recognized the potential of the central core and the uniqueness of the address to construct an efficient, micro penthouse over the elevator. Making use of every inch of available space, the fully functioning guest suite includes a bathroom with a sauna, a kitchen with a sunken living room, bed and bath, and a roof deck. A glass box jewel, the penthouse glows like a lantern above the “saucer.” Inside, mirror polished columns support the pre-fabricated roof structure, refracting light and surrounding landscape into the living space and giving the illusion of 360 degrees of uninterrupted views of the city and the prairie horizon beyond.

Upcoming Events

  • Design Smarter: Leveraging GIS, BIM, and Open Data for Better Site Selection & Collaboration

    Live Webinar

    Register for Free
  • Slate Reimagined: The Surprising Advantages of Slate Rainscreen Cladding

    Webinar

    Register Now
  • The State of Residential Design Today: Innovations and Insights from RADA-Winning Architects

    Webinar

    Register for Free
All Events