38 Dolores St.

Project Details

Project Name
38 Dolores St.
Location
San FranciscoCA
Architect
BAR Architects
Project Types
Multifamily
Shared By
dmadsen
Project Status
Built

Project Description

Located at the prominent corner of Market and Dolores Streets, 38 Dolores transforms a vacated auto showroom into a sustainable, 8-story, multifamily development at the confluence of San Francisco’s most vibrant neighborhoods. The project features a flagship 30,000 square foot Whole Foods Market with 81 luxury residential rental condos above.

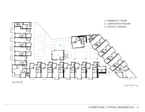
38 Dolores utilizes 13 unique floor plans to support a highly diverse marketplace, optimize building efficiency and respond to the site’s unique geometry. Residential units have open plans providing spatial flexibility in the kitchen and living areas. Spectacular views connect residents to the city while the landscaped courtyard, communal fire pits and commons room are designed to strengthen community interaction.

The building’s design also takes advantage of the tall ground floor retail area to provide an additional level of residential liner units above the retail area that did not require the full height of the main retail space. This creative solution added 12 units that would not otherwise exist.

Building materials are elegant and include glass window wall, ceramic panel, brick, precast concrete, horizontal bevel siding and exterior cement plaster. These tactile materials reflect those found in the adjacent neighborhoods.

Tracking LEED Gold, 38 Dolores incorporates single loaded open-air circulation providing fully passive ventilation and enhanced day-lighting. This highly sustainable solution enables all units above the podium to receive natural light and ventilation and eliminates the need for residential air conditioning. Other sustainable strategies include a 5,000 sf green roof (over 40% of the roof area) to both control and filter rainwater. On-site one-to-one bicycle parking and repair developed in collaboration with the San Francisco Bicycle Coalition as well as City CarShare ensure easy and sustainable transportation alternatives for residents.

Providing quality housing, community serving retail and a new “urban parklet”, San Francisco Magazine dubbed 38 Dolores “all of the city’s planning goals made manifest on one street corner”.

Upcoming Events

  • Design Smarter: Leveraging GIS, BIM, and Open Data for Better Site Selection & Collaboration

    Live Webinar

    Register for Free
  • Slate Reimagined: The Surprising Advantages of Slate Rainscreen Cladding

    Webinar

    Register Now
  • The State of Residential Design Today: Innovations and Insights from RADA-Winning Architects

    Webinar

    Register for Free
All Events