3435 Main

Project Details

Project Name
3435 Main
Location
Kansas CityMO
Architect
El Dorado
Project Types
Multifamily
Project Scope
New Construction
Shared By
katie_gerfen
Project Status
Built
Year Completed
2017
Size
75,000 ft²

Project Description

2017 Residential Architect Design Awards
Multifamily Housing | Citation

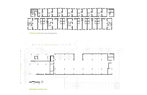
The transit-oriented, mixed-use 3435 Main project was designed by local firm El Dorado in Midtown Kansas City, Mo., a neighborhood with a vital mix of small businesses, restaurants, and residences south of downtown. Eighty units are configured along a double-loaded corridor on four floors above a ground floor plinth that contains covered parking, a lobby, and retail space. The modular apartments were sized based on a studio configuration, with additional units added to create one- and two-bedroom units.

The building’s aesthetic is established by the expression of its modular construction. A subtle modulation of the stacked units causes each individual piece to shift in and out on the north and south façades. Clad in aluminum composite panels in five different shades of gray, the designers vary the tone across the façade to maximize the illusion of depth and movement. Modular construction also helped deliver the building at a low price point. “It does a tremendous job with an incredibly limited budget,” David Baker said. The lobby opens through glass walls to the corner of Main Street and East 34th Terrace. It features an exposed sculptural stair that cantilevers from the concrete elevator core, with each tread/riser/guardrail folded from a single sheet of plate steel.

The 3435 Main complex is located on the initial phase of Kansas City’s new streetcar system, and is within walking distance of 10 bus stops. Within 2.5 miles are four major universities and two teaching hospitals, so the 75,000-square-feet market rate building is targeted at young working professionals and students who aren’t dependent on cars and interested in a contemporary architectural expression. What’s more, the building increases density in a neighborhood that hasn’t seen this level of architectural attention in some time. “They really tried to do something in this neighborhood that seems like a leap of faith,” Katherine Chia said. “And they’ve done it in an interesting way—the undulation is really nice.”

Visit ARCHITECT to see the rest of the winners of the 2017 Residential Architect Design Awards.

FROM THE ARCHITECTS:

3435 Main is part of a new wave of multifamily housing construction on Main Street in urban midtown Kansas City. The site is closely connected to a vital mix of small businesses, restaurants, and residences, about 20 blocks south of downtown. The project is a transit-oriented, mixed-use development, designed for a new generation of urban dwellers that depending less on cars. There are roughly 10 bus stops within walking distance of the 80-unit development, and Main Street hosts the initial phase of Kansas City’s new streetcar system that will soon extend past the site on its way south to the Country Club Plaza, Brookside, and Waldo neighborhoods. 3435 Main is an enthusiastic endorsement of innovation in Kansas City’s increasingly homogenous market rate housing offerings. It utilizes a complex and rigid set of rules; every component is choreographed to create a composition that responds to site constraints, solar path and construction methods. The modules were placed in a stepped pyramid pattern, creating an undulated form with shadow patterns. Colors have been chosen based on how the human eye perceives depth —dark tones create the perception of greater depth relief. Five gray tone shades correspond directly to the depth of the undulating modules, creating a subtle gradation across the façades.

Upcoming Events

  • Build-to-Rent Conference

    JW Marriott Phoenix Desert Ridge

    Register Now
  • Reimagining Sense of Place: Materiality, Spatial Form, and Connections to Nature

    Webinar

    Register for Free
  • Homes that Last: How Architects Are Designing a Resilient Future

    Webinar

    Register Now
All Events