308 Mulberry

Project Details

Project Name
308 Mulberry
Project Types
Shared By
dmadsen
Project Status
Built
Size
2,338 ft²

Project Description

AIA 2013 Small Project Awards winner in Category 3: A small project construction, object, work of environmental art, or architectural design under 5,000 SF constructed by the architect. The architect must have had a significant role in the construction, fabrication and/or installation of the work, in addition to being the designer.

FROM THE AIA:

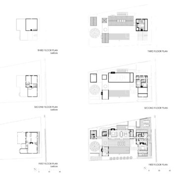
The starting point for this project is small house at 308 Mulberry Street, originally constructed in the early nineteenth-century in the heart of the historical district of Lewes. In the redesign, the exterior of the original structure is meticulously restored. A shed-roofed screened porch, storage room and poorly proportioned living space added to the back of the house in the early twentieth-century were removed. While the exterior of the original house is restored with historically correct detailing, the four new pavilions are crisply detailed, without overhangs and trim. The additions are conceived as one-story pavilions organized around a new swimming pool and large Deodor Cedar tree, located at the rear of the property. Large expanses of glass set in black steel frames punctuate the cedar walls. Tall red brick chimneys and landscape walls add vertical and horizontal elements, completing the composition. The original house now contains the main entry and four bedrooms. The interiors are decidedly modern with white walls void of trim, casings, moldings and baseboard that engage white ash flooring. An open, floating staircase, glass walls, aluminum and stainless steel contribute to the modern palette of elements and materials.
Jury Comments: This is a great tribute to the original architecture. Has an ephemeral quality that makes it ambiguous and attractive.
Modern spaces that very skillfully work together with a contextual street-front house. A series of distinctly articulated pavilions provide beautiful indoor and outdoor spaces. The interior’s ceilings embrace the spirit of vernacular architecture and the excitement of modern light and airy living. This project is contextual, sleek and very well grounded. The tight compound of interconnected pavilions is a highly successful design strategy.
A demanding redesign that respectfully preserves the original architecture, while artfully transforming the home. There is a calm, logical quality to this design that is not easily attained. Additionally, a smart use of scale and light makes this home all the more award worthy.
Traditional architectural forms so often fall into nostalgic iterations of bygone eras without acknowledging the material advances that have been made, the economic changes that have come to bear, and the societal preferences that have evolved over decades and centuries. Modern architecture also frequently discards the timeless aspects of tradition that should truly be revered and respected. This project brings together those timeless aspects of tradition with the sensibilities that reflect this time in a striking composition of form and space. Detailing is highly refined such that systems are subverted to space and surface, and the occupant can truly enjoy the richness of the spaces both interior and exterior.

http://www.aia.org/akr/Resources/Documents/AIAB098273
http://www.robertgurneyarchitect.com/

Upcoming Events

  • Design Smarter: Leveraging GIS, BIM, and Open Data for Better Site Selection & Collaboration

    Live Webinar

    Register for Free
  • Slate Reimagined: The Surprising Advantages of Slate Rainscreen Cladding

    Webinar

    Register Now
  • The State of Residential Design Today: Innovations and Insights from RADA-Winning Architects

    Webinar

    Register for Free
All Events