2501 M

Project Details

Project Name
2501 M
Location
2501 M StreetWashingtonDC
Project Types
Shared By
CORE DC
Project Status
Built
Style
Modern
Size
161,000 ft²
Team
Principal: Guy I. Martin, AIA
Lead Architect: Ron Ngiam, AIA

Project Description

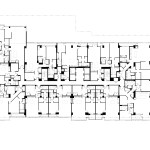
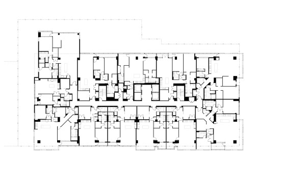
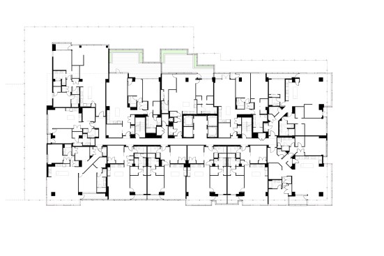
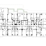
PRP Real Estate Investment Management chose CORE as Design Architect to transform a 1980s mixed-use property into 59 luxury condominiums and a new 12,000 SF ground floor restaurant space for Nobu, the world’s most recognized Japanese restaurant.

Originally an outdated office/residential building, 2501 M presented a challenge but also an opportunity to completely modernize and reshape a building in a class A location in Washington, DC. Unique to both design and construction, the top three floors of the building were to remain in place and occupied during the planning and construction phase of the new condominiums. The conversion of 2501 M into a residential building allowed CORE to increase the FAR by expanding the floor plate of the bottom six floors. Unique structural solutions were employed to expand the building envelope. Without the addition of new columns to the existing concrete slab, new horizontal expansions were designed to create a floating bay window effect. In total, the new design increased the floor area by almost 27,000 SF. The redesigned building integrates the newly created with the existing condominium units into one envelope, epitomized by the new grand lobby. The formerly dark interior space was replaced with a bright two-story glass lobby and marked by an L-shaped entrance canopy, which connects the interior space with the streetscape. 2501 M also features a party room, fitness facilities, and in-building parking. Photography: Ron Ngiam

Upcoming Events

  • Slate Reimagined: The Surprising Advantages of Slate Rainscreen Cladding

    Webinar

    Register Now
  • The State of Residential Design Today: Innovations and Insights from RADA-Winning Architects

    Webinar

    Register for Free
  • Specifying Smarter with Copper-Clad Aluminum (CCA) Metal-Clad Cable

    Webinar

    Register for Free
All Events