222 Taylor

Project Details

Project Name
222 Taylor
Location
San FranciscoCA
Project Scope
New Construction
Shared By
katie_gerfen
Project Status
Built
Size
126,000 ft²

Project Description

This article appeared in the February 2020 issue of ARCHITECT.

San Francisco’s Tenderloin District is not a place visitors typically go to see architecture. While technically part of the downtown area—and just steps from some tony shopping districts—the neighborhood hasn’t seen the prosperity associated with the city’s decades-long tech boom. “It still feels pretty rough,” says David Baker, FAIA. But 222 Taylor, an eight-story, 126,000-square-foot affordable housing project designed by local firm David Baker Architects (DBA) might help change that feeling—especially for its residents, who include low-income and formerly homeless families and individuals.

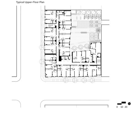
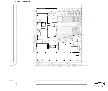
The L-shaped structure holds the northeast corner of Taylor and Eddy Streets with 113 units that range in size from studios to three-bedrooms. The two wings with a double-loaded corridor define an interior courtyard at the northeast corner of the site. Ground-floor retail spaces with 15-foot ceiling heights house two long-established neighborhood businesses: a grocery store and a Yemeni restaurant.

The residential entrance is on Taylor, and from there, “it was important to have a direct view into the courtyard,” Baker says, “but you want a little more shelter from such a tough street.” Bike parking, a community room, laundry, and shared kitchen spaces are adjacent to the courtyard, which contains separate seating and play zones that provide varied social options for the building’s community. A management suite houses comprehensive support services for tenants, including two full-time social workers.

Designed to both “fit in” and “stand out,” the building’s masonry façade is composed of vertically oriented, thin clay brick. Masonry was important as a reference to earlier buildings in the neighborhood, but the architects thought of the multiple colors of 3/8-inch-thick face brick at 222 Taylor as being akin less to masonry construction, and more like the application of ceramic tile: “We were really using it like paint,” says DBA principal Daniel Simons, FAIA. This idea drove the deployment of the facing brick in vertical soldier courses. The ground floor is glass and concrete, so the material never actually touches the ground. The building’s massing is marked by asymmetrical notches at the sixth and seventh floors that align with historic neighboring cornices and provide dramatic articulation for the building’s two principal façades. “By cutting these slits, we created horizontal volumes that are proportionally similar to the horizontal volumes of the adjacent buildings,” Simons says.

The building is registered for both EnergyStar Multifamily High-Rise and LEED for Homes Mid-Rise. Achieving an EnergyStar rating (which was required for project financing) was a new wrinkle for DBA. It demanded commissioning, although the firm already advocates for this process as part of its sustainable strategy for other projects. “We spend a lot of time in San Francisco responding to air quality requirements that require filtered fresh air to all the units,” Baker says. “There’s a balancing act, because fresh air increases ventilation rates that can increase heating and cooling loads.” The architects adjusted window sizes and custom metal sunshade surrounds in response to their analysis.

The rooftop is a busy place, with solar domestic hot-water service, photovoltaic arrays providing electric power for the building, and an urban farm. The farm is a departure from similar ones the architects have designed in the past, where residents would grow vegetables for their own use. At 222 Taylor, “TNDC [Tenderloin Neighborhood Development Corporation, the client] partnered with an organization that manages that farm,” Simons says. “They’re growing a lot of food and it’s a wonderful initiative for the clients,” Baker says.

DBA’s 222 Taylor walks a fine line in the Tenderloin, inserting itself firmly but quietly within the area’s gritty context, raising design standards while still respecting the fabric that’s given the area its identity for decades.

Project Credits
Project: 222 Taylor, San Francisco
Client/Owner: Tenderloin Neighborhood Development Corp.
Architect/Interior Designer: David Baker Architects, San Francisco . David Baker, FAIA, Daniel Simons, FAI (principals); Katie Ackerly, AIA (associate, sustainability lead); Julie de Jesus, AIA (associate, interiors lead); Sally A.T. Roth, AIA (technical director); John Onken, AIA, Dawn Kang, AIA (architects); Akima Brackeen, Assoc. AIA (designer)
MEP Engineer: Emerald City Engineers
Structural Engineer: OLMM Consulting Engineers
Civil Engineer: Carlile Macy
Construction Manager: Waypoint Consulting
General Contractor: Cahill Contractors
Landscape Architect: GLS Landscape|Architecture
Lighting Designer: HLB Lighting Design
Sustainability: Beyond Efficiency
Building Envelope: Aquatech Consultancy
Size: 126,000 square feet
Cost: $52,756,215

Materials and Sources
Acoustical System: Armstrong (Tectum panels)
Carpet: Interface (Straight Edge carpet tile)
Cabinets: Lanz Cabinet Shop (Northview collection)
Countertops: Royal Countertops (natural granite)
Exterior Wall Systems: Cembrit (Cembonit fiber cement panel cladding); Sika (BMI cement plaster); HC Muddox (unglazed and glazed thin brick)
Flooring: Armstrong (Rejuvenations Ambigu vinyl sheet flooring); Karndean Commercial (Opus Woods VCT plank)
Glass: Vitro (Solarban 70XL); Cardinal (366 Low E)
Insulation: Roxul (CavityRock exterior insulation); OwensCorning (unfaced fiberglass batts)
Metal: United Miscellaneous Ornamental Steel (custom-painted steel sunshades)
Mural: Art fabricated and installed by Sterling Graphics (Reproduction of “Untitled (Blue/Yellow)” by Creativity Explored artist Jennifer Bockelman)
Paints/Finishes: Sherwin Williams
Photovoltaics/Other Renewables: Heliodyne (GOBI 410 001 solar hot water collector); SunPower (Performance Series P17 photovoltaic collector)
Roofing: Johns Manville (DynaWeld Cap FR CR SBS modified bituminous membrane)
Site/Landscape Products: Basalite, Pavestone, Stepstone, Wasau (pavers); Heavenly Greens (HG NXM synthetic turf); Hay (Palissade outdoor furniture); Arborica (Reclaimed eucalyptus tree trunks)
Structural System: Concrete
Windows and Doors: Aluminum Windows: by Peerless (G201 aluminum windows); Kawneer (1600 aluminum storefront); Pacassa Studios (K-Door custom front door)

Upcoming Events

  • Design Smarter: Leveraging GIS, BIM, and Open Data for Better Site Selection & Collaboration

    Live Webinar

    Register for Free
  • Slate Reimagined: The Surprising Advantages of Slate Rainscreen Cladding

    Webinar

    Register Now
  • The State of Residential Design Today: Innovations and Insights from RADA-Winning Architects

    Webinar

    Register for Free
All Events