2016 West Rice

Project Details

Project Name
2016 West Rice
Location
2016 W. Rice StreetChicagoIL60622
Project Types
Multifamily
Project Scope
New Construction
Shared By
VRadutny
Project Status
Built
Year Completed
2019
Style
Modern
Size
14,000 ft²
Team
Principal: Vladimir Radutny
Associate: Fanny Hothan
Project Architect: Ryan Sarros

Project Description

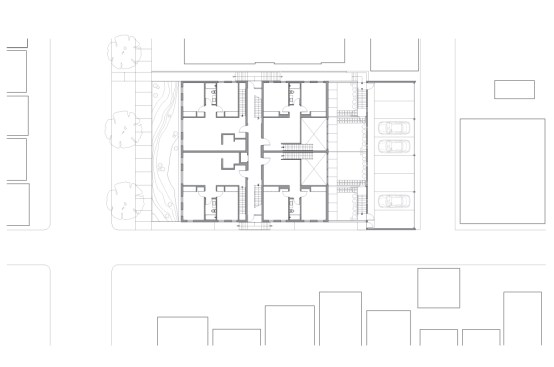
The 2016 West Rice residences are located in the heart of one of the Chicago’s oldest established neighborhoods, Ukrainian Village. Comprised of 4 uniquely configured duplexes with 4 single story units stacked above, this 8 unit residential typology is a design response to our client’s requirement to maximize the site’s buildable area.

The building is organized as a small community of individual dwelling units wrapped in one contiguous skin. Unlike a single-family home, each residence is designed with at least three distinct orientations and abundance of outdoor space, maximizing daylight and cross breezes throughout the day. The outward appearance of this project is a direct result of the strategic interior planning, with two large cubic voids defining large terraces at the second floor. In these voids, the articulated steel balconies and stairs are nested, echoing Chicago’s infamous fire escapes and adding visual relief at the SE and NW corners of the site. Individual, large window openings in the building’s corrugated metal skin appear more as perforations within the overall mass, perceptively reducing the building scale among its fellow neighbors. Selected for its reflective qualities, the exterior cladding produces a dynamic play of light and shadow across the façades, highlighting atmospheric changes brought forth by the seasons and throughout the day.

This contemporary building development attempts to mark its place in time, exemplifying architecture expression for its immediate surrounding as well as the greater city context.

Upcoming Events

  • Design Smarter: Leveraging GIS, BIM, and Open Data for Better Site Selection & Collaboration

    Live Webinar

    Register for Free
  • Slate Reimagined: The Surprising Advantages of Slate Rainscreen Cladding

    Webinar

    Register Now
  • The State of Residential Design Today: Innovations and Insights from RADA-Winning Architects

    Webinar

    Register for Free
All Events