200 Fifth Avenue

Project Details

Project Name
200 Fifth Avenue
Project Types
Office
Shared By
Xululabs
Project Status
Built
Size
650,000 ft²

Project Description

Studios Architecture • Restoring old buildings to compete in Manhattan’s aggressive real estate market—which is flooded with new construction—is always risky business. Footprints, heights, and setbacks are usually inviolate, and existing conditions are often problematic. This is what faced Studios Architecture when the firm began a restoration of 200 Fifth Avenue, a 101-year-old, 14-story commercial building overlooking Manhattan’s historic Madison Square Park.

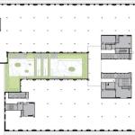
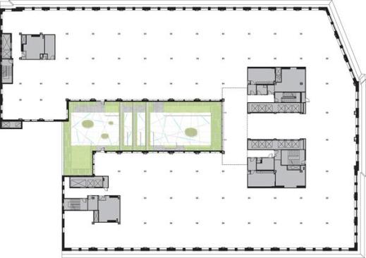
The restoration included the exceptional Neo-Renaissance façade and vaulted entries, as well as the redevelopment of the abandoned courtyard, enclosed by U-shaped floor plates, to its former glory. The heavy bronze curtain wall was replaced with three large panes of low-iron, antiglare glass, secured by four small patch fittings and two high-tension cables. More than a thousand windows were replaced with high-efficiency models to match the original sight lines, and the original bronze-clad frames were maintained and restored.

Juror Bill Valentine commented, “It’s a fascinating story about how they altered the space on the inside. It’s adaptive reuse at close to its very best.” The jurors were also impressed by the architects’ redesign of the courtyard, which includes a new terra-cotta rainscreen and setbacks that allow natural light to reach the lower floors. The architects removed the courtyard’s east wall, and by doing so were able to extend the floor plates 20 feet to the west. The addition of these long spans allowed the creation of column-free spaces for better circulation and outdoor terraces.

Upcoming Events

  • Design Smarter: Leveraging GIS, BIM, and Open Data for Better Site Selection & Collaboration

    Live Webinar

    Register for Free
  • Slate Reimagined: The Surprising Advantages of Slate Rainscreen Cladding

    Webinar

    Register Now
  • The State of Residential Design Today: Innovations and Insights from RADA-Winning Architects

    Webinar

    Register for Free
All Events