1330 Brook Street Residence

Project Details

Project Name
1330 Brook Street Residence
Location
LawrenceKS
Architect
Studio 804
Project Types
Single Family
Shared By
Sara Johnson
Project Status
Built
Year Completed
2017
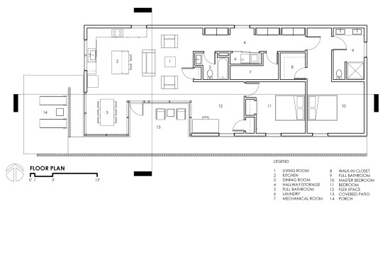
Size
1,300 ft²

Project Description

Each spring, the University of Kansas mints a new crop of graduates and professor Dan Rockhill’s not-for-profit Studio 804—filled with graduate students from the school’s architecture program—completes a smart new sustainable building in the Lawrence area. The studio has been doing this for more than two decades, but that doesn’t make the annual nine-month-long design/build process any easier.

There were just 10 students for the 2016–17 academic year, half of Rockhill’s usual number, and the professor’s sole concession to his smaller workforce was keeping the building to a small footprint. The studio’s efforts resulted in a 1,300-square-foot, net-zero energy single-family house designed to a LEED Platinum standard. The house is located at 1330 Brook Street, an infill site in a predominantly residential neighborhood that Rockhill describes as “marginal.” Doing a smaller house helped to meet the site’s market requirements as well, with a projected selling price of $249,000 versus the more-than $325,000 for previous Studio 804 projects.

Studio 804 is the ultimate DIY architecture class, overlaid with an unyielding dedication to good modern design. Many parts of this year’s two-bedroom, two-bathroom house incorporate leftover materials from previous years’ projects, which are stored in a large warehouse that also functions as the studio’s shop and classroom. Large 11-foot-tall by 5-f00t-wide glass panels—which supply the public spaces with ample daylight—were acquired inexpensively five years ago from a failed project in Kansas City. Engineered lumber for the roof was “in stock,” as Rockhill puts it, as was the steel from which the students fabricated the exterior screens. The western red cedar exterior soffit was left over from siding used in last year’s house at 1200 Pennsylvania Street. “I’m able to manipulate the use of materials,” Rockhill says. Steel panels were repurposed from a local commercial project that had rejected the material, and the team power-washed and painted the panels for the house’s exterior.

Rockhill cites the prefabricated, enameled-steel houses produced by Lustron in the postwar years as a precedent for the design’s black-metal-paneled enclosure. “They [Lustron homes] were aquamarine and pink,” he says, noting that breaking with locally prevailing hues is part of the design equation.

Despite being completed this year, 1330 Brook Street has already sold. The house’s success is attributable to a particular culture that Rockhill and his Studio 804 classes have shaped over more than a generation. “There’s an interest in LEED and modern design in Bob Dole country,” Rockhill says, but “there’s nobody else doing this.”


Project Credits
Project: 1330 Brook Street Residence, Lawrence, Kan.
Client: Built as a spec house
Architect/Contractor: Studio 804, Lawrence, Kan. . Dan Rockhill (director and distinguished professor); Matthew Anderson, Faysal Bhuiyan, John Coughlin, Abigail Davis, Caitlin Fitzgerald, Brittany Hediger, Evan Liles, Charles Rotter, Assoc. AIA, Chris Roybal, Emily Stockwell (students)
Structural Engineer: Norton & Schmidt
Size: 1,300 square feet
Cost: $249,000

Upcoming Events

  • Design Smarter: Leveraging GIS, BIM, and Open Data for Better Site Selection & Collaboration

    Live Webinar

    Register for Free
  • Slate Reimagined: The Surprising Advantages of Slate Rainscreen Cladding

    Webinar

    Register Now
  • The State of Residential Design Today: Innovations and Insights from RADA-Winning Architects

    Webinar

    Register for Free
All Events