130 William

Project Details

Project Name
130 William
Location
New YorkN.Y.
Project Types
Multifamily
Project Scope
New Construction
Project Status
Built
Year Completed
2021
Size
447,000 ft²

Project Description

This project was selected as an Honorable Mention winner in the 2023 Residential Architect Design Awards, Multifamily Housing category.

“It’s beautiful and doesn’t look like a typical Manhattan building. I like some of its classic architectural features that are modernized.” —Juror Tya Winn

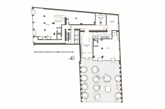
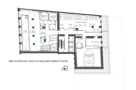
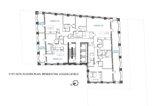
In a bid to honor hopes for new york’s future while harking back to the city’s storied architectural past, the New York office of Adjaye Associates and the local firm Hill West Architects have teamed up to bring Manhattan a new high-rise tower. Clocking in at 800 feet tall, 130 William boasts 66 stories filled with 242 individual residences, a gym, a health club, two floors devoted to retail, a movie theater, a rooftop deck, and numerous outdoor spaces—including a public park.

The tower’s restrained façade, however, belies the densely packed program within. Composed of dark-toned, hand-cast concrete, the tiered exterior is punctuated by graceful arched windows and copper detailing, offering a moment of aesthetic respite amid the Big Apple’s vibrant vernacular.

PROJECT CREDITS
Project: 130 William, New York.
Client/Owner: Lightstone
Design Architect: Adjaye Associates, New York. David Adjaye, Hon. FAIA, founder and principal; Marc McQuade, AIA, associate principal. Design Team: Clara Aramburu; Adrienne Colenburg; Josh Ellman; Jeremy Kim; Kristen Newman; Nnadozie Okeke; Paula Sanchez; Ravi Raj; Can Vu Bui
Architect of Record: Hill West Architects, New York.
Interior Designer: Adjaye Associates
Mechanical Engineer: Ventrop EGC
Structural Engineer: McNamara Salvia
Electrical Engineer: AKRF Engineering PC
Civil Engineer: AKRF Engineering PC
Construction Manager: Gilbane Building Company
Landscape Architect: William Weintraub Diaz
Lighting Designer: Brian Orter Lighting Design
Façade Consultant: Gilsanz Murray Steficek

Upcoming Events

  • Design Smarter: Leveraging GIS, BIM, and Open Data for Better Site Selection & Collaboration

    Live Webinar

    Register for Free
  • Slate Reimagined: The Surprising Advantages of Slate Rainscreen Cladding

    Webinar

    Register Now
  • The State of Residential Design Today: Innovations and Insights from RADA-Winning Architects

    Webinar

    Register for Free
All Events