11-39 49th Avenue

Project Details

Project Name
11-39 49th Avenue
Architect
HAAK architects
Project Types
Single Family
Project Status
On the Boards/In Progress
Year Completed
2017
Size
194,949 ft²

Project Description

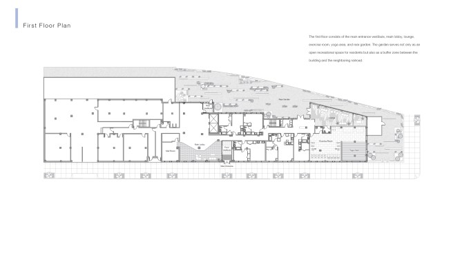
11-39 49th Avenue is located in Hunters Point, Long Island City, New York, at the corner of 49th Avenue and 21st Street. It is a twelve-story rental building on a 26,400 square-foot lot, and it houses a total of 194 residential units. Situated adjacent to the East River, it will be one of the first things of Hunters Point visible to those traveling on the Long Island Rail Road nearby or on the Long Island Expressway. Residents in return will enjoy sweeping views over the East River of Manhattan’s skyline. FAÇADE The total façade of 11-39 49th Avenue is realized as a configuration of three fabrics, initially separated into the lower part and the upper part. The lower part is a tricolor brick wall, recalling the mosaic linearity of Brooklyn townhouses neighboring side by side. Each brick-covered wall is divided by a dark metal reveal, and every double-story window is projected with an aluminum frame. Private terraces, also of metal, extrude spontaneously from the grid work spanning the bottom façade. What emerges is a new revolution of the everyday brick building. The upper part introduces two additional languages of façade design. Clad in precast concrete, the upper part is ornamented in a weaving of concrete panels, further emphasized by the panels’ variation in color and in size. As much as the lower part respects its existing surroundings by recalling the familiar townhouses close-by, the upper part as well engages with its immediate environment. Depending on the time of day, the three-dimensional skin of the upper part casts shadows that are ever-changing. The top of each weave is angled to avoid snow accumulation during the winter months, and the sides are also angled to maximize residents’ view to the street. Alternating with the weave is a quilt stitched of fiber cement panels. Differently sized panels are randomly arranged to create a geometric pattern that reveals itself only when examined up-close. Grey and recessed, this third wall type seems subtle when compared with the visually dominant weaving of concrete panels; it acts as a balancing component within the building’s total façade. Altogether, 11-39 49th Avenue comes to be an articulated massing rather than a chunky volume. The façade gives not only the tower a unique identity but also Hunters Point another iconic landmark. INTERIOR AND EXTERIOR SPACE The first floor consists of the main entrance vestibule, main lobby, lounge, exercise room, yoga area, and rear garden. The garden serves not only as an open recreational space for residents but also as a buffer zone between the building and the neighboring railroad. The main entrance imitates a bird’s nest. Visitors to 11-39 49th Avenue are first greeted by a whimsical installation of angled wood bars, designed to help them feel more at home. Just beyond the entrance lies the main lobby, and the lobby continues the entrance’s evocative qualities. Floors are lined with concrete, and interior walls and columns are surfaced with weathered metals. The seating area along the lobby’s outer edge is floored with wood panels. The two prevalent materials — metal and wood — are united by a strictly controlled color scheme, and their contrasting elements complement each other. Also in the main lobby, the bamboo garden above the main entrance fuses what is natural and what is man-made, much like the duality that is explored in the choice of materiality. Housing units are designed to feel warm and modern through the deliberate use of material, color, and lighting. They expand on the vision of a home that is embodied on the first floor. Public and private terraces are separated by metal dividers to protect residents’ privacy. Rather than providing views into the terraces adjacent, voids that lie on the face of dividers shine light instead. What is more, the voids follow a customized pattern that is repeated in balconies below. Using the same language across the different floors, the building adopts a holistic approach to its aesthetics as a whole. The dividers thus achieve both form and function: they serve as partitions, as lighting fixtures, and as part of the building’s overall design. The rooftop is the place for outdoor leisure. Its furniture; including lounge chairs and benches, planters, and pergolas; is strategically arranged to define the different programs available on the rooftop. They designate smaller spaces varying in levels of privacy while remaining permeable to allow circulation and encouraging social interactions where wanted. Planters likewise regulate the sense of privacy felt within their enclosure by adjusting accordingly their height. Pergolas are composed of louvers that can be angled to manage the amount of sunlight to enter below. Construction is currently underway. It is expected to be ready for residents by the end of 2017.

Upcoming Events

  • Slate Reimagined: The Surprising Advantages of Slate Rainscreen Cladding

    Webinar

    Register Now
  • The State of Residential Design Today: Innovations and Insights from RADA-Winning Architects

    Webinar

    Register for Free
  • Specifying Smarter with Copper-Clad Aluminum (CCA) Metal-Clad Cable

    Webinar

    Register for Free
All Events