Residential Architect 2000 RADA Withers Residence, Accokeek, M…
Residential Architect 2000 RADA Withers Residence, Accokeek, Md. Project of the Year McInturff Architects, Bethesda, Md. The client for this rural Maryland house wanted a no-frills design that would live in harmony with the forest around it. McInturff Architects responded with a plan based on a simple bridge structure.
Julia Heine, McInturff Architects
Hoisting the building off its sloped site allowed for a low-tech…
Hoisting the building off its sloped site allowed for a low-tech drainage system; rainwater flows right under the house and down the hill.
Julia Heine, McInturff Architects
A custom light sculpture by artist Janet Saad Cook takes pride o…
A custom light sculpture by artist Janet Saad Cook takes pride of place in the living room.
Courtesy McInturff Architects
The house looks like a pulled-apart cabin, with the private room…
The house looks like a pulled-apart cabin, with the private rooms on either end and a two-story living room in the middle.
Alan Karchmer / Sandra Benedum
Residential Architect September-October 2010 Case Study House…
Residential Architect September-October 2010 Case Study House in the Berkshires Schwartz/Silver Architects, Boston The 45-foot cantilever of this Massachusetts summer house resembles “half a bridge,” according to architect Warren Schwartz, FAIA.
Alan Karchmer / Sandra Benedum
…
Views of the bucolic Berkshire mountain range permeate the home’s interiors.
Alan Karchmer / Sandra Benedum
A steel frame and a massive concrete foundation provide the heft…
A steel frame and a massive concrete foundation provide the heft that enables the cantilever’s featherweight, floating look.
Timothy Hursley
Residential Architect 2010 RADA L-Stack House, Fayetteville, A…
Residential Architect 2010 RADA L-Stack House, Fayetteville, Ark. Grand Award / Custom, 3,000 Square Feet or Less Marlon Blackwell Architect, Fayetteville The first floor of Marlon and Meryati Blackwell’s own house sits atop concrete piers, the better to span a creek on the property.
Timothy Hursley
The home consists of two rectilinear forms, one set on top of th…
The home consists of two rectilinear forms, one set on top of the other at a 90-degree angle.
Courtesy Marlon Blackwell Architect
Its “L-Stack” configuration makes the most of a trapezoidal …
Its “L-Stack” configuration makes the most of a trapezoidal lot.
Timothy Hursley
Only the first floor and the short end of the second floor are v…
Only the first floor and the short end of the second floor are visible from the street, helping the project fit into its context of one-story cottages and ranch houses.
Timothy Hursley
The kitchen, which features wenge cabinets and quartz counters, …
The kitchen, which features wenge cabinets and quartz counters, opens into the dining area and the living room.
Timothy Hursley
The main public rooms open onto terraces, which make maximum use…
The main public rooms open onto terraces, which make maximum use of the 0.2-acre site.
Timothy Hursley
A rainscreen cladding of Brazilian redwood provides a textural c…
A rainscreen cladding of Brazilian redwood provides a textural contrast with the glass-enclosed staircase.
Timothy Hursley
A view from the rear of the house, looking back toward the creek…
A view from the rear of the house, looking back toward the creek-spanning, one-story portion.
David Wakely Photography
CUSTOM HOME 2010 CHDA Private Residence, Sebastopol, Calif. M…
CUSTOM HOME 2010 CHDA Private Residence, Sebastopol, Calif. Merit Award / Less than 3,000 Square Feet Turnbull Griffin Haesloop Architects, San Francisco Architects Mary Griffin and Eric Haesloop placed this northern California house over a slight dip in the landscape, so that it acts as a bridge between two existing stands of redwoods.
David Wakely Photography
Douglas fir ceilings and cabinetry, along with ipe floors, lend …
Douglas fir ceilings and cabinetry, along with ipe floors, lend a sense of richness to the interior spaces.
David Wakely Photography
Clerestory windows on the entry side of the house assist with cr…
Clerestory windows on the entry side of the house assist with cross-ventilation.
David Wakely Photography
The home’s studio/garage.
David Wakely Photography
A glass rear wall permits valuable solar gain and daylighting.
Courtesy Turnbull Griffin Haesloop Architects
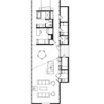
The home’s floor plan.
Courtesy Turnbull Griffin Haesloop Architects
The home’s site plan.
Courtesy Turnbull Griffin Haesloop Architects
The project in section.
Undine Pröhl
Residential Architect 2007 RADA Artist Bridge Studio, San Dieg…
Residential Architect 2007 RADA Artist Bridge Studio, San Diego Merit Award / Renovation Safdie Rabines Architects, San Diego This art studio addition by Safdie Rabines Architects spans a shallow arroyo. Steel cross-bracing adds extra support without detracting from the studio’s delicate appearance.
Undine Pröhl
Sliding doors on either side let the owner open up her studio to…
Sliding doors on either side let the owner open up her studio to the rugged natural environment.
Undine Pröhl
A little library forms one end of the workspace.
Safdie Rabines Architects
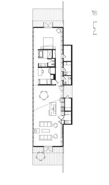
The project’s floor and site plan.
Visual lightness and transparency are dear to the heart of many an architect. But it’s not easy to achieve a building that perches delicately on the land, especially when pesky seismic, flooding, and other regulations come into play. Using a house to form a bridge over a waterway or landform can help attain this coveted sense of weightlessness.
Bridge houses may look poetic in the landscape, but they also boast practical benefits. Their sensitive siting eliminates the need for invasive (and expensive) earth-moving tactics. Rainwater flows right underneath them. They provide a way of handling the idiosyncrasies of local topography. And on a more philosophical level, they implicitly acknowledge the primacy of nature by deferring to the existing site.
To ensure structural stability, the design and building of a bridge house can involve intensive engineering. But in the best ones, the effort never shows. All you notice is the lightweight look and the feeling of living within the landscape, rather than on it. Step into our collection of bridge houses to find that oh-so-bearable lightness of being.