Summer Cottage on Swedish Shorefront

2 MIN READ

Stockholm-based architect Mats Fahlander was an apt candidate to design a summer cottage for this shorefront site on Sweden’s rugged western coast. He and the owner, lifelong friends, played here as children, on property that had been in the owner’s family since the 1940s. “I grew up spending summers on an island very close to this,” says Fahlander, whose intimate understanding of the local landscape, climate, and culture is written all over this modern, utilitarian gem.

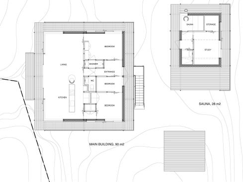
The building perches on concrete piers, hovering above an outcropping of scoured bedrock. “We decided to treat the rock very carefully and do no blasting work at all,” Fahlander explains. A natural cleft in the rock provided a channel for utilities, which enter the building via a concrete “box” under its core. The house is simple in form: an approximately square volume topped by two parallel barrel vaults—inspired by the rounded topography of the shore—and skirted by a deck that gives every room access to the outdoors.

The vault closest to the shore arches over a living/dining/kitchen space wrapped in glass at three walls and opening to the shore via a 16-foot-wide sliding glass door. The inland-facing vault shelters a narrow entry hall flanked by a water closet, a separate shower compartment, and three “really, really small bedrooms,” says Fahlander, whose strategy involved devoting half of the building’s 900 square feet to living space, “with as many sleeping rooms behind that as possible.” Sliding doors, narrow passages, and built-in furniture storage maximize space efficiency. “Six to eight persons can have a bed in the house,” Fahlander notes (a separate sauna/study/guest cottage sleeps several more). “It’s like living on a boat.” The proximity of the sea only heightens the effect.

Mindful of the beating the building would take on such an exposed site, Fahlander specified tough, low-maintenance materials for its shell. Unpainted corrugated cement board wraps the building up to its eaves. Flat cement board panels—painted the traditional white of local fisherman’s cottages—fill the vault ends; corrugated metal covers the roof. The exterior decking is untreated fir, the same material that lines the interior walls, floor, and ceiling. Rather than struggle to preserve the material from the sun and salt air, Fahlander says, he detailed the decking to be easily replaced—perhaps every 15 years—when it succumbs to the elements.


About the Author

Bruce D. Snider

Bruce Snider is a former senior contributing editor of  Residential Architect, a frequent contributor to Remodeling. 

No recommended contents to display.

Upcoming Events

  • Design Smarter: Leveraging GIS, BIM, and Open Data for Better Site Selection & Collaboration

    Live Webinar

    Register for Free
  • Slate Reimagined: The Surprising Advantages of Slate Rainscreen Cladding

    Webinar

    Register Now
  • The State of Residential Design Today: Innovations and Insights from RADA-Winning Architects

    Webinar

    Register for Free
All Events