Solar Decathlon 2011 Profile: Team New Zealand

2 MIN READ

ECO-STRUCTURE recently spoke with Eli Nuttall, a master’s of architecture candidate at Victoria University of Wellington and lead architect of Team New Zealand for the U.S. Department of Energy’s 2011 Solar Decathlon.

How is your solar panelling unique?
The solar panels themselves are off-the-shelf polycrystalline PV panels; what makes our array unique is how the panels are housed. The canopy sitting above the roof creates visual interest, provides shading to the large windows below in summer, and houses our 6.3kW array. This means the panels can be kept cool—with room for air circulation around them—and the membrane roof below remains uncompromised.

What other sustainable features have you incorporated into your design?
An abundant and sustainable resource in New Zealand is sheep’s wool. The First Light house is insulated with about 10 inches of sheep’s wool from Kiwi company EcoInsulation. As well as being a local and renewable resource, it’s healthy, non-allergic, safe to handle, gas- and fume-absorbent, low in conductivity, fire-resistant, environmentally friendly, and low in embodied energy. It’s made from recycled off-cuts from wool carpets.

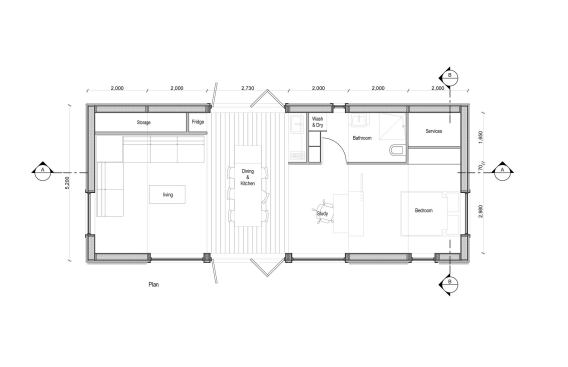
What was the inspiration of your design, and does it display any regional influences?
Our house is inspired by the traditional New Zealand holiday home, which we call a “bach” (pronounced “batch”). We wanted to bring the relaxed and social lifestyle of bach living and New Zealand to the First Light House. This inspiration informed every aspect of the design, from the natural New Zealand materials used (a number of woods and the wool insulation) to how the house is lived in with flexible social spaces. Landscape and the outdoors are very important to New Zealanders—the key feature of the design is the central space with decking running right through the house, plus large bifold doors and a skylight which brings the outdoors in.

How has the new affordability criteria affected the design of your house?
We were very happy to have the affordability contest as part of this year’s Decathlon. It meant we really thought about every element of the house and it forced us to determine what the most important parts of the house were and what we could not do without. One of the more expensive elements of all the houses is the solar technology that goes into them. We wanted to reduce the energy used by the house before trying to produce energy to power the home. We optimized the passive elements of the house to make it as energy-efficient as possible and then sized our solar array accordingly.

What will happen to the house after the Solar Decathlon?
The First Light house has been sold to a Kiwi woman who plans to live in the house and retire to it. We’re not sure exactly where it will end up, but the buyer is looking to buy land on the South Island of New Zealand. This means we’ll pack it up all over again and ship it back home.

About the Author

No recommended contents to display.

Upcoming Events

  • Slate Reimagined: The Surprising Advantages of Slate Rainscreen Cladding

    Webinar

    Register Now
  • The State of Residential Design Today: Innovations and Insights from RADA-Winning Architects

    Webinar

    Register for Free
  • Specifying Smarter with Copper-Clad Aluminum (CCA) Metal-Clad Cable

    Webinar

    Register for Free
All Events