Yale Student-Built House Offers High Design at Low Cost

3 MIN READ

The building at 456 Orchard Street in New Haven, Conn., doesn’t look all that different from the other houses in the neighborhood, but behind the seams lie some answers for how builders can provide well-designed homes for an affordable price.

Part of the 44-year-old Vlock Building Project at Yale School of Architecture, 456 Orchard Street is a student-designed and student-built project for the Neighborhood Housing Services of New Haven (NHS), a local non-profit affordable housing development agency that commissioned the house. The group’s mission is to provide housing for qualified low- to middle-income buyers, but it also hopes the home will serve as a catalyst for neighborhood renewal. “A guiding principle of the project is that one new house sets off a chain reaction of home improvement in the neighborhood,” the school says.

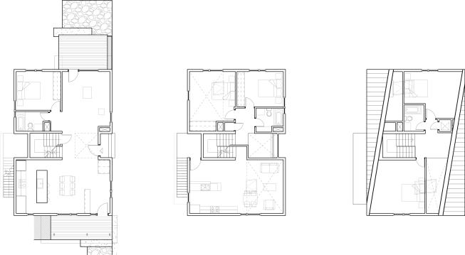
This year, Neighborhood Housing’s project brief called for an owner-occupied, two-family house measuring 2,500 square feet, with 1,600 square feet for the owner and a 900-square-foot two-bedroom rental on the second and third floors. “The design for the two-family house takes seriously the notion of affordability to create spaces that are both intimate and luxurious within a small building footprint and tight envelope,” says the school.

“The students’ theme this year was minimalism—using the minimal amount of architecture to maximize space and reduce construction time and cost,” says Cortez Crosby, a project manager on the home and a second-year master of architecture candidate. But the overall dimensions of the building were a challenge to the designers, who had to fit the whole structure into a narrow lot, while keeping the height within zoning restrictions.

The students solved the problem, says Adam Hopfner, the project’s director, by creating a kind of “Chinese puzzle,” configuring the upper-level portion of the owner’s residence and the rental unit into two interlocking ell-shaped layouts and rotating the gable of the house. “From the outside, only a slight torque of the skylight-studded roof betrays the ingeniously configured spaces nestled beneath,” the school says.

Reflecting the scale of nearby homes, the pitched-roof building fits into the neighborhood nicely. A main street-facing entrance leads to the first-floor owner’s residence, while a side staircase leads to the second floor rental. “The sections reveal that the second floor is split—half for the owner and half for the tenant,” Crosby explains. “The third floor is [also] for the tenant.” The configuration, Crosby continues, results in light-filled double-height spaces that make the home seem bigger.

Priced at $55 per square foot (not including free construction labor from the students and more than $100,000 in donations), the home is energy efficient thanks to foam insulation low E windows, and a precast insulated foundation, but it’s also stylish, clever, and adaptable for large families. The wall separating the owner and tenant unit on the second floor near the stair landing can be removed to create a contiguous single-family house, Crosby explains.

The take-away for mainstream builders is that a little bit of unconventional thinking can result in a home that is well designed, spacious, and affordable. “The students learned that you don’t have to sacrifice good design for affordability,” Crosby says. You simply have to challenge the standard notions of design.

A potential buyer should be closing on the house later this month.

About the Author

No recommended contents to display.

Upcoming Events

  • Design Smarter: Leveraging GIS, BIM, and Open Data for Better Site Selection & Collaboration

    Live Webinar

    Register for Free
  • Slate Reimagined: The Surprising Advantages of Slate Rainscreen Cladding

    Webinar

    Register Now
  • The State of Residential Design Today: Innovations and Insights from RADA-Winning Architects

    Webinar

    Register for Free
All Events