Old School, New School: University of New Mexico

Antoine Predock Architect creates a new public face and promotes a sense of community for the School of Architecture & Planning.

1 MIN READ

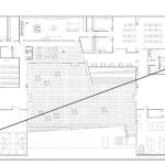
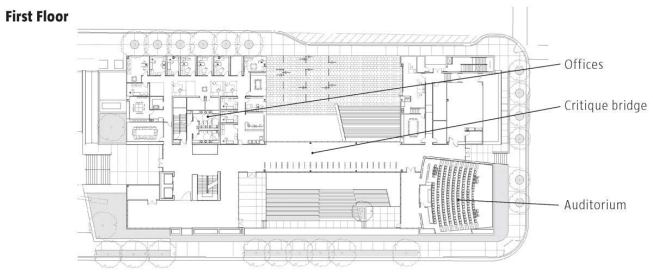
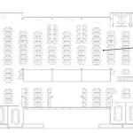
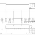
Cruising down Albuquerque’s Central Avenue, a fragment of the old Route 66, motorists glimpse an interesting sight: a two-story movie screen attached to a 108,000-square-foot university building. A throwback to the drive-in and a showcase for student video projects, the screen is a calling card for Antoine Predock Architect’s new School of Architecture & Planning at the University of New Mexico.

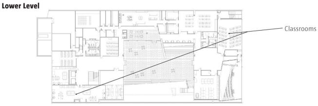
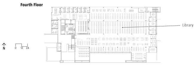
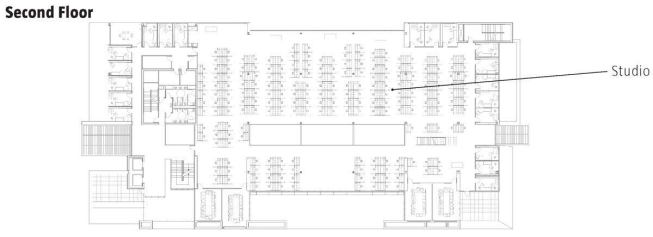
The building had to accomplish many objectives, dean Roger Schluntz recalls. It had to provide a new face for the university along Route 66; complement the campus’s ubiquitous Pueblo Revival architecture; and espouse modern design principles. It had to provide instructional space, build community, house a library, and answer the myriad needs of an architecture school.

This could have led to disjointed results, but Predock has crafted an open, unified space, with studios and critique space organized around a three-story well. Balconies, stairs, and a bridge encourage what Predock calls “visual eavesdropping,” fostering social interaction and an environment in which students can learn from instructors and each other.

About the Author

Katie Gerfen

Katie Gerfen is the former editor-in-chief of ARCHITECT, as well as the former editor of Custom Home.

No recommended contents to display.

Upcoming Events

  • Design Smarter: Leveraging GIS, BIM, and Open Data for Better Site Selection & Collaboration

    Live Webinar

    Register for Free
  • Slate Reimagined: The Surprising Advantages of Slate Rainscreen Cladding

    Webinar

    Register Now
  • The State of Residential Design Today: Innovations and Insights from RADA-Winning Architects

    Webinar

    Register for Free
All Events