Residential Architect July 2005 Light From Both Sides The ap…
Residential Architect July 2005 Light From Both Sides The approach to Ravenwood studio cuts through a wall of dry-laid taconite and continues into the heart of the complex, which is clustered like a tiny Scandinavian village.
Peter Bastianelli-Kerze
A pair of twin beds in the guest room frames a delicate wooden s…
A pair of twin beds in the guest room frames a delicate wooden stair leading to a loft.
Peter Bastianelli-Kerze
Salmela’s scheme for Peter and Cindy Emerson’s home blended …
Salmela’s scheme for Peter and Cindy Emerson’s home blended traditional imagery with a modern sensibility and a deft manipulation of scale.
Peter Bastianelli-Kerze
The architect returned nearly a decade later to design a sauna, …
The architect returned nearly a decade later to design a sauna, located just yards away from the house.
Peter Bastianelli-Kerze
Sited on a bluff overlooking the Mississippi River, the Albrecht…
Sited on a bluff overlooking the Mississippi River, the Albrecht Residence is a cubist modern building wedged between two bookends with steeply pitched roofs.
Peter Bastianelli Kerze
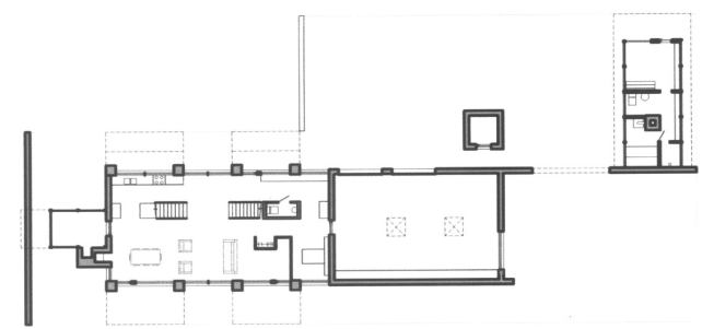
2005 RADA Matthew Residence, Brainerd, Minn. Merit Award / Cus…
2005 RADA Matthew Residence, Brainerd, Minn. Merit Award / Custom, 3,500 Square Feet or Less Masonry walls bracket the cypress-clad cabin, sauna, and garage.
David Salmela, FAIA, Salmela Architect
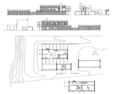
The home’s floor plan and elevation drawings.
Peter Bastianelli Kerze
Angled windows allow in extra sunlight and breezes.
Peter Bastianelli Kerze
The outdoor rooms are framed with white-stained wood and screene…
The outdoor rooms are framed with white-stained wood and screened with 2×2 slats.
Peter Bastianelli Kerze
Salmela pointed the cabin toward the lake and used glazed side w…
Salmela pointed the cabin toward the lake and used glazed side walls to broaden water views.
Petro Petrovich
2008 RADA The Streeter House, Deephaven, Minn. Grand Award / C…
2008 RADA The Streeter House, Deephaven, Minn. Grand Award / Custom, 3,500 Square Feet or Less A house for a general contractor and his son.
SALMELA ARCHITECT
The home’s first floor plan.
SALMELA ARCHITECT
The home’s second floor plan.
Petro Petrovich
Like all of Salmela’s work, the house sensitively engages with…
Like all of Salmela’s work, the house sensitively engages with the surrounding environment. “It finds and draws out diversity in the landscape,” a juror said.
Petro Petrovich
“In a way it’s a horizontal tower house,” said one of our …
“In a way it’s a horizontal tower house,” said one of our 2008 design awards judges. “You rise above the site and experience the ephemeral quality of being above the trees.”
Peter Bastianelli-Kerze
2009 RADA The Clure Project, Duluth, Minn. Merit Award / Multi…
2009 RADA The Clure Project, Duluth, Minn. Merit Award / Multifamily For the Clure Project, Salmela created a pocket neighborhood of three houses.
Peter Bastianelli-Kerze
The black siding, used as a skateboard surface in parks, is made…
The black siding, used as a skateboard surface in parks, is made of recycled paper and resin.
Peter Bastianelli-Kerze
Existing rock ledges unify the three houses and make them part o…
Existing rock ledges unify the three houses and make them part of something larger than property lines.
Peter Bastianelli-Kerze
The three companion houses changed the neglected property's dens…
The three companion houses changed the neglected property's density, thus fitting it into the larger community. The kitchen in Salmela's home overlooks Duluth and its harbor.
SALMELA ARCHITECT
The Clure Project’s floor plans.
Peter Bastianelli-Kerze
Residential Architect March- April 2009 At Salmela’s office…
Residential Architect March- April 2009 At Salmela’s office in his Duluth, Minn., home, 7-foot-square windows capture views of Lake Superior.
Peter Bastianelli-Kerze
A long counter of oiled birch plywood holds models, which Salmel…
A long counter of oiled birch plywood holds models, which Salmela likes to build by hand.
Peter Bastianelli-Kerze
Unfinished basswood strips screen the office’s upstairs and me…
Unfinished basswood strips screen the office’s upstairs and mezzanine level.
Peter Bastianelli-Kerze
A freestanding fireplace is one of several "events" that foster …
A freestanding fireplace is one of several "events" that foster an active engagement with the landscape.
Peter Bastianelli-Kerze
A trellised walkway guides visitor's to the main house's entry.
Peter Bastianelli-Kerze
Four boxlike structures–three garages and a workshop–stand sen…
Four boxlike structures–three garages and a workshop–stand sentry duty between the parking area and the entry court.
Courtesy SALMELA Architect
The project's site plan.
Peter Bastianelli-Kerze
The house steps down toward the lakeshore, following the slope o…
The house steps down toward the lakeshore, following the slope of the site.
Peter Bastianelli-Kerze
The stair combines massive timber elements with a slatted screen…
The stair combines massive timber elements with a slatted screen that seems to float above the floor.
Souliyahn Keobounpheng
An abstract viewing pavilion overlooks the bocce court.
Peter Bastianelli-Kerze
Exposed columns and laminated beams set a visual rhythm.
Souliyahn Keobounpheng
Dubbed by one judge "the Mystery Critter," the viewing pavilion …
Dubbed by one judge "the Mystery Critter," the viewing pavilion rises to the level of habitable sculpture.
Courtesy SALMELA Architect
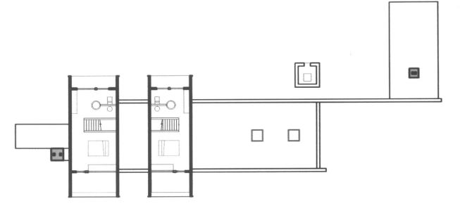
The project's floor plans.
Peter Bastianelli-Kerze
The entry trellis maintains the rhythm of the house's main stru…
The entry trellis maintains the rhythm of the house's main structural frame.
1
of 14
Paul Crosby
The Hall House in Duluth, Minn., was built in 2012 on the founda…
The Hall House in Duluth, Minn., was built in 2012 on the foundation of an existing residence.
Paul Crosby
The interiors of the Hall House use glass and white paint to cre…
The interiors of the Hall House use glass and white paint to create layers of sightlines, views, and natural light.
paul crosby
Salmela Architect divided the Schifman Residence in Minneapolis,…
Salmela Architect divided the Schifman Residence in Minneapolis, Minn., into a work volume and a living volume, with a courtyard in the middle.
Paul Crosby
Completed in 2009, the Schifman Residence is LEED Gold-certified…
Completed in 2009, the Schifman Residence is LEED Gold-certified.
David Getty
The Taavi and Gladys outdoor chairs from Loll Designs (www.lolld…
The Taavi and Gladys outdoor chairs from Loll Designs (www.lolldesigns.com), designed by Salmela Architect.
David Getty
Made from recycled high-density polyethylene, the chairs stand u…
Made from recycled high-density polyethylene, the chairs stand up to harsh weather conditions.
Salmela Architect
One of Salmela’s currently under-construction commercial proje…
One of Salmela’s currently under-construction commercial projects is a facility for Izzy’s Ice Cream in Minneapolis.
Salmela Architect
Izzy’s sits atop a former brownfield site and encompasses a fa…
Izzy’s sits atop a former brownfield site and encompasses a factory space as well as a retail shop.
Paul Crosby
The Brogan Residence in Sturgeon Bay, Wis., was completed in 201…
The Brogan Residence in Sturgeon Bay, Wis., was completed in 2011.
Paul Crosby
Strategically placed skylights help illuminate the Brogan Reside…
Strategically placed skylights help illuminate the Brogan Residence’s interiors.
David Getty
The firm recently completed the Chrismer Cabin in Door County, W…
The firm recently completed the Chrismer Cabin in Door County, Wis.
David Getty
Scandinavian and modernist design principles of openness, simpli…
Scandinavian and modernist design principles of openness, simplicity, and access to natural light inform the Chrismer Cabin’s architecture.
David Getty
Salmela often employs wood screens to let light into a space whi…
Salmela often employs wood screens to let light into a space while providing visual separation—as at the Rierson Cabin in Tofte, Minn.
David Getty
The Rierson Cabin was built in 2012.
By the time Residential Architect profiled him in our July 2005 issue, David Salmela, FAIA, had already achieved national respect for his sensitive regional modernism. Since then, rather than rest on his laurels, the Duluth, Minn.-based Salmela has continued to evolve as an architect. Always attuned to the intricacies of the local and regional context, he’s been able to express those attributes on a deeper level. “Fifteen to 20 years ago, the sensitivity to the culture may have been a more visible connection of the obvious, the familiar,” he says. “Now the connection is more subtle. You’re not sure what it is that makes it blend into the context. It’s more emotionally perceived.”
Salmela’s portfolio has changed, too, to include more non-residential work. His four-person firm recently completed a factory for Loll Designs, a Duluth outdoor furniture company. This project led to a commission to design a series of Loll furniture pieces, the first two of which were introduced at ICFF 2012. And Salmela Architect has three commercial projects under way in Minneapolis: an ice cream factory and shop, a restaurant, and a renovation and expansion of an office for an advertising agency. “The biggest surprise for me has been how many interesting commercial projects we have,” Salmela says. Of course, residential design remains a mainstay of the firm, which operates out of an office space in his Duluth home. (One of the three project architects, Malini Srivastava, AIA, works remotely from Fargo, N.D.) A handful of residential projects currently are under construction, with several more in the design process and three in construction documentation.
A commitment to building regionally has always characterized Salmela’s work and sets him apart from the increasingly globalized architectural establishment. “I’m not trying to be a world architect,” he explains. “I’m not even trying to be a national architect.” The vast majority of his projects are located in Minnesota, Wisconsin, and Michigan, although he does have one house under way in Colorado. “Philosophically, I feel my whole career over the last 30 years has been about interpreting what the architecture of this region should be,” he says. “Because we understand it culturally. Can I do my best work in projects that are somewhere else, where I don’t understand the culture? Architects’ best work is always done where they are.”
Born and bred in Minnesota to a Finnish farming family, Salmela finds more than enough layers of culture to mine in his home state alone. “Because there are a lot of natural resources in Minnesota, immigrants came from over 50 countries. They came here because there was work here. Imagine the diversity. I’ve found that when you listen to people and talk to people you find out that they are subconsciously connected to their roots.” Salmela doesn’t hold a formal architecture degree and has shied away from teaching—but that doesn’t mean he hasn’t influenced a younger generation. In addition to the considerable impact of his built work, he’s watched three of his five children enter the fields of architecture and landscape architecture. The other two are accomplished biathletes. “I lead a pretty boring life compared with them,” he says, tongue in cheek.
Thomas Fisher’s 2011 book on Salmela’s architecture is called The Invisible Element of Place, and the title perfectly fits its subject. There’s an intriguing sense of mystery present in Salmela’s houses, a spiritual quality that’s hard to identify or label. “We do contemporary buildings, but there’s something about the culture that’s in them,” Salmela says. “How do you find that element that’s about the place but doesn’t visibly exist yet? How do you feel when you are there? That’s what interests me.” He credits his clients’ open minds, too. “The uniqueness of the people comes through in the process. To have the place where they dwell represent them—it’s something they’ve always wanted and probably never dared to think in those terms.”
See the accompanying slideshows for images of David Salmela’s past and recent work.
Firm Specs
Years in practice: 21 / Currently active projects: 16 / Projects completed in 2012: 5 / Firm size: 4