Historic log cabin renovation in the Virginia countryside.

A trio of historic structures gains new life in the Virginia countryside

5 MIN READ

Joe Svatos’ 217-year-old log cabin in Rappahannock County, Va., came perilously close to meeting an undignified end. “I bought the property for the land, which had this shack on it,” says the Washington, D.C.–based commercial real estate developer. “I thought we would get rid of it.” But once the dilapidated building’s century-old wood siding was removed, Svatos realized he had a historically significant structure—one that overlooks the tranquil Hazel River and boasts a stunning view of a famous Shenandoah National Park peak known as Old Rag Mountain. So rather than tearing down the cabin and its 1856 addition, he decided to transform it into his own weekend residence.

Architect David Haresign, of Bonstra | Haresign Architects in Washington, had always made a good impression on Svatos. Haresign typically works on larger urban projects, but he eagerly accepted Svatos’ request to design the cabin’s renovation. Svatos chose Greg Foster of Timberbuilt Construction as his general contractor because of the Flint Hill, Va.–based builder’s impeccable track record with both historic houses and more modern residences. Despite the team’s wide range of experience, though, no one involved had ever taken on a job quite like this. “None of us knew how complex and challenging it would be,” Svatos says.

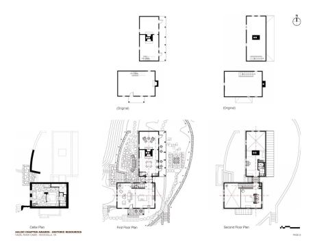
The renovation consisted of three physically distinct sections. The 1794 log cabin originally had served as a toll collector’s station and residence. In 1856, the balloon-framed, clapboard-sided addition was built, and the house remained that way for another century and a half. Then Svatos came along and hoped to add a third historic component, connecting it to the rest of the home. He asked local preservationist Tim Robinson for help, and Robinson found him an endangered log cabin built in 1840 at Mount Joy Plantation in Howard County, Md. (The Howard County Historical Society believes it was likely used as slave quarters.) Robinson disassembled the cabin and moved it to Svatos’ site, numbering the logs so they could be restacked exactly as they’d been before.

In the meantime, Foster and his crew built new foundations for both cabins and for the addition. In true 21st-century style, they used ICFs for the basement walls on the 1840 cabin. They also reinsulated the addition using spray-in foam, and raised its roof by 3 feet to get extra height on the second floor. The team had already determined that this wouldn’t be a straight restoration project, but that it would combine elements of old and new, preserving much about the original buildings while updating them to contain the ebb and flow of modern living. “Philosophically, I like adapting and giving old things a new lease on life,” Haresign says.

High on the Log

Image Credit: Anice Hoachlander

Architect David Haresign came up with a system of precise, modern detailing that complements the Hazel River Cabin’s organic texture. “The logs were so impressive,” he says. “I felt we needed a series of details that would let the rough-hewn parts be primary.” He had contractor Greg Foster’s team scribe each window frame to follow the contours of the adjoining log. This way the logs stand out, and the frames recede into the background. Mechanical elements are almost entirely concealed from view, so as not to create visual static. A glass connector links the 1840 cabin to the 1856 addition. And the clean lines of steel stair railings, toe kicks, and other steel details subtly set off the home’s rustic nature. Explains Haresign: “It’s a very consistent treatment. If you develop a simple philosophy, it’s easier to execute.”

Next came the painstaking step of restacking the chestnut logs on the 21-foot-by-31-foot Howard County cabin. Foster added four more salvaged logs to the top of each of its walls, making the second level a bit taller. Like the chestnut logs, the 16-foot-by-16-foot tollhouse cabin’s mix of woods such as poplar, oak, and pine also had escaped major damage; just a couple of its logs needed replacing.

Foster’s crew meticulously installed layers of rigid foam insulation between the logs on each cabin, filling any remaining gaps with spray-in foam. The thick coat of exterior stucco covering the insulation is angled ever so slightly to catch rainwater and direct it away from the logs. The logs themselves contain naturally occurring cracks that can let in cold air, so Foster sealed and discreetly caulked these as well. Decisions about which cracks to fill happened on a log-by-log basis. “It’s not a science. It’s more of a value judgment,” Foster says.

Stabilization of the log cabin portions became an issue when Svatos decided he wanted to remove some of the cabins’ upper floors. This tactic would provide taller overall volumes and a more open plan, and also would enhance views of the river and mountains. But those second floors supplied a horizontal force that held the walls in place. Without them, Foster worried, the home could lack adequate structural support. So Haresign worked with a structural engineer to devise a system of embedded steel rods and plates that would work with the 2×4 blocking to keep the walls in a secure position. The rods are tied into the foundation, and the ceiling rafters also are bolted into the logs.

This careful process of stabilization shows the delicate balance between maintaining the original house’s integrity and providing comfort and quality of life. In fact, the entire renovation strikes a similar note, mixing old and new techniques and materials to achieve a building that honors both history and modernity.

Foster, Haresign, and Svatos, who currently are working on a poolhouse and an entry gate for the property, see the Hazel River Cabin as part of a proud continuum of reuse and adaptation. Together they’ve united and updated these once-rundown structures, lending them the strength and flexibility to endure into the next century.


Project Credits

Builder: Timberbuilt Construction, Flint Hill, Va.; Architect: Bonstra | Haresign Architects, Washington, D.C.; Restoration/preservation consultant: Heartland Restoration, Leon, Va.; Structural engineer: Itzhak Tepper, The Plains, Va.; Living space: 2,475 square feet; Site: approximately 200 acres; Construction cost: Withheld; Photographer: Anice Hoachlander / Hoachlander Davis Photography.

Resources

Bathroom fittings: GROHE, Newport Brass; Bathroom fixtures: Duravit, Kohler; Dishwasher: Asko; Dryer: LG; Flooring (bath): Stone Source; Garbage disposal: Insinkerator; ICFs: Reward Wall Systems; Lighting: FLOS, Leviton, Viabizzuno, WAC Lighting; Locksets: Highland Forge; Masonry: Charles Luck, Heritage Stone; Microwave: Dacor; Plaster: USG Corp.; Range/oven/range hood: Viking; Refrigerator: Sub-Zero; Roofing: GAF; Sheathing: Dow; Washer: LG; Windows: Eagle; Wood stove: Wittus.

About the Author

No recommended contents to display.

Upcoming Events

  • Design Smarter: Leveraging GIS, BIM, and Open Data for Better Site Selection & Collaboration

    Live Webinar

    Register for Free
  • Slate Reimagined: The Surprising Advantages of Slate Rainscreen Cladding

    Webinar

    Register Now
  • The State of Residential Design Today: Innovations and Insights from RADA-Winning Architects

    Webinar

    Register for Free
All Events