Firm name: Future Firm
Location: Chicago
Year founded: 2016
Firm leadership: Ann Lui, AIA, and Craig Reschke, AIA
Education: Lui: B.Arch., Cornell University; SM.Arch.S., MIT; Reschke: B.Arch., University of Tennessee; M.L.A., Harvard Graduate School of Design
Experience: Lui: Morphosis, Skidmore, Owings & Merrill (SOM), Ann Beha Architects; Reschke: SOM, RODE Architects. Currently, Reschke teaches at University of Illinois Urbana-Champaign and Lui teaches at School of the Art Institute of Chicago.
How founders met: Our hands touched over a piece of trace paper at SOM.
Firm size: Four to six
Mission:
We make spaces—big and small—for people to come together in new ways.

Courtesy Future Firm
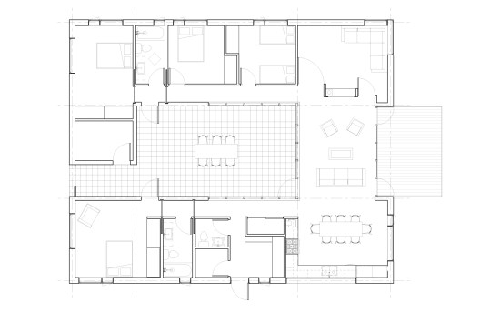
Designed for a site on Turtle Lake, Wis., this vacation residence is inspired by a midcentury bungalow previously on the property.

Courtesy Future Firm
First commission:
Our first project, before we officially became Future Firm, was a small four-seasons room and a new deck for the former facilities archivist at MIT. The project had a nice bay window which overlooked her yard, custom shelving for collections, heating and cooling for her dog, Shadow, and was built by her neighbor. After working on large steel and glass buildings for so long, we enjoyed the intimacy and responsibility of a smaller project.
Favorite project:
One of our self-initiated experimental projects is the Night Gallery, a nocturnal exhibition space in Chicago open from sunset to sunrise, during the warmer half of the year. The Night Gallery features film, animation, and media works by artists and architects and is organized around the public space on the sidewalk.

Courtesy Future Firm
Located in the Bridgeport neighborhood of Chicago, the Night Gallery exhibition space features a street-facing screen for projections of interactive websites, sensor-based installations, or animations such as the algorithm-based “When the Drawing is Moving,” by Rhode Island–based designer Carl Lostritto (shown).
Second favorite project:
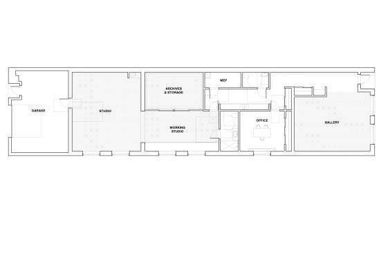
We just completed Studio 5524, a gallery, studio, and office for a Chicago painter. The project transformed an early 1900s building into a space for both creative work and semi-public gatherings. We loved the chance to design both through subtraction—the building had been built up with odd partitions and finishes over time—and preservation—retaining a few key historic elements that gave the minimalist space a unique character.

Tom Harris
Future Firm converted a century-old medical office building into an artist studio, gallery, and office space in Chicago’s Edgewater neighborhood.

Tom Harris

Courtesy Future Firm
Origin of firm name:
In the beginning our name was a placeholder, as in, “At our future firm, we’ll do this.” When we needed to register the LLC, we decided to keep it.
Over time, we have come to think about how the name represents a balance between things that are “future”—vibrant, frenetic, energetic, forward-looking—and “firm”—the ways in which architecture should be stable, work well, and remain reliable.
Architecture hero:
Lui: Diller Scofidio+Renfro, specifically Liz Diller. The balance that their work strikes between experimental, critical practice and an oeuvre of significant buildings is still unmatched. I feel about them the way others feel about Office for Metropolitan Architecture: as “the” architect of our time. The Blur Building was on my wall as a highschooler, like someone might put up a poster of a rockstar or an athlete.
Reschke: It’s hard for me to identify a hero, or a singular practice that has shaped the way I engage with design. I usually fall for the rebellious and the scrappy, and get excited about architecture of all kinds, no matter its shape or style. A few favorites are: Michael Heizer, Gordon Matta-Clark, KieranTimberlake, and Todd Williams Billie Tsien Architects but I wouldn’t call them heroes and I haven’t really discovered what that varied list means for my own work.

Courtesy Future Firm
The firm’s 2016 “The Uncomfortableness of Getting into Bed With Others” alternative seating installation is designed to challenge one’s sense of personal space.

Courtesy Future Firm
Design tool of choice:
Pens in three different line weights. At past firms, we learned the thicker the line weight, the higher the pay grade. These days, we simultaneously function as principals, designers, and interns so we keep a range of options.
Design aggravation:
We once saw a sample of rubber sheets that were stamped and colored to look like bricks and intended to be stapled on the wall. We would probably avoid them.

Courtesy Future Firm

Courtesy Future Firm
Worst criticism you’ve ever received:
Some say everything we design looks like a “bunker or a barn.” We take it as a compliment.
Favorite place to get inspired:
Night swimming at 31st Street Beach in Chicago.

Courtesy Future Firm
First displayed at the 2016 “50 Designers, 50 Ideas, 50 Wards” exhibition at the Chicago Architecture Center, the firm’s Rebel Garages research conceives a city alleyway as an alternative community space.

Courtesy Future Firm
When we’re not working in architecture, we:
Sleep
The best advice you’ve ever received:
American architect John Hejduk said that architecture is what touches the spirit, and everything else is just a building. We interpret this as: architecture is like when you pick the right song on a jukebox and everyone starts to dance.

Future Firm
The Circus for Construction is a traveling event space for exhibiting works of architecture and art that can be hitched to the back of a truck. So far, it has traveled to Boston, New York, Buffalo, N.Y., and Ithaca, N.Y.

Future Firm
Greatest challenge to running a successful practice:
To keep going. It took us a long time to realize that architecture is often about the collision of largely irreconcilable desires, restrictions, and regulations, and that it’s our job to find elegant solutions in the face of these tangles.
Right now, architects should be be discussing:
How to survive the storm—ecological, political, economic, personal.

Future Firm in collaboration with Andrew Heumann
Lui and Reschke collaborated with New York–based designer Andrew Heumann on this 2017 Times Square Valentine Heart Design Competition proposal. Constructed like a scaffolding system, the team hoped to evoke movie theaters of the 1960s and 1970s that “allowed for romantic encounters in an era of necessary anonymity.”

Future Firm in collaboration with Andrew Heumann
Morning person or night owl?
Night owls
Vice:
Architectural competition post-submission waiting period, roulette, dancing at Berlin (in Chicago) or in Berlin (the city), driving on Lower Wacker while playing Yeasayer at full volume, going back into the water after the lifeguards have left. Reschke: roller coasters, screaming out the window while driving. Lui: sleeping, being optimistic.
This story has been updated since its original publication.