Five Solutions for Renovating Row Houses

2 MIN READ

Row houses in urban locations are desirable places to live because they’re often within walking distance of commercial and social amenities, parks, and public transportation. The characteristic features of row houses—tube-shaped spaces with window exposure on two sides—make them dark and tunnel-like, however.
The obvious strategy for bringing light into such a space is to use large glass openings and windows on the front and rear elevations. But success will be limited to the spaces and rooms immediately adjacent to the windows. In some cases, architects create an open floor plan by removing traditional interior walls, using sliding translucent panels, shoji screens, or frosted glass to permit light but maintain privacy.

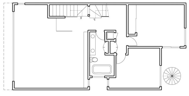
Another option is to locate an open-riser staircase in the middle of the house and use a skylight to bring light into the entire home. This strategy enables shared light among all spaces, and an operable skylight creates a stack effect that controls and permits ventilation.

Surfaces and materials also can aid in distributing light throughout a row home. Stainless steel, resin panels, white ceramic tiles, stainless steel cables, glass staircases, and flooring allow light to spread farther into a row house and help prevent spaces from feeling heavy.

Here are examples of how five architects and designers managed to bring light and air into their row house projects.

Renovating Row Houses

About the Author

No recommended contents to display.

Upcoming Events

  • Build-to-Rent Conference

    JW Marriott Phoenix Desert Ridge

    Register Now
  • Reimagining Sense of Place: Materiality, Spatial Form, and Connections to Nature

    Webinar

    Register for Free
  • Homes that Last: How Architects Are Designing a Resilient Future

    Webinar

    Register Now
All Events