double vision

3 MIN READ

A site that drops sharply into a jungle-like canyon isn’t the first place one would think of putting two high-end spec residences. Nor would a well-preserved enclave of Craftsman, Spanish Colonial Revival, and other historic house styles seem a prime location for a decidedly modern project. But first-time developer John Bertsch saw potential in a canyonside lot in San Diego’s posh Mission Hills neighborhood, and he detected a hunger for progressive design in the local housing market. He acted on his hunch by hiring San Diego architects Taal Safdie and Ricardo Rabines to create a pair of sleek, single-family houses for the property.

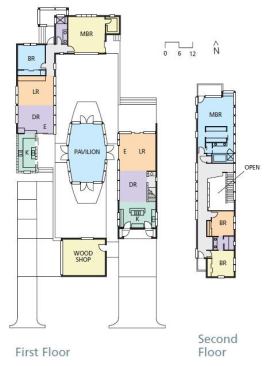
Along with the developer, Safdie, Rabines, and project manager Susan Richard felt the project should take advantage of its unusual site rather than try to overcome it. So they nestled the detached, 2,600-square-foot units’ three levels into the steep hillside, minimizing height to preserve the canyon’s natural beauty. “The older homes in the area are built on top of the soil,” says Bertsch. “We actually cut out the side of the canyon to keep ours as low-slung as possible.” Decks off the top two floors supply high-up vantage points, while a terrace on the lower level lets residents see the canyon rising up around them. “We wanted to create outdoor living spaces,” says Safdie. “When you have a hillside, that becomes a challenge—you don’t want it to be just decks, decks, decks. So we made two types of experiences.” The architects won setback variances that allowed them to pull the houses up closer to the street, thus conserving more of the landscape at the rear of the project.

Thanks to the homes’ contextual scale and sensitive placement, their design had little trouble winning support from a neighborhood review group. From the street only one story is visible, and an exterior materials palette of cedar and steel-troweled stucco picks up on the wood and stucco elements of the surrounding houses. Landscaping and simple cedar trellises provide privacy on either side of each unit.

Although the development team made one major concession to cost—wood shear walls instead of pricier steel framing—for the most part, they gave the project the same refined treatment a one-off residence would receive. Custom cabinetry and floors of bamboo and scored concrete, for example, grace the interiors. “From an architect’s point of view, it was almost like designing two custom homes,” says Safdie. “It might not have been quite as specific to someone’s living habits, but the developer was very personal about it.” The entire endeavor clearly pleased Bertsch. He chose Safdie and Rabines to design his next undertaking—a nearly complete 16-unit condominium building nearby.

project: Lewis Street Homes, San Diego
architect: Safdie Rabines Architects, San Diego
developer: Hip Pocket, San Diego
general contractor: Brian Beeson Construction Management, Solana Beach, Calif.
landscape architect: Nowell & Associates, San Diego
project size: 2,600 square feet per unit
total units: 2
site size: 0.2 acre
construction cost: $208 per square foot
sales price: $1.375 million; $1.5 million
photography: Adam Butler, except where noted

About the Author

No recommended contents to display.

Upcoming Events

  • Design Smarter: Leveraging GIS, BIM, and Open Data for Better Site Selection & Collaboration

    Live Webinar

    Register for Free
  • Slate Reimagined: The Surprising Advantages of Slate Rainscreen Cladding

    Webinar

    Register Now
  • The State of Residential Design Today: Innovations and Insights from RADA-Winning Architects

    Webinar

    Register for Free
All Events