Firm name: Dash Marshall
Location: Brooklyn, N.Y., and Detroit
Year founded: 2009
Firm leadership: Amy Yang, Ritchie Yao, and Bryan Boyer, Assoc. AIA
Education: Yang: B.S., MIT; M.Arch., Columbia University Graduate School of Architecture, Planning & Preservation; Yao: B.S. Environmental Studies, University of Waterloo; M.Arch., Harvard Graduate School of Design; Boyer: B.F.A., Rhode Island School of Design; M.Arch., Harvard GSD
Experience: OMA, Adjaye Associates, Toshiko Mori Architect, Finnish Innovation Fund (Sitra)
How founders met: At the office of Toshiko Mori, FAIA. Yao and Boyer were studying at the GSD at the time and Yang had recently graduated.
Firm size: Five full-time, but we bring in collaborators from our network to contribute to specific aspects of projects as needed

Marc Newton
Designed in collaboration with New York–based artist Yoon Hyup, this furniture series for the Young Sam Kim Korean Student Center at Binghamton University, in Upstate New York, includes a table, benches, and a screen module made of wood to evoke the traditional Korean home and is finished with abstracted houses, rivers, and mountains. “The ideal Korean house sits facing a river, with mountains at its back,” the firm explains. “For students who are away from home, we built all three.”
Origin of firm name:
Dash Marshall is the name of the bossman we invented to lend our fledgling enterprise more credibility. We wanted something that sounded as familiar as General Motors and vaguely like a person’s name—like Don Draper but older. At the time we invented a whole backstory for Dash: “He was this lovely Australian from Perth who passed away in his 80s and we work to continue his legacy.” The name is also a jab at the fact that, more often than not, old white men are still the ones running architecture firms. Progress on racial and gender equity cannot come soon enough.
Mission:
We create spaces that work well for people, so they can be better advocates for spaces that work well for the community. Beyond the projects, we’re trying to create a good environment for our team where, together, we can do good work for others.
First commission:
An Apartment for Space-Age Lovers—at that time we made an LLC as a legal precaution and worked nights and weekends, but we didn’t know if there would ever be more than one project.

Elizabeth Wentling
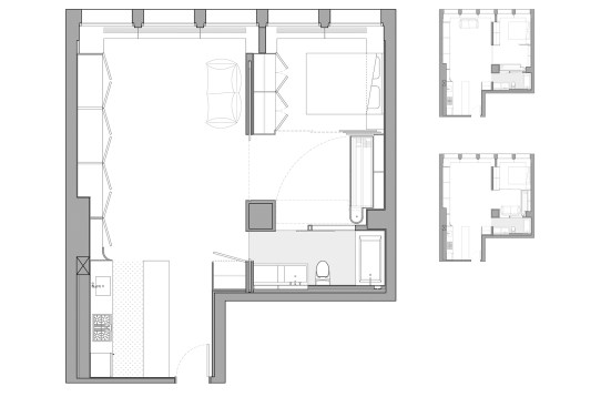
Dash Marshall renovated a 715-square-foot New York apartment into a “space capsule temporarily docked here on Earth” that can hide away all personal items.

courtesy Dash Marshall
Floor plans, An Apartment for Space-Age Lovers
Favorite project:
Yang: We still hear from the owners of our Raft Loft project, in New York, about how much it has changed their experience of home. Hard to beat that.

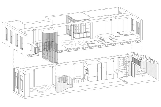
courtesy Dash Marshall
The Raft Loft, in New York City, uses an elevated platform, or raft, that divides the ground floor into three distinct zones.

Mark Wickens
A suspended staircase helps to maximize floor space in the living room of the Raft Loft.
Yao: We are currently in design development on a new home for Detroit Public Theatre. It is an adaptive reuse of one of the first auto garages in the United States.

courtesy Dash Marshall
Detroit Public Theatre
Boyer: The Autonomous Vehicles: Future Scenarios project we created for the National League of Cities as a joint venture with our frequent collaborators, Star City Group. Our scenarios show how urban leaders can harness AVs for policy goals—improving everyday life for normal people. They’re systemic and tangible at the same time, and were co-created with input from the mayoral leadership of 10 cities assembled into a network by Bloomberg Philanthropies and The Aspen Institute, so it had an immediate and important audience.

courtesy Dash Marshall
The Autonomous Vehicles: Future Scenarios project features “pro-urban AV concepts through a glimpse of the daily life of residents of future cities,” according to Dash Marshall.
Second favorite project:
Since 2018 we’ve been working with Face Haus, a single-service spa offering quick, high quality, affordable facials. First, we translated their brand into a spatial design system and then rolled it out in six locations, helping them expand from California to New York City and Texas. The spaces are a mashup of California sunshine and Finnish forests. We dealt with tight constraints on budget, timeline, and vendors, but were able to bend the delivery of the built environment to produce better outcomes. It’s our job to fold all of the “has to be this way” and “we can’t afford anything else” impasses into something coherent.
Architecture/design hero:
Dash Marshall. He’s a legend of Australian architecture.
When did you decide to become an architect?
Yang: While taking a studio with Meejin Yoon, AIA. Not easy, but it put me on this path and I’m grateful.
Biggest career leap:
Starting a business in the Great Recession
Biggest design challenge you’ve overcome:
The #matterbattle, which is the difficulty of realizing digital designs in physical material. We like to think that we detail and build spaces that are as nice in person as they are in photos.
Biggest challenge in running a successful practice:
Surviving a pandemic

Mark Wickens
The firm re-created and reconceived Ludwig Mies van der Rohe’s signature design elements for this Detroit house renovation. In the kitchen, verde alpi marble acts as a nod to Mies’s use of the material in corporate lobbies.

Mark Wickens
In the kitchen, corrugated cabinet doors become a seamless volume.
![In an office, the firm opted to borrow the architect’s “clever soffit detail at the façade [to create] a similar nook in the closet.”](https://architectmagazine.stg.zonda.onl/wp-content/uploads/sites/5/2025/06/dear-mies-dash-marshall-bedroom.jpg?w=551)
Mark Wickens
In an office, the firm opted to borrow the architect’s “clever soffit detail at the façade [to create] a similar nook in the closet.”
Greatest mentor:
Toshiko Mori: Draws a perfect plan on the first go. David Adjaye, Hon. FAIA: Proportion. Section. Calm. Rem Koolhaas, Hon. FAIA: Question everything. Marco Steinberg: Strategic design.
Modern-day design hero:
Yang: Zaha. She was the first. She doesn’t even need a last name!
Yao: [Screenwriter] Charlie Kaufman. Stories are spaces and spaces are stories.
Boyer: Chelsea Mauldin of Public Policy Lab, for which I’m a board member. Her organization works with government to redesign services to be more equitable, empathetic, and successful.
The best advice you have ever gotten:
Behind every criticism there is a wish. Before you say something, put yourself in the recipient’s shoes. Work with good people.
Advice for your younger selves:
Go to parties of non-architects in school and become friends with them.
Design tool of choice:
Pen—drawing is always first.
A tool you would love to invent:
Global Architect Card, which would be something you can flash like an FBI agent and say, ”I’m an architect!” It would give you access to every nice building in the world so you can take pictures, inspect finely detailed stairs, or see the hidden courtyards. We got tired of waiting and created this already: You can buy them on our website now.
A design trend that needs to return:
Civic clocks


courtesy Dash Marshall
Dash Marshall worked with the Reimagining the Civic Commons initiative to create a visual CliffNotes of before-and-after scenarios for urban design interventions.
A design trend to leave behind:
Architects being cloistered in the AEC world. Important strategic design work has to be done in collaboration with policymakers, economists, lawyers, business people, and others. As Marco Steinberg says, we live in a world of 19th century institutions with 21st century problems. Architects can redesign more than buildings.
Design aggravation:
People pretending to draw by hand for the sake of Instagram
Architects should be discussing:
Circular economy and decarbonization
Special item in your studio space:
We created the Very Slow Movie Player as an experiment to see if we could change the way we perceive time. It plays a movie at 24 frames per hour and takes more than a year to complete a single film.
Favorite place to get inspired:
Yang: On the road.
Yao: Alone in barren places.
Boyer: With other people.
Favorite destination for architecture:
Movies
Skills to master:
Speaking plainly. Being charming. #feelsmorefuture and #matterbattle
Essential morning or evening routine?
Exercise. Listen to NPR.
A social media account everyone should follow:
Someone whose opinion you disagree with
What are you reading?
CARES Act Paycheck Protection Program guidelines