ECOHOME 2010 EcoHome Design Awards Grand Award High transoms…
ECOHOME 2010 EcoHome Design Awards Grand Award High transoms along the roofline heighten the indoor-outdoor connection and frame distant views.
Eric Roth
On this sunny bluff overlooking Cape Cod Bay, 11.7kW of solar pa…
On this sunny bluff overlooking Cape Cod Bay, 11.7kW of solar panels on the south-facing roof gather much of the home's required energy.
Eric Roth
Inspired by the slope of the dunes, the home's rooflines fit ele…
Inspired by the slope of the dunes, the home's rooflines fit elegantly into the site and soar upward to capture distant ocean vistas.
Eric Roth
Sloped ceilings soar up toward ocean vistas and lower down into …
Sloped ceilings soar up toward ocean vistas and lower down into more personal interior spaces.
Eric Roth
Heat gain from west-facing windows was countered by a tighter, w…
Heat gain from west-facing windows was countered by a tighter, well-insulated building envelope and thoughtfully zoned HVAC.
Eric Roth
Eric Roth
View from foyer looking across the open kitchen into the dining …
View from foyer looking across the open kitchen into the dining room.
Eric Roth
The entry way opens up to both living and sleeping sections of t…
The entry way opens up to both living and sleeping sections of the flexible floor plan as well as offering immediate access to the beaches beyond.
Eric Roth
An expansive deck rests steps above grade obviating the need for…
An expansive deck rests steps above grade obviating the need for view-blocking railings.
Energy Diagram
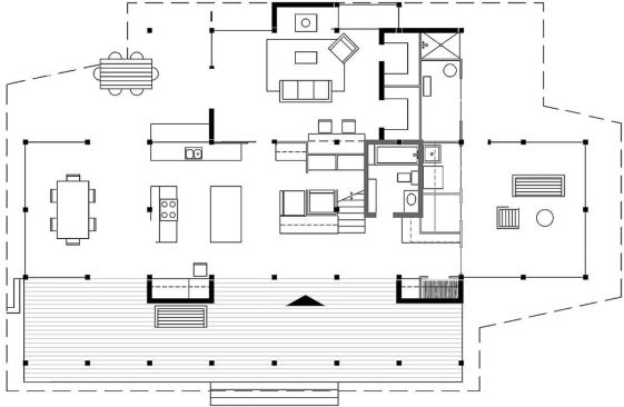
Floor plan diagram showing how the house can be closed off or op…
Floor plan diagram showing how the house can be closed off or opened up depending on the number of occupants.
Site plan
Warren Jagger Photography
CUSTOM HOME 2009 CHDA Born House, Little Compton, R.I. Grand …
CUSTOM HOME 2009 CHDA Born House, Little Compton, R.I. Grand Award: Custom Home / Less Than 3,000 Square Feet
Warren Jagger Photography
Inside, steel I-beams stand in for exposed timbers.
Warren Jagger Photography
A respectful reinterpretation of New England farmhouse vernacula…
A respectful reinterpretation of New England farmhouse vernacular, this vacation compound uses a woodshedlike covered walkway to link the main house and a garage/guest apartment.
Jeremy Jachym
CUSTOM HOME March-April 2009 On Site Structural Integrity N…
CUSTOM HOME March-April 2009 On Site Structural Integrity Native grasses, which require little or no watering, naturally go dormant during Northern California's annual dry season.
Jeremy Jachym
Jeremy Jachym
Clean geometry and an abbreviated finish schedule yield interior…
Clean geometry and an abbreviated finish schedule yield interiors that are relaxingly simple. The dining area centers on a table whose top is a single slab of reclaimed redwood.
Jeremy Jachym
Translucent canopies link the building's three pavilions.
Jeremy Jachym
Glazing in the main living pavilion is oriented for solar gain a…
Glazing in the main living pavilion is oriented for solar gain and views of the surrounding Madrone forest.
Jeremy Jachym
A short uphill hike brings one to the pool pavilion and a shallo…
A short uphill hike brings one to the pool pavilion and a shallow lap pool heated entirely with solar collectors.
Paul Body
Residential Architect March 2006 K + B Studio / Kitchen Main …
Residential Architect March 2006 K + B Studio / Kitchen Main Course The kitchen is the command center for all public spaces within the home. "From the kitchen you can communicate with people in all of the nearby rooms and see out to all of the exterior spaces," Burke says.
Paul Body
Glass walls on the exterior and a lack of walls inside let the 1…
Glass walls on the exterior and a lack of walls inside let the 1,500-square-foot house live large. Outdoor terraces and porches nearly double the home’s total square footage.
Brad Burke, San Diego
Audrey Hall Photography
Residential Architect June 2007 In the Middle of Nowhere Alo…
Residential Architect June 2007 In the Middle of Nowhere Alongside the unpaved road to Lori Ryker and Brett W. Nave's home and studio, alpacas and horses nibble placidly at the surrounding grassland. Dusty pickup trucks drive well under the posted speed limit of 35 miles per hour. The Livingston, Mont., compound is so remote, its exact street address doesn't show up on MapQuest.
Audrey Hall Photography
Audrey Hall Photography
Alongside the unpaved road to Lori Ryker and Brett W. Nave's hom…
Alongside the unpaved road to Lori Ryker and Brett W. Nave's home and studio, alpacas and horses nibble placidly at the surrounding grassland. Dusty pickup trucks drive well under the posted speed limit of 35 miles per hour. The Livingston, Mont., compound is so remote, its exact street address doesn't show up on MapQuest.
Audrey Hall Photography
Eric Millette
Residential Architect July-August 2011 Green Piece Mountain S…
Residential Architect July-August 2011 Green Piece Mountain Solo An energy-efficient, low-maintenance building shell and both passive and active solar energy systems yield a building that can fend for itself in a remote location subject to extreme weather.
Eric Millette
Interior materials include a variety of salvaged woods and spray…
Interior materials include a variety of salvaged woods and sprayed earth plaster.
Eric Millette
The knotty pine ceiling is the inside face of the SIPs that form…
The knotty pine ceiling is the inside face of the SIPs that form the roof.
Ed Caldwell
Residential Architect March 2005 Natural Habitat The straw b…
Residential Architect March 2005 Natural Habitat The straw bale Johnson residence in the Sierra Nevada Mountains is virtually free of the power grid. Upturned roofs collect sunlight and offer views of Job’s Peak.
Ed Caldwell
Photovoltaic panels generate electricity, and solar thermal pane…
Photovoltaic panels generate electricity, and solar thermal panels combined with radiant sand beds beneath concrete slabs provide heat and hot water.
Ed Caldwell
The fireplace is shaped with sprayed earth.
Ed Caldwell
Inside the Johnson house, salvaged fir slats echo the exterior s…
Inside the Johnson house, salvaged fir slats echo the exterior siding, and glass panels on the floor transmit light to a hallway below.
Ed Caldwell
The “truth” window.
Ed Caldwell
The old exterior cladding reappears as wainscoting in the new bu…
The old exterior cladding reappears as wainscoting in the new building, and the old doors are boiut into a frame that folds open like a Shoji screen, merging the main space with the screened porch.
Custom, single-family houses are a luxury and some would argue that they never truly can be considered sustainable because of the abundant energy and materials required to shelter one set of occupants. The classic interpretation of the American dream, however, is based on owning that personal parcel of land with a big house where the entire family can gather around the hearth. And although family compositions are changing, that iconic idea that owning a custom house is equivalent to “making it” is unlikely to change anytime soon.
The architects and builders whose work is represented in the accompanying slideshow do their best to offset the extravagance of building a solitary dwelling by incorporating energy-producing and resource-conserving systems. These thoughtful design pros also manage to capture the best views without forgoing solar orientation; create gorgeous buildings using nontoxic sustainable materials; and take advantage of breathtaking settings while building as lightly as possible on the land.
The projects seen here strive for an even deeper shade of green through energy independence. Some are completely off-the-grid while others feed excess energy back into the grid, but all of the designs focus on renewable energy such as solar and geothermal. Efforts to save resources don’t end with energy—these houses employ sustainable features inside and out, from top to bottom. Mechanical zoning, passive cooling and heating, super insulation, water conservation and recycling, energy-efficient lighting and appliances, nontoxic finishes, and reclaimed materials are just some of the environmentally sound amenities.
Many of the projects also sit on large pieces of untamed land that are being preserved thanks to private ownership. Architect David Warner, for example, bought a piece of land slated for the development of 14 houses. A favorite hiking haunt of his, Warner didn’t want the forested acreage to be bulldozed so he bought it, retired the development plan, and built a house on it for his family. “We had all these biological resources we wanted to maintain,” he explains, including a pair of northern spotted owls. “There’s only 2,000 nesting pairs left in the world, and we have a pair on our property.” Yet another reason to credit Warner and his sustainably minded colleagues with doing at least one version of the right thing.