Weekend House on Lake Superior

Schroeder, Minn.

2 MIN READ

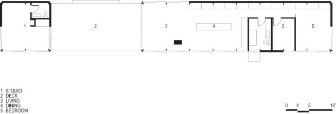
Julie Snow Architects • On the north shoreline of Lake Superior, Weekend House is a quiet retreat for its owners. The owners—the architect and her husband—studied the site for years before deciding to build and their respectful relationship with the lake helped them imagine a home that would tread lightly on the pristine four-acre site, populated by spruce and birch trees along 240 feet of shoreline. The architect responded with a “stealthy” design, placing the 1,300-square-foot, one-story dwelling 40 feet back from the shore. Two black-framed glass structures contain the main house and a small studio, which are separated by an open deck. A single heat-circulating fireplace emerges from the living room.

The jurors were nearly unanimous in their praise of the aesthetics of “the chill house,” as they called it. They all thought it beautiful, and that “[the details] are so refined,” as juror John Cary said. It’s evident that the architects focused on material selection. The exterior panels are made of back-ventilated pre-drilled Skatelite, a material typically used for skateboard ramps, that was chosen for its color and durability. Narrow argon-filled aluminum windows are supported on a steel ledge, allowing the sill and head to extend below the floor and above the ceiling, to enhance an uninterrupted connection to the exterior. The glazing details and the siting combine to make views of the lake and surrounding landscape an immediate panoramic experience. The black post-and-beam boxes rest lightly in the winter landscape of black and white tree trunks, while in the summer, they fade into the green foliage.

Weekend House is a stellar architectural interpretation of the ancient maxim, “First, do no harm.” In addition to its super-insulated floors, walls, and roof, the entire complex rests on a black platform raised just above the ground. The platform sits on wood piers, leaving a footprint measuring only 12 by 16 feet for mechanical equipment and storage. This allows critical runoff from the adjacent Sawtooth Mountains to continue to flow directly into the lake with minimal disturbance.


Project Credits

Weekend House on Lake Superior, Schroeder, Minn.
Client Jack Snow
Architect Julie Snow Architects, Minneapolis—Julie Snow (principal-in-charge and project lead designer)
Contractor and Cabinetwork
Rod & Sons Carpentry—Brad Holmes
Structural Engineer Mattson Macdonald Young—Dave Macdonald
Mechanical Engineer Jack Snow
Size 1,024 square feet (main house); 256 square feet (studio)
Cost Withheld
Photography Peter Kerze

About the Author

No recommended contents to display.

Upcoming Events

  • Design Smarter: Leveraging GIS, BIM, and Open Data for Better Site Selection & Collaboration

    Live Webinar

    Register for Free
  • Slate Reimagined: The Surprising Advantages of Slate Rainscreen Cladding

    Webinar

    Register Now
  • The State of Residential Design Today: Innovations and Insights from RADA-Winning Architects

    Webinar

    Register for Free
All Events