Public Spaces Prized

A jury with diverse inclinations agreed on a First Award for Machado and Silvetti Associates’ reshaping of an urban campus.

1 MIN READ

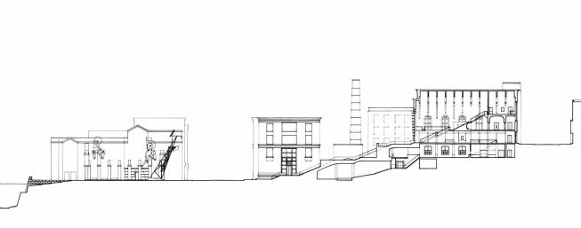
By the end of the 1970s, architects of all persuasions were committed to the conscious shaping of public open spaces—a goal rarely addressed by earlier generations of Modernists. The campus of the Rhode Island School of Design (RISD) in Providence, R.I., offered a prime subject for such an effort. RISD had grown by adapting a variety of existing structures and adding a few infill buildings. These were casually organized along streets that meander up College Hill from the riverfront toward the nearby Brown University campus.

The then-emerging architects Rodolfo Machado, Intl. Assoc. AIA, and Jorge Silvetti took up the challenge of creating defined spaces that would give the arts school an identifiable campus. They proposed reworking gaps in the urban fabric—parking lots, bits of redundant street, amorphous green patches—as a sequence of related spaces, bounded variously by new construction, remodeled façades, and loggias. Given the incline of about 100 feet from the lowest to the highest RISD properties, the scheme featured a series of grand stairs and intimate plazas recalling Baroque precedents. New architectural features shown schematically in the proposal played freely on the Classical precedents of some on-site buildings.

Jury members with such disparate design approaches as Frank Gehry and Robert Stern warmly endorsed the scheme. Gehry cited its “spectacular knitting together” of diverse elements, and Stern called it “extremely brilliant.” For all the jury’s enthusiasm, the ambitious proposal was not carried out, and RISD still fulfills its mission without a coherent campus.

1980 P/A Awards Jury
Frank O. Gehry, FAIA
Helmut Jahn, FAIA
John L. Kriken, FAIA
Wolfgang F.E. Preiser
Charles F. Rogers
Robert A.M. Stern, FAIA
Blanche Lemco van Ginkel
Francis T. Ventre

About the Author

John Morris Dixon

An architecture graduate of MIT, John Morris Dixon, FAIA, left the drafting board in 1960 for architectural journalism, eventually becoming editor-in-chief of Progressive Architecture (P/A) from 1972 to 1996. He has chaired the AIA’s national Committee on Design, on which he remains active, and is involved in preservation of modern architecture as a board member of Docomomo New York/Tri-State. He continues to write and edit for a variety of publications, in print and online.

No recommended contents to display.

Upcoming Events

  • Build-to-Rent Conference

    JW Marriott Phoenix Desert Ridge

    Register Now
  • Reimagining Sense of Place: Materiality, Spatial Form, and Connections to Nature

    Webinar

    Register for Free
  • Homes that Last: How Architects Are Designing a Resilient Future

    Webinar

    Register Now
All Events