Brett Boardman Photography
The Majestic Theatre was built in 1921 and has served as a vaud…
Brett Boardman Photography
The Majestic Theatre was built in 1921 and has served as a vaud…

A Dutch couple transforms a church into their own residence.

An apartment conversion in Australia breathes new life into a former theater and roller rink.

An architect couple transforms an old stable into a home for themselves.
In its long and storied career, the Majestic Theatre has lived through incarnations as a vaudeville venue, a movie palace, a roller skating rink, and now an apartment building.
But if architects Sarah Hill and Philip Thalis had had their way, it never would have made its most recent transformation. When their builder/developer clients first floated the idea, Thalis says, “we said, ‘Don’t buy it. It’s too big for you.’ But of course they couldn’t resist a bargain.” Thus overruled, the architects proceeded to design a 27-unit mixed-use retrofit that reconnects the building with the vibrant urban life around it, preserves and celebrates its colorful history, and makes its architects happy to admit they were wrong.
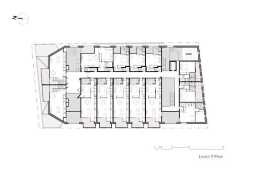
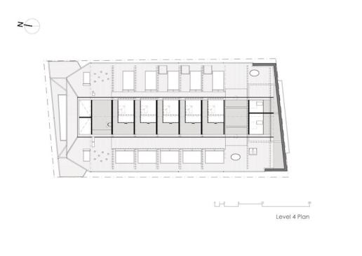
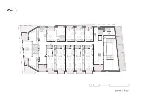
A landmark in Sydney’s Petersham neighborhood since 1921, the Majestic’s picturesque Moorish façade had been dark for some 20 years when Hill and Thalis went to work planning its rebirth. “The building was heritage listed, and we are accredited heritage architects, so we wanted to respect its original form,” Thalis says. But the largely windowless shell posed an obstacle. “It was like a big barn,” he says. To create a residential atmosphere and to meet mandatory standards for natural light and cross ventilation, the architects pulled the living spaces in from the building’s perimeter, creating open-air circulation zones and private balconies partially or fully within the existing brick walls. “Effectively, there’s a new building inserted into the heart of the shell,” Thalis says.
Multistory lobbies at the front and rear of the building preserve remnants of its past: original stairways, some of which are intact and functional, while others remain as floating sculpture or ghosted on a brick wall; a pressed-tin ceiling; a lighted “Rollerskating” sign. “The original front façade was restored,” Thalis says, “but we display all the periods of the building, including the roller rink years. You can see where the seating used to be … all the signs of life. It’s meant to expose the pattern of the building.”
In practical terms, Thalis says, “the brief was to maximize the number of units and the amount of retail square footage.” Storefront commercial spaces opening onto a narrow lane at the building’s west side occupy most of the ground floor. Spare and efficient one-bedroom apartments fill the three floors above, in a mix of single- and multi-level plans that maximize exposure to sunlight and fresh air. “Every apartment has at least one balcony; quite a number have two,” Thalis says. “And there are lots of indoor/outdoor views from apartments into the common spaces.”
The apartments’ clean, lean interiors contrast with rougher elements of the building’s historic structure: 18-inch-thick brick walls, saw-cut for new balconies; aged plaster and paint, preserved with a clear sealer; and, in top-floor units, the roof’s Oregon pine roof trusses. The engaged, idiosyncratic spaces reflect the partners’ highly individualized approach to multifamily projects. “You’ve got to make every apartment livable,” Thalis says. “You not only don’t want a bad apartment, you don’t want one bad room.”
No recommended contents to display.