The Cadet Chapel at the U.S. Air Force Academy, near Colorado Springs, Colo., is a masterpiece of glass, steel, and aluminum. Designed by the late Walter Netsch of Skidmore, Owings & Merrill (SOM), the multi-denominational chapel was completed in 1963. With its stunning ribbons of stained glass and 17 identical spires that pierce the sky, the buildingâs expressionistic design (Time magazine dubbed it âAir Force Gothicâ) stands in glorious counterpoint to Netschâs low-slung, horizontal collection of buildings elsewhere in the Cadet Area, the academyâs academic and residential core.
Netschâs bold design for the academy was highly controversial when first conceived in the 1950s. Today, itâs considered one of the prime examples of postwar Modernism, a kind of Rocky Mountain BrasĂlia. And despite a few regrettable additions and alterations over the years, the Cadet Areaâa National Historic Landmark Districtâhas remained largely as Netsch envisioned it.

Magda Biernat
Polaris' tower, which is canted at a 39-degree-angle to align with the North Star
But thereâs a new kid on campus: the Center for Character & Leadership Development (CCLD), informally known as Polaris Hall. Designed by Roger Duffy, FAIA, of SOMâs New York office, the $40 million, 46,500-square-foot buildingâfunded by a combination of tax dollars and private donationsâis the most significant addition to the academy in decades. The tilted tower, a short walk from the chapel, both pays homage to Netschâs rigorous Modernism and is also a radical departure from it. Duffy insists the CCLD is appropriately scaled and ârespectfulâ of Netschâs original buildings. But thereâs no doubt that it steals some of the chapelâs architectural thunder.
Surprisingly, thereâs been little controversy over the new building, which finally opened in April after numerous construction delays. (Early on, workers digging the foundation encountered a boulder the size of a semi-truck, and later it was discovered that the tower was about an inch out of alignment. Last fall, just as the building was about to finally open, a pipe in the fire sprinkler system burst, causing extensive damageâand more delays.) Although SOMâs design was widely published online when ground was broken in 2012, the completed structure has received scant attention, even among architects and critics. So how did a 105-foot-tall glass-and-steel tower end up rising in the middle of a National Historic Landmark District?

Magda Biernat
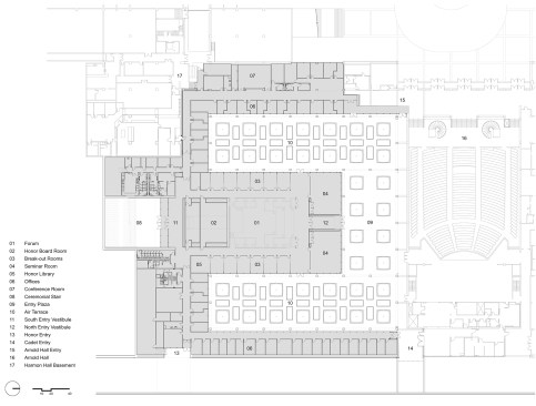
The Forum, a gathering space for meetings and talks

Daniel Bourque
Cadet Chapel interior
It helps to understand that one of the academyâs stated goals is to train and develop âleaders of character.â Cadets pledge to adhere to an honor code: âWe will not lie, steal, or cheat, nor tolerate among us anyone who does.â Those words are inscribed in large letters on the academyâs Honor Wall.
But the academy has been plagued by scandal over the years. In 2003, numerous charges of sexual assault resulted in the removal of four top officers, including the superintendent. Two years later, critics alleged that some academy staff members were pushing evangelical Christian beliefs on cadets. And most recently, in 2014, 40 freshmen were suspected of cheating on a chemistry assignment (10 of the students were found guilty).
In 2005, then-superintendent Lt. Gen. John F. Regni began exploring the idea of a dedicated building for leadership and character training. As Regni recalled in a 2012 paper, the academyâs mandatory leadership classes were âsomewhat general [and] cursory,â and they were held in classrooms scattered across the campus. Honor code hearings were conducted in a windowless conference room in Fairchild Hall, the main academic building. âIt became obvious the core mission of the academy was being accomplished on the cheap,â Regni wrote.
At the urging of a group of influential alumni, Regni developed a plan for a new facility that would make a powerful statement about the importance of moral and character education. âIt became evident,â Regni wrote, that the building deserved to be âthe next iconic structure after the chapel.â

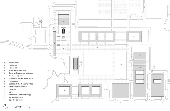
Site plan for the Cadet Area
Duane Boyle, AIA, is the academyâs resident architect. âWe knew that putting an iconic building into whatâs considered the heart of the historic landmark district could be very controversial,â he says. Boyle, a civilian, is not your typical government bureaucrat. He grew up in a neighborhood outside the academyâs south entrance and was inspired to become an architect by his frequent visits to the campus. He even worked for a time at SOM. At the academy, he led the effort to get the Cadet Area listed as a landmark. At the same time, he insists, âWeâre not just this architectural gem thatâs stuck in time. Weâre a university campus, and you have to evolve.â
Regni and Boyle both agreed that any new building should be grounded in Netschâs architectural principles for the academy, and that it had to be a complementary structure, not one that would detract from the Cadet Areaâs historic character. They concluded that the best firm for the job was the one that had designed the academy in the first place: SOM. Boyle contacted the firmâs New York, Chicago, and San Francisco offices. âEach jumped at the opportunity,â says Regni. âWe decided to open a friendly competition, pitting each office against each other to independently develop their own design.â

Magda Biernat
Interior detail of the tower
In New York, Roger Duffy felt the weight of the assignment immediately. âIt was a very imposing challenge,â he says. âWe werenât exactly sure how to approach the project. It took us a while to get our heads around it. I mean, the last thing anyone wants to do is make a wrong move at a place like that.â
Although Duffy, 59, had once met the famously irascible Netsch in Chicago (âHe was a big man with a booming personality,â Duffy recalls), he had never visited the academy. So he flew to Colorado Springs and toured the chapel, of course, with its dramatic tetrahedron-and-stained-glass interior. But he also took note of the stunning assemblage of buildings designed by Netsch using a 7-foot organizing grid, and the immense plaza known as the Terrazzo, where freshman cadets (âdooliesâ) are required to jog to and from classes in straight lines formed by marble strips, one of many strict rules imposed on first-year students.
âI was quite overwhelmed,â Duffy recalls. Visitors to the academy enter the Cadet Area at its highest point, which offers a stunning view of the entire site. âYou sort of look out and down over the campus. You just in one gestalt moment âget it.â Somehow I didnât think it would be so powerful, but it is. I love the level of rigor that Netsch and [Gordon] BunshaftââSOMâs longtime chief of designââimposed on everything.â

Magda Biernat
Aerial of the chapel (left) and Polaris (right)
Academy officials wanted the building to be in a prominent location, and they zeroed in on an area called the Honor Court, a large public plaza not far from the chapel. Duffy chose a site on the north end of the Honor Court, adjacent to Arnold Hall, a white-marble box that serves as the academyâs social hall. Much of the CCLD is set below the plaza, in a little-used former courtyard space. Visitors enter the building by walking down a wide granite staircase from the plaza level. Classrooms, meeting rooms, and offices ring the remaining courtyard, allowing natural light to stream in.
Inside, Duffy adhered to Netschâs 7-foot grid, and he used materialsâsuch as Murano glass tiles on the walls near the main entranceâthat mimic those found elsewhere at the academy. (It was Bunshaft who suggested the use of red, blue, and yellow Italian mosaics at vestibules.)

Magda Biernat

Section of the tower
The CCLDâs most striking feature is the tower canted at a 39-degree angle in order to align with the North Star, symbolizing the academyâs âunchanging core values,â Boyle says. The towerâs four sides taper to a squared-off roof containing an oculus. From inside the CCLDâs Honor Board Room, a cadet accused of violating the academyâs honor code can look up at night and see Polaris through the opening, an intimidating reminder, perhaps, of the value of a moral compass. The glass tower also serves as a majestic skylight for the CCLDâs âforum,â a large gathering space for meetings and TED Talkâstyle events, which is located next to the board room but doesnât share the same alignment with Polaris.
Duffy concedes the CCLDâs tilted tower is a departure from the academyâs strict geometric grid, with its abundance of straight lines and right angles. Previously, only the expressionistic chapel stood apart from the orderly rationalism of the other architecture. While the CCLD isnât as massive as Netschâs celebrated building, it does compete with it visually.

Magda Biernat
The Honor Board Room

Polaris Hall plan
Duffy insists the CCLD is appropriately scaled and ârespectfulâ of the chapel and Netschâs other buildings. He intentionally placed the towerâs steel trusses on the inside, with smooth glass on the outside, in order to make the building even less sculptural than it is. âIf we had inverted the structure and put it on the outside,â he says, âI think there would have been more tension between the CCLD and the chapel.â
The competitionâs other entries were by Brian Lee, FAIA, a design partner with SOMâs Chicago office, who conceived of a cylindrical buildingâalso next to Arnold Hallâcomprising a structural steel âbasketâ surrounded by glass; and Craig Hartman, FAIA, a design partner based in SOMâs San Francisco office, who chose a site somewhat closer to the chapel for a striking glass box supported on the inside by a series of angled steel struts.
The jury was made up of academy officials (including Regni) and two prominent architecture scholarsâJoan Ockman, then-director of the Temple Hoyne Buell Center for the Study of American Architecture at Columbia University, and Kent Kleinman, AIA, dean of Cornell Universityâs College of Architecture. They had âa good deal of debateâ over the three entries, as Ockman recalls. In the end, Duffyâs design prevailed, she says, because âit calls attention to itself as a leadership centerâ while keeping a respectful distance from the chapel. It helped that much of the building is set below the plaza level.âIt was a difficult task to design a building that would fit right in to that campus, rather than to site it off the main grid. That would have been much easier,â says Ockman, now a distinguished senior fellow at the University of Pennsylvania School of Design. But Duffy, she believes, really pulled it off.
An advisory panel that included Joseph Saldibar, architectural services manager at the Colorado Historical Society; Tom Keohan, historical architect at the National Park Service; and Robert Nauman, an architectural historian at the University of Colorado, also signed off on Duffyâs design. âWe felt that it was the most compatible with the academyâs existing architecture,â Keohan says, âand had the least impact on the historical integrity of the site.â
Not that they could have stopped the project. Saldibar points out that any changes to National Historic Landmarks proposed by federal agencies are subject to the Historic Preservation Actâs Section 106 review process, but that the process is limited in what it can achieve. âWe have the ability to make recommendations on the proposals, and under the law, the academy is required to take those recommendations into account. But theyâre not required to change anything. They can really choose to do pretty much anything they want in a historic landmark district: Add buildings, tear down buildings, significantly alter buildings.â

Magda Biernat
The Forum
Says Nauman: âI hate to say that nothing is holy in architecture, but the fact is, needs change over time, and the academy is a campus with 21st century needs. You canât just preserve it in amber.â
As he sees it, the CCLD symbolically shifts attention away from a religious buildingââmeant to be a marker in the Cold War against godless communismââto a secular building. âAnd thatâs more appropriate in todayâs world.â
What would Walter think? âI suspect he wouldnât be particularly favorable about drawing attention away from his chapel,â Nauman responds.
Boyle, however, thinks itâs highly possible that Netsch would have approved of Duffyâs design. In the late 1990s, he says, Netsch drew up conceptual plans for a âmeditation center,â a response to increasing demand for worship space from alternative religious groups at the academy. âIt was a triangulated glass building with a squared-off cone,â Boyle says, âa very towering structure, similar to SOMâs design for the new building. But it was even taller, and would have been closer to the chapel.â


Netsch's 1998 concept for a proposed meditation chapel, which would have been located near the chapel
It was never built, but Boyle believes it demonstrates that Netsch, who died in 2008, wasnât opposed to architectural alterations at the academy, even in the hallowed Cadet Area.
In any case, Polaris Hall seems to have been largely embraced by students, faculty, and administrators. As for the architectural community, âthereâs been practically zero interest,â Boyle says. âItâs really odd.â
Still, Boyle, whose next project is a long-planned restoration of the Cadet Chapel, seems relieved to have dodged a bullet. âI did what I could to try to head off any controversy,â he says. âSo far, there hasn’t been any, but it could still happen.â