R-House

Syracuse, N.Y. / Della Valle Bernheimer and Architecture Research Office

1 MIN READ

Category: Live
Honorable Mention

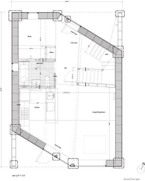
The winner of a competition to create a single-family prototype home for Syracuse, N.Y., R-House, designed by Brooklyn, N.Y.–based Della Valle Bernheimer and New York–based Architecture Research Office, reflects the scale and character of the existing housing stock in the city’s Near Westside neighborhood. But in terms of efficiency, the 1,100-square-foot home outshines its peers: R-House uses 71 percent less energy than an average home in Syracuse.

Built to Passivhaus standards, R-House has a well-insulated envelope, high-performance windows, and an air-circulation system for heating and ventilation. The silver-toned corrugated-aluminum cladding will stand out during snowy winters. The jurors appreciated that this project—at a cost of about $180 per square foot—demonstrates that 21st-century design belongs to lower-income residents, too. “We need to see more architects design work for American families,” juror Ted Landsmark said.


Project Credits

R-House, Syracuse, N.Y.
Client Syracuse University School of Architecture and Syracuse Center of Excellence with Home Headquarters
Architect Della Valle Bernheimer, Brooklyn, N.Y.—Jared Della Valle, AIA, Andrew Bernheimer, AIA, and Architecture Research Office, New York—Stephen Cassell, AIA, Adam Yarinsky, FAIA, Kim Yao, AIA
Structural Engineer Guy Nordenson Associates—Brett Schneider
Environmental/M/E/P Engineer Right Environments—David White
LEED Consultant Northeast Green Building Consulting—Kevin Stack
Cost Estimator Stuart-Lynn Company— Breck Perkins and Victoria Cabanos
Landscape Architect Coen+Partners— Shane Coen
Size 1,100 square feet
Cost $180 per square foot
Photograph Richard Barnes Photography

About the Author

No recommended contents to display.

Upcoming Events

  • Build-to-Rent Conference

    JW Marriott Phoenix Desert Ridge

    Register Now
  • Reimagining Sense of Place: Materiality, Spatial Form, and Connections to Nature

    Webinar

    Register for Free
  • Homes that Last: How Architects Are Designing a Resilient Future

    Webinar

    Register Now
All Events