The Proposed Future of Mies van der Rohe’s Only Library

This month, Dutch architecture firm Mecanoo and D.C.'s Martinez+Johnson Architecture will present their proposed changes to Washington, D.C.'s central library.

5 MIN READ
A Mecanoo rendering for MLK

Courtesy of Mecanoo, Martinez+Johnson Architecture, and the DC Public Library

A Mecanoo rendering for MLK

July will be a critical month in the fate of Mies van der Rohe’s only library. Last Friday, the District of Columbia’s library system submitted a concept design to the city’s Historic Preservation Review Board (HPRB), one of several government agencies expected to review the project later this month.

The Martin Luther King Jr. Memorial Library has been the system’s central library since it opened in 1972. It’s the only example of Ludwig Mies van der Rohe’s work in the city, and it is listed on the National Register of Historic Places as well as the DC Inventory of Historic Sites. This month, the project is scheduled to be presented to the HPRB on July 23, and the U.S. Commission of Fine Arts on July 16. The architects gave an “informational presentation” to the HPRB in January.

DC Public Library (DCPL) provided ARCHITECT with the concept design presentation submitted to HPRB, as well as a few new images shown at a recent public presentation at the National Building Museum. The design has changed dramatically since the renovation architecture team, Dutch firm Mecanoo and local firm Martinez+Johnson Architecture, were selected in February of last year. (To see how the design has evolved, check out the older renderings in ARCHITECT’s Project Gallery.) “In terms of the historic elements of the building, I’m hoping [this design is] pretty close to final, but that really does depend on the feedback that we get from the regulatory agencies,” says DCPL’s executive director Richard Reyes-Gavilan.

An earlier design for a three-floor addition is gone, and the latest design shows only a single additional floor above the building’s existing four above-ground levels. The shape of the rooftop addition has also transformed to a kind of trapezoid with rounded edges. (These rounded edges are also used in the proposed staircase, perhaps as a contrast to all the right angles in Mies’ structure.) Also gone is the “little rectangular hat,” as Reyes-Gavilan described it to ARCHITECT in April.

The building’s ground floor currently includes the Great Hall, the Popular Library, and a Digital Commons space designed by the Freelon Group (now part of Perkins+Will). The concept design proposes inserting movable partitions into the Great Hall’s north wall to give access to a 200-capacity performance space beyond. What these dividers may ultimately look like is still being discussed. “The thing that we’re trying to work through is, so if I’m a performer in that space, I’m facing G Place, but my back is to the Great Hall, and does that provide the optics that we want,” Reyes-Gavilan says. “So we’re still sort of thinking about what orients that space. And is it best done with glass? Or is it best done with sort of a continuation of the bricks?”

The reimagined Great Hall, looking into the performance space

Courtesy of Mecanoo, Martinez+Johnson Architecture, and the DC Public Library

The reimagined Great Hall, looking into the performance space

Courtesy of Mecanoo, Martinez+Johnson Architecture, and the DC Public Library

Courtesy of Mecanoo, Martinez+Johnson Architecture, and the DC Public Library

Courtesy of Mecanoo, Martinez+Johnson Architecture, and the DC Public Library

Rendering of north side of building along G Place, with a view into the proposed ground-floor performance space. Part of the HPRB presentation.

Courtesy of Mecanoo, Martinez+Johnson Architecture, and the DC Public Library

Rendering of north side of building along G Place, with a view into the proposed ground-floor performance space. Part of the HPRB presentation.

The design of the building’s main stairwells is one of the most distinctive changes to the building. The concept design proposes changing the current brick-walled stairwells into glass-enclosed, rounded-rectangular shaped open staircases. “In an earlier version, there was a wall or a screen where there was an old map of D.C.,” Reyes-Gavilan says. “In this updated version, we’re creating more of an opportunity for people outside to look down at the activities taking place on the lower level, so you’ll see in that rendering there is a guy standing, looking down, and that was the idea there—to create more of a flow between the downstairs and upstairs.”

The heavy doses of red and blue seen in the renderings have also not been finalized. “We have not had the first conversation about color anywhere,” Reyes-Gavilan says. While the historical map is gone from the latest staircase renderings, it could show up again or elsewhere. Mecanoo has incorporated maps in other projects, including the Bruce C. Bolling Municipal Building in Boston and the Municipal Offices and Train Station in Delft, the Netherlands.

Courtesy of Mecanoo, Martinez+Johnson Architecture, and the DC Public Library

Courtesy of Mecanoo, Martinez+Johnson Architecture, and the DC Public Library

Courtesy of Mecanoo, Martinez+Johnson Architecture, and the DC Public Library

Courtesy of Mecanoo, Martinez+Johnson Architecture, and the DC Public Library

Courtesy of Mecanoo, Martinez+Johnson Architecture, and the DC Public Library

The proposed Popular Library space to the east of the Great Hall includes a café, with a new patio along G Place and 9th Street where a driveway and brick wall stands today. The submission to the HPRB includes one patio proposal that is open to 9th Street, and another rendering that includes a brick wall.

Courtesy of Mecanoo, Martinez+Johnson Architecture, and the DC Public Library

Courtesy of Mecanoo, Martinez+Johnson Architecture, and the DC Public Library

Courtesy of Mecanoo, Martinez+Johnson Architecture, and the DC Public Library

Programming is still being discussed, according to Reyes-Gavilan. “While I’m hoping that the physical elements that we are presenting are approvable, and we’re set with those, some of the elements of the proposed document—for example, how big the children’s room is, where is the Popular Library with respect to the cafe, those sorts of things—I think there’s probably still more thinking that we’re doing around the adjacencies,” he says.

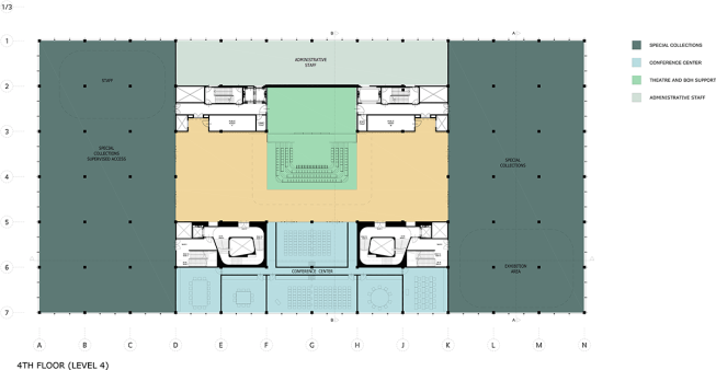
As the floor-plans stand now, the below-grade level includes the Creation Lab, archival storage, a computer area, and a creative audio-visual room. Spaces for kids and teens are on the second floor, along with the center for accessibility, adult literacy, computer learning, and to-be-determined spaces for community groups. The third floor houses the adult collection and co-working spaces. On the fourth floor, the current design calls for space for special collections as well as a conference center.

The design for the building’s large theater spanning the fourth and fifth floors has changed since the renderings from April and May, from two opposing retractable tiers of seats to a static U-shaped auditorium. “In the previous setting, you could only face half the audience, unless you are doing a TED talk where you are walking around in circles and it is very active, but the truth is so many of our programs are panel discussions, for example,” Reyes-Gavilan says. “In that preliminary rendering, as much as I like the design quite a bit, there was really nowhere to put a panel where you are facing the audience. So the new version is just an attempt to rectify that by creating more of a traditional auditorium type space where everyone is oriented to a single focus.”

Courtesy of Mecanoo, Martinez+Johnson Architecture, and the DC Public Library

The fifth-floor addition will provide the main access point to the 350-person theater, according to Reyes-Gavilan, as well as a catering kitchen and a flexible event space. The rooftop cafe seen in earlier renderings is no more, but the updated design includes both public and non-public gardens.

Courtesy of Mecanoo, Martinez+Johnson Architecture, and the DC Public Library

As Reyes-Gavilan explained, these floor-plans are not necessarily the final drawings. But here’s what DCPL and the architecture team submitted to the HPRB for review.

Courtesy of Mecanoo, Martinez+Johnson Architecture, and the DC Public Library

Courtesy of Mecanoo, Martinez+Johnson Architecture, and the DC Public Library

Courtesy of Mecanoo, Martinez+Johnson Architecture, and the DC Public Library

Courtesy of Mecanoo, Martinez+Johnson Architecture, and the DC Public Library

Courtesy of Mecanoo, Martinez+Johnson Architecture, and the DC Public Library

Courtesy of Mecanoo, Martinez+Johnson Architecture, and the DC Public Library

Courtesy of Mecanoo, Martinez+Johnson Architecture, and the DC Public Library

Courtesy of Mecanoo, Martinez+Johnson Architecture, and the DC Public Library

About the Author

Sara Johnson

Sara Johnson is the former associate editor, design news at ARCHITECT. Previously, she was a fellow at CityLab. Her work has also appeared in San Francisco, San Francisco Brides, California Brides, DCist, Patchwork Nation, and The Christian Science Monitor.

No recommended contents to display.

Upcoming Events

  • Build-to-Rent Conference

    JW Marriott Phoenix Desert Ridge

    Register Now
  • Reimagining Sense of Place: Materiality, Spatial Form, and Connections to Nature

    Webinar

    Register for Free
  • Homes that Last: How Architects Are Designing a Resilient Future

    Webinar

    Register Now
All Events