New Buildings by Foster + Partners, REX/OMA at Dallas’ AT&T Performing Arts Center

Dallas seeks to create a vibrant urban neighborhood out of a slew of starchitect buildings.

7 MIN READ
Cathy Lang Ho is an independent writer and editor based in New York. She is the founding editor of The Architect’s Newspaper and last year was the recipient of the Rome Prize in Design. She is a former editor at Architecture and Design Book Review and has contributed to many design publications, including most recently Arquitectura Viva and Blueprint.

Stefan Jonot

Cathy Lang Ho is an independent writer and editor based in New York. She is the founding editor of The Architect’s Newspaper and last year was the recipient of the Rome Prize in Design. She is a former editor at Architecture and Design Book Review and has contributed to many design publications, including most recently Arquitectura Viva and Blueprint.

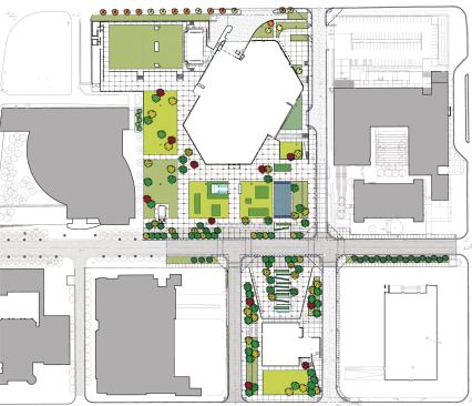
Dallas is not the first city to pin its hopes for a shot of urban adrenaline on dazzling new cultural buildings, but it’s among the more ambitious. The Margot and Bill Winspear Opera House by Foster + Partners, the Dee and Charles Wyly Theatre by REX/OMA, and the Elaine D. and Charles A. Sammons Park by landscape architect Michel Desvigne are the latest additions to the downtown arts district, a 68-acre area that already includes structures designed by Edward Larrabee Barnes, I. M. Pei, Renzo Piano, and Brad Cloepfil.

The newly completed projects—along with an outdoor amphitheater by Foster and another theater by Skidmore, Owings & Merrill, slated for completion in 2010 and 2011, respectively—constitute the AT&T Performing Arts Center, the largest and most costly performing arts complex built in the United States since Lincoln Center, which, of course, grandfathered the trend of arts districts doubling as urban development tools. Thirty years in the making, the Dallas Arts District (of which the AT&T complex is one part) is more coherent as a concept or administrative entity than as an urban plan or spatial experience. Realized piecemeal and spread out far too loosely over too many (19) blocks, the buildings until now have been stand-alone works, each with a rather suburban relationship to its own site, with little common space and an overall urban design that lacks the forcefulness needed to overcome the scatter of the district’s many pieces.

Lincoln Center’s fortresslike compound also was anti-urban in many respects, with its high plinth and homogeneous travertine wrapper that cut the complex off from the street—creating an island of calm that is removed from its frenetic surroundings. The architecture of the Dallas Arts District, by contrast, seems intent on offering variegated high points in a banal landscape of endless parking lots, nondescript office and hotel towers, unsightly roadways, and deserted sidewalks.

Continuing in this vein, the bold Foster and REX/OMA projects are sure to quicken the area’s pulse (even as they lessen the impact of some of their old neighbors). The larger of the two, Foster’s Winspear Opera House, is a grand dame of a building, replete with an exaggerated chapeau. Its most noticeable feature is a towering red drum, an oval core that houses the 2,200-seat theater.

In a rare use of color by a firm famous for its transparent glass and metal façades, the architects invert a traditional theater aesthetic—red plush interiors—and turn the building into a lustrous beacon. The surface of the drum has a glossy depth achieved by sandwiching a translucent red inner pane between layers of safety glass. For contrast, the theater’s interior, which follows a classic horseshoe layout inspired by great 19th century theaters such as the Opéra Garnier in Paris, adheres to a pale palette of browns and beiges, plus shimmery white gold leaf applied to the balcony fronts. The red drum is encased in a majestic hexagonal glazed box, turning the 60-foot-high lobby into a terrarium. The view of people circulating across its multiple tiers and crisscrossing staircases—a more sprawling take on the traditional opera house’s grand staircase—is classic Foster, who introduced his concept of the egalitarian “urban room” in so many projects before.

The urban room spills out far beyond the building’s perimeter, thanks to a monumental sun-shading canopy that extends to the lot line. A master of the dramatic, overarching shell/shed/bubble/canopy, Foster explored more than 40 possibilities before arriving at the design of panels of 4-by-28-foot louvers, arranged at fixed angles and varying densities to prevent direct sunlight from falling on the façade while providing shade to the open space below. It’s this space, part of the 10-acre Sammons Park, that will likely give the arts district the focal point or sense of a center that it sorely misses.

While the Winspear is a contemporary interpretation of the great opera houses of the past, the Wyly offers a forward-looking vision of the theaters of the present. It literally turns theater design on its head, stacking functions that previously had been spread out, putting the lobby in the basement, the theater in the lobby—generally rearranging everything and allowing everything to be rearranged. But it’s not radical for the sake of being radical: The theater’s history of experimental productions and its previous home, a makeshift industrial shed that gave its artistic directors the freedom to reconfigure or abuse the space as needed, were the Wyly’s point of departure. Joshua Prince-Ramus, partner in charge of OMA’s New York office until he departed in 2006 to launch REX (the commission predates the split, explaining the joint credit), was insistent that the new building support the same artistic freedom, generating the idea for what he calls a “theater machine,” a flexible performance hall that can, at the push of a button, transform from a flat floor to proscenium to thrust stage.

Recreating the warehouse feel of the old theater, the entire ground floor is given over to the performance chamber; traditional front- and back-of-house functions, along with mechanical and electrical systems and support spaces, are distributed above and below, driving the building’s verticality. The theater floor is a checkerboard of panels undergirded such that they may be lifted, raked, or rotated, while additional tiers of balcony seating drop out of the fly space as needed. It’s striking to see a stage at street level, exposed on all sides, undaunted by the possibility of the outside world disrupting the fantasy of a performance unfolding. This sort of storefront approach could work toward making theater more accessible while enlivening the street. Above all, however, the building’s innovations surely will entice adventuresome artistic directors to take up residency, while providing a welcome added revenue stream as a grand rentable event space.

Materially, the building is rough and ready, with poured concrete walls, stainless steel paneling, and inexpensive recycled-plastic polyboard for the theater’s floor, in anticipation of hard wear and quick replacement. And of course there’s the façade, a rain screen of aluminum tubes, ranging in size from 1.5 to 5 inches in diameter, which give the otherwise basic box a surprising dimensionality. The inexpensive tubes (which cost the same per square foot as flat aluminum siding) have the added benefit of deflecting the region’s famed golf-ball-sized hail. It’s this inventiveness with industrial materials that gives the building so much personality: The tubes are crimped where there are window openings, which lends them a drippy, liquid look; cheap fluorescent lights hung vertically give the lobby a space-age feel; a chain-link fabric blanketing the magnetized walls in one stairwell invites patrons to leave their imprint. As the last holdover project that credits OMA and REX—and perhaps the first developed fully under the latter’s direction—the Wyly proves that Prince-Ramus is a formidable talent.

Michel Desvigne had the difficult task of designing a landscape that would knit two very different pieces of architecture together. Those expecting a European-style park from the celebrated Paris-based landscape architect will be disappointed, for the design is austere in form and detail. With patches of lawn interspersed among swaths of concrete, dotted by rows of young oaks and occasional raised planted beds, the park is an intellectual riff on the prosaic plinth that characterizes the surrounding blocks. A variety of “micro-gardens” are allotted across a strong ground, gridded to mirror the Foster canopy that shelters most of the park. Though the plantings are still young and do not fully reflect the design, the rigor of Desvigne’s thinking is apparent.

Today, there are roughly 90 arts districts in cities across the United States, but they cannot succeed based on the consumption of art and culture alone. They need greater connectivity among their elements, as well as accessibility, density, and most importantly, diversity of uses. In Dallas, there are a few developments on the horizon that might help: The Winspear’s café is intended to be open during the day, and the design features three operable, 23-foot-high window walls that will allow the café to spill into the park. The adjoining Woodall Rodgers Freeway is being transformed into a park that will link the arts district to uptown. And nearby, the newly completed One Arts Plaza mixes residential with office, plus ground-floor retail and dining. The area has a long way to go, but at least the AT&T Center has given it more of a sense of place.

About the Author

No recommended contents to display.

Upcoming Events

  • Design Smarter: Leveraging GIS, BIM, and Open Data for Better Site Selection & Collaboration

    Live Webinar

    Register for Free
  • Slate Reimagined: The Surprising Advantages of Slate Rainscreen Cladding

    Webinar

    Register Now
  • The State of Residential Design Today: Innovations and Insights from RADA-Winning Architects

    Webinar

    Register for Free
All Events