Matt Wargo
Richard and Kimberly Miller renovated a former Philadelphia stab…
Matt Wargo
Richard and Kimberly Miller renovated a former Philadelphia stab…

A Dutch couple transforms a church into their own residence.

An apartment conversion in Australia breathes new life into a former theater and roller rink.

An architect couple transforms an old stable into a home for themselves.
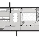
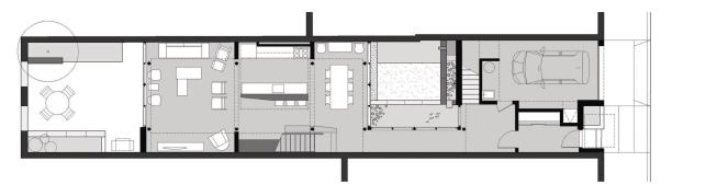
The century-old former stable in Philadelphia’s Fishtown neighborhood wasn’t much to look at. Its roof buckled, the concrete floor slab was shot, and the existing brick walls needed extensive repairs. But an enterprising architect couple, hoping to design their own house, saw its potential. “We’d been looking at properties all around the city,” says Richard A. Miller, AIA, who runs RKM Architects with his wife, Kimberly I. Miller, AIA. “This one enabled more freedom.”
At 20 feet, the lot was 5 feet wider than most of the other sites on the rowhouse-lined street. The couple wanted enough room for a studio where Richard could work full-time. (Kimberly also serves as the director of planning and design at Drexel University, so she’s less involved in RKM’s day-to-day operations.) And an in-law suite was important to them. “We wanted a bit of overflow space, because our parents are both getting older,” Richard says.
The existing building’s raw materials also attracted the Millers. Many of the yellow pine roof beams were still in good shape. A woodworker friend helped salvage and refinish them, with impressive results. “When the wood went away in the truck, it looked terrible,” Richard says. “When our friend planed it down, I was blown away. You can smell the sap in it.” The best beams went to interior elements that showcase the wood’s tight grain pattern, such as furniture and a finely detailed staircase. The rougher pieces, stained for a more uniform appearance, form an exterior rainscreen. And the couple opted to keep the stable’s three original brick walls, with plenty of repointing and (in some places) steel reinforcement.
The back wall defines a southwest-facing outdoor room that the Millers call the “sun garden.” In the middle of the house lies its counterpart, the 15-foot-square “shade garden,” which serves as a key passive cooling component. The landscaped shade garden contains a small lily pond and light-colored gravel, and receives excellent cross-ventilation. “The idea is to create a microclimate there, based on Mediterranean and Middle Eastern atrium houses,” Richard says. “We open up the doors and windows on the third floor and in the shade garden for a chimney effect.” This time-honored strategy reduces the need for air conditioning. The shade garden also funnels natural light deep into the interiors—a Holy Grail of sorts for an urban residence.
While the Millers preferred a modern house, they didn’t want it to look jarring next to their late 19th-century neighbors. The vertical lines of the reclaimed wood and Kalwall façade emphasize the 3,400-square-foot building’s conforming height, playing down its irregular width. “The main thing that we were trying very hard to do was good design on a relatively tight budget,” Miller says, noting that the project came in at $141 per square foot. “We tried to be respectful to the historic fabric. In a lot of ways, we tried to do as little as possible.”
Construction cost $141 per square foot
No recommended contents to display.