kitchen: dining out

2 MIN READ

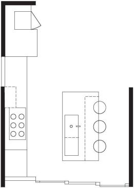
To get both an open interior and a full garage on a 30-foot-by-80-foot lot, architects Barbara Callas and Steven Shortridge, AIA, gave 543 House, as it’s called, a section that rises in a staggered series of split levels. “The house sort of steps up over the garage, so you don’t feel its impact,” Shortridge says. Including a roof deck, “there are actually seven levels in the house.” The kitchen, which floats midway between the garage and living room levels, stretches beyond the house proper to include a patio that more than doubles its floor area. An acid-washed concrete floor unites the two spaces, with radiant heating that maintains a constant slab temperature indoors and out.

Underplaying the kitchen’s functional side, the built-in stainless refrigerator, range, and vent hood hide in plain sight, blending into a bank of stainless steel base and wall cabinets. “To avoid having too much stainless, we added teak cabinets all the way to the ceiling,” Shortridge points out. A counter and backsplash of white Corian tie the composition to a custom-fabricated island, whose form in turn echoes the nested “L” shapes of the wall assembly. Because a neighboring house stands only six feet away, the countertop window is glazed with etched glass.

A floor-to-ceiling teak pantry with an elegant TV niche hides a generous amount of storage within a sculpturally monolithic box. It further reduces the risk of clutter by providing a home for the coffee maker and other gadgets. “Appliances that you don’t use as much are behind a door,” Shortridge explains. “Because it’s so close to the living space, we didn’t want to hit you over the head and say, ‘This is the kitchen.’”

project: 543 House, Venice, Calif.
architect: Callas Shortridge Architects, Culver City, Calif.
general contractor: Herman Construction Co., Westlake Village, Calif.
resources: bathroom and kitchen fittings: Dornbracht Americas; bathroom fixtures: Duravit USA; countertops: DuPont (Corian); oven: Miele; patio doors: Fleetwood Windows & Doors; refrigerator: Sub-Zero

About the Author

Bruce D. Snider

Bruce Snider is a former senior contributing editor of  Residential Architect, a frequent contributor to Remodeling. 

No recommended contents to display.

Upcoming Events

  • Slate Reimagined: The Surprising Advantages of Slate Rainscreen Cladding

    Webinar

    Register Now
  • The State of Residential Design Today: Innovations and Insights from RADA-Winning Architects

    Webinar

    Register for Free
  • Specifying Smarter with Copper-Clad Aluminum (CCA) Metal-Clad Cable

    Webinar

    Register for Free
All Events