The judges appreciated how well the Concord Green Home melded wi…
The judges appreciated how well the Concord Green Home melded with the traditional New England vernacular of the neighborhood. The panelized structure allowed for quick assembly and less exposure of building materials to the elements. Icynene open-cell spray-foam insulation reaches R-51 in the roof; the walls features 2 inches of Owens Corning foam board plus spray foam to achieve R-26.
Eric Roth
Skylights flood the kitchen with light. The team reclaimed the S…
Skylights flood the kitchen with light. The team reclaimed the Sub-Zero refrigerator and Miele dishwasher from the previous home and added a Bertrazzoni dual-fuel range and Electrolux Energy Star-rated washer. Portions of the cabinetry also were saved, supplemented by matching custom units by local craftsmen. The island is outfitted with a J. Aaron concete countertop; Longleaf Lumber’s reclaimed antique quartersawn heart pine was used for the rest of the countertops.
Eric Roth
Locally sourced bluestone graces the front entryway.
Eric Roth
Open and laden with windows, the three-story stairwell brings in…
Open and laden with windows, the three-story stairwell brings in light, captures cool northern breezes, and exhausts heat. The windows on the left funnel light into a small interior bathroom.
Eric Roth
The master bath seamlessly blends traditional elements—such as…
The master bath seamlessly blends traditional elements—such as the antique pine work table top with reclaimed base and Rohl Country Bath faucets—with a decidedly modern, all-glass shower and a Toto Aquia dual-flush toilet.
Eric Roth
To accommodate a wheelchair in this small first-floor bathroom, …
To accommodate a wheelchair in this small first-floor bathroom, the designers took a "wet room" approach, turning the whole room into a shower. The transom windows bring in outside light through the wrap-around stairwell. The countertop is made with a piece of remnant marble.
Eric Roth
Heating is provided by Weil-McLain’s hot-water radiant heat on…
Heating is provided by Weil-McLain’s hot-water radiant heat on the first floor and Myson hot-water radiators on the second floor. Thanks to ceiling fans and optimal cross-ventilation, the house does not require air conditioning, although it is designed to accept ductless mini-splits later, if desired.
Eric Roth
Longleaf Lumber provided reclaimed quartersawn antique heart pin…
Longleaf Lumber provided reclaimed quartersawn antique heart pine for the flooring. No-VOC Mythic paint adorns the walls.
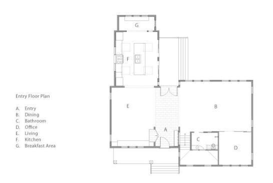
First-floor plan
Second-floor plan
The jury was immediately drawn to the Concord Green Home’s traditional New England farmhouse look, with a scale and style that blend cohesively with neighboring houses while still feeling refreshed and updated. The simple, clean design continues inside, where white and neutral tones mingle with wood finishes and ample daylighting to maintain a modern and airy feel.
Design and product choices were vital in addressing the allergy-plagued homeowner’s chief need: optimal indoor air quality. To balance the tight shell (including spray-foam insulation to R-51 in the roof and R-23 in the walls), the team installed an energy recovery ventilator and a whole-house HEPA filtration system, as well as low- and no-VOC finishes, radiant heating, and reclaimed and formaldehyde-free cabinets. An open floor plan, thoughtful window placement, and a three-story open stairwell promote natural ventilation (and eliminated the need for air conditioning), while the large south-facing windows bring in daylight and winter heat but are shaded in summer by maple trees.
The panelized structure’s L shape and modest footprint make efficient use of the small lot, which is adjacent to the town park.
Project Details
Concord Green Home | Size: 2,700 square feet | Cost: Withheld | Completed: February 2010 | Certification: Energy Star | HERS Rating: 50 | Architect: ZeroEnergy Design, Boston | Builder: AEDI Construction, Waltham, Mass. | Interior Designer: Kauffman Tharp Design, Concord, Mass.
PRODUCTS
Windows: Green Mountain Window / Doors: Simpson, Pella / Siding: James Hardie / Roofing: Iron Horse / Insulation: Icynene, Owens Corning / Appliances: Sub-Zero, Miele, Bertazzoni, Electrolux / Panelization: Connor Homes / Countertops: J. Aaron, Longleaf Lumber / Kitchen Faucets: Perrin & Rowe / Bath Faucets & Showerheads: Rohl / Toilets: Toto, Kohler, Duravit / Flooring: Longleaf Lumber / Paints & Stains: Mythic, Ecos / Interior Lighting: Barn Light Electric / Exterior Lighting: Scofield Historic Lighting / HVAC: Weil-McLain, Myson / Water Heating: Buderus / IAQ: Pure Air Systems, UltimateAir