Concrete Home Built on Hawaiian Lava Flow

Inspiration for the home comes from the island's rugged landscape and vibrant flora.

2 MIN READ

Craig Steely

Built atop hardened lava from the previously active Kilauea volcano, this concrete house perfectly mimics the existing landscape of Hawaii’s Big Island. The home sits on five acres of Ohia forest, a gnarled gray tree that produces red lehua flowers, and is located on the harsh, damp, and windward eastern portion of the Island.

Designed by California–based Craig Steely Architecture, the home is the architect’s first using site-poured concrete. One of Steely’s first inspirations to work with concrete came from an Ohia tree that was growing through the rock. From there, Steely decided to build a structure that would blend into the environment of lava and trees, with occasional splashes of color.

Craig Steely

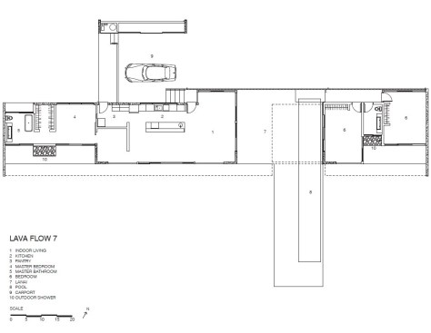
The 3,100-square-foot building is largely dominated by a 140-foot-long concrete beam running the length of the home. Only three short concrete walls support it. By building in such an arrangement, Steely was able to place sizable spans of uninterrupted glass, giving a sensation of living in the surrounding forest. The resulting open floor plan also allowed the architect to maximize the views of the Pacific Ocean.

Craig Steely


The two-bedroom, two-bath house features warm wood ceilings, an elongated lap pool, and 1,000 square feet of verandas​. Huge glass doors leading to the outdoor verandas ​easily transform the home into an ideal entertaining space. One of the homeowners has an background in landscape architecture, so they were able to tame the landscape by adding a native garden and small coffee grove.

Craig Steely

The slender shape of the house allows for passive cooling through cross ventilation, eliminating all mechanical air conditioning. Other sustainable features include a rainwater collecting system, which supplies the homeowners with all water, and a solar heating system to heat it.

The concrete home is one of seven that Steely built in the area. Dubbed the Lava Flow Houses, each home features few materials, sparse construction, and layouts that create a smooth transition from the house to the outdoors. The architect began construction of the first Lava Flow house in 2000.

About the Author

Angie Cook

Angie Cook is a digital content intern at ARCHITECT Magazine. She is currently pursuing a Bachelor's degree in Communication Studies at American University.

No recommended contents to display.

Upcoming Events

  • Design Smarter: Leveraging GIS, BIM, and Open Data for Better Site Selection & Collaboration

    Live Webinar

    Register for Free
  • Slate Reimagined: The Surprising Advantages of Slate Rainscreen Cladding

    Webinar

    Register Now
  • The State of Residential Design Today: Innovations and Insights from RADA-Winning Architects

    Webinar

    Register for Free
All Events