Traverwood Branch Library

Ann Arbor, Mich. / Inform Studio

4 MIN READ

By the time planning began four years ago for the new Traverwood Branch Library in Ann Arbor, Mich., it was tragic but not surprising for the architects at Inform Studio, of nearby Northville, to find dozens of dead ash trees on the proposed building site. Since 2002, some 30 million ash trees in southeastern Michigan have fallen prey to the emerald ash borer, a beetle thought to have boarded a ship or plane from Asia to the Midwest that has since spread to at least 14 states. Its larvae kill trees by eating their inner bark.

Early in a design process focused on sustainability, the library’s architects at Inform realized the dead trees’ wood could become part of the library itself. It worked: The ash trees were used to make interior flooring, wall panels, ceilings and, conspicuously, a row of expressive columns along a bank of windows facing south into a nature preserve, their naked, sealed surfaces visibly scarred in rune-like patterns by chewing borers. “A happy accident”—and a guiding one, says Cory Lavigne, the firm’s design director.

Under the direction of artisan woodworker John Yarema, based nearby in Troy, Mich., the team employed draft horses to help move the ash logs, which were cut by hand, and began a yearlong process of air-drying the wood in Yarema’s shop. Such an intensely local material would add to the design’s ecology-minded strategies.

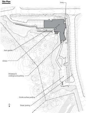
Those strategies start with an L-shaped footprint for the 16,776-square-foot building, pushed to the street edges of the four-acre site to avoid intruding on the surrounding woods. Parking beneath the building, plus the city’s permission to have 29 cars park on the street, reduced the city’s parking requirement to only 26 paved spots on the site. Cost-cutting sacrificed a green roof, but a rain garden, planted with sedges, slows down and helps filter stormwater runoff that percolates into a nearby retention pond.

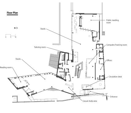
Inside the library, narrow floor plates allow the sun to light the warm, ash-lined reading areas. The massing also promotes passive ventilation through operable windows activated by low-voltage actuators, which tie back to the mechanical systems. Window blinds on south- and west-facing façades are controlled by daylight sensors to cut unwanted glare.

The Traverwood library is the third new branch built by the Ann Arbor District Library under its current director, Josie Parker, who wanted a sustainable building design but didn’t initially expect, before the ash-tree epiphany, how poignant the results would be. People, not least children, may see the logs and ask what damaged them. The answer points back to a constant consumer demand for cheap imported goods in a global economy, which has hurt places like Michigan well before the emerald ash borer arrived.

The architects at Inform followed the U.S. Green Building Council’s playbook closely but didn’t apply for LEED status because, quite simply, the money on certification could be used in the building itself. “In our community, it isn’t necessary to pursue LEED to have a project validated and supported,” Parker says. “What’s important in Ann Arbor is that we do the right thing by our community.”


Project Credits

Project Traverwood Branch Library, Ann Arbor, Mich.
Client Ann Arbor District Library
Architect Inform Studio, Northville, Mich.—Kenneth Van Tine (technical design principal); Gina Van Tine (marketing, managing principal); Michael Guthrie (design principal); Cory Lavigne (design director, project architect); Andrew Mannion, Lindsay Cooper, Amy Baker, Jason Roberts, Elizabeth Huck, Melissa Alexander (project team)
Associate Architect VPS Architecture
Mechanical/Electrical Durkin & Villalta Partners
Landscape Grissim Metz Andriese Associates
Structural Robert Darvas Associates
Construction Manager O’Neal Construction
Ash Wood Contractor Yarema Creative Hardwood Flooring
Size 16,776 square feet


Toolbox

24-Volt Motorized Window Actuator System
Clear Line

clearlineinc.com

When the outside temperature and humidity are right, this actuator system opens the library’s operable windows to allow passive ventilation and cooling. Each window has its own actuator, which ties into the building’s thermostat. The actuators require a plus or minus 10-degree differential from the desired temperature to open or close windows.OpenLight Roller Shades
Creative Windows

creativewindows.hdwfg.com/sb.cn

The library’s south- and west-facing glazed façades have automatic shades that descend or rise to one of four positions—fully up, 30 percent down, 60 percent down, and fully down— when light reaches specified levels. OpenLight LTSEN-INT-V2 sun sensors, mounted on mullions, trigger the shades’ response. The sensors can be programmed to delay the response by 10 to 60 minutes, so that passing clouds or driveway lights don’t trigger the system needlessly.Stormwater Management Chambers
StormTech

stormtech.com

Even after minimizing the library’s surface parking, Inform needed to anticipate excess stormwater and keep this potentially polluted runoff from quickly overwhelming a nearby retention pond. Three StormTech collection chambers lie underground below a rain garden, where water initially collects. The chambers help filter water and release it gradually into the retention pond.Galvalume Custom Panels
Advanced Architectural Products

panels.com

These exterior panels were fabricated for the Traverwood library by Advanced Architectural Products of Allegan, Mich., as a custom concealed-fastener system with Galvalume (an aluminum-zinc alloy) and a 1-inch foam insert. Panels of varying widths (8, 12, and 14 inches) secure to adjacent panels and into the building’s exterior-grade plywood sheathing.

About the Author

No recommended contents to display.

Upcoming Events

  • Design Smarter: Leveraging GIS, BIM, and Open Data for Better Site Selection & Collaboration

    Live Webinar

    Register for Free
  • Slate Reimagined: The Surprising Advantages of Slate Rainscreen Cladding

    Webinar

    Register Now
  • The State of Residential Design Today: Innovations and Insights from RADA-Winning Architects

    Webinar

    Register for Free
All Events