Tiny Lounge

Chicago / Brininstool+Lynch

3 MIN READ
The new Tiny Lounge packs a lot into a 2,000-square-foot package. Several distinct table-seating areas (high-top tables, banquet seating, and booths) maintain an intimate feeling, while floor-to-ceiling glass doors capture as much daylight as possible for the after-work crowd.

Christopher Barrett

The new Tiny Lounge packs a lot into a 2,000-square-foot package. Several distinct table-seating areas (high-top tables, banquet seating, and booths) maintain an intimate feeling, while floor-to-ceiling glass doors capture as much daylight as possible for the after-work crowd.

Looking at the short list of wines at the Tiny Lounge brings an admonition from designer Brad Lynch. “This is a place for well-crafted drinks,” he says—and while that thoughtful mixology might not have been the precise inspiration for his design of the bar’s interior, it is instructive. Chicago’s original Tiny Lounge was aptly named—at 1,200 square feet, it was nestled beside the Elevated train structure on the city’s North Side and had the Rat Pack feel that the word “lounge” can still evoke.

When a remodeling of the adjacent El station required Tiny to move, Lynch, a partner at local firm Brininstool+Lynch, tried to rally support for a new structure that would capture unused space beneath the train tracks. That proposal failed—after being mired in bureaucracy—and three years later and a mile away, the bar reopened in a phoenixlike revival.

The reimagined lounge’s thoughtful details reflect the long gestation period. Lynch is a self-acknowledged aficionado of the traditional cocktail lounge—a type that hasn’t been well-represented in Chicago, where the simple neighborhood bar is king. The designer was a regular at the old Tiny Lounge because its owners had crafted a space where a successful professional, more than a decade removed from college, could comfortably have a cocktail without feeling out of place. “It’s acceptable for a social or a business meeting,” he says. “You can meet people after work at a lounge because it seems more legitimate.”

When developing his initial designs, Lynch, Tiny’s owner, and her business partner spent three days in New York City, working their way through a list of 45 clubs, lounges, and hotel and restaurant bars. The threesome was looking for clues to provide a space to suit the two different crowds they wanted to attract during the course of a night. First was the early evening professional crowd—like Lynch—which tends to be more subdued. “As the evening goes on,” he says, “the crowd gets a little younger and the music is a little louder.” A small operation like Tiny needed to provide spaces and ambiance that could attract both crowds and allow them to coexist during the transitional period late in the evening.

Controlling sound became a prime consideration in developing the details that give Tiny its particular ambiance. Lynch typically favors a spare, modern aesthetic that generates warmth through thoughtful material selections. Wood is a particular favorite, and the need for sound diffusion throughout the space led him to develop a randomly stacked pattern of light Baltic birch plywood with exposed edges. Cherry panels provide contrast and help to define the space. Tiny’s front façade is glazed to capture as much daylight as possible during the early hours of the evening, when the more sedate professionals form the clientele.

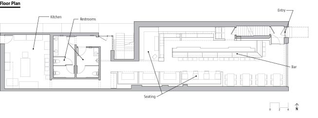
At 2,000 square feet, the space isn’t as small as its predecessor, but the long, narrow interior is still intimate enough to carry the moniker well. The bar proper dominates the north wall, where it helps camouflage an entry vestibule and a stairway to basement storage, and helps to keep the organization of the space as simple as possible. Small table seating is divided into three discrete areas. Barstool-height tables are located in front, near the entrance and storefront. Further back, Lynch creates more intimate choices with two seating areas enclosed within a wood cocoon—four two-top tables in one area and three renovated booths from the old Tiny Lounge towards the rear of the space.Minimalism is essential to Brad Lynch’s conception of architecture—whatever the function. Tiny’s aesthetic is true to that inclination, but there’s an additive element drawn from the narrative that produced each piece of the lounge’s architecture. “They hand-stuff their own blue cheese olives,” he says—an attention to detail that the cocktail-lounge enthusiast embraces in his drinks, and in his own designs.

About the Author

Edward Keegan

ARCHITECT contributing editor Edward Keegan, AIA, is a Chicago architect who practices, writes, broadcasts, and teaches on architectural subjects.

No recommended contents to display.

Upcoming Events

  • Design Smarter: Leveraging GIS, BIM, and Open Data for Better Site Selection & Collaboration

    Live Webinar

    Register for Free
  • Slate Reimagined: The Surprising Advantages of Slate Rainscreen Cladding

    Webinar

    Register Now
  • The State of Residential Design Today: Innovations and Insights from RADA-Winning Architects

    Webinar

    Register for Free
All Events