The Wit

Chicago / Koo and Associates

4 MIN READ

Despite a century of rectilinear traditions in Chicago architecture—with Frank Lloyd Wright’s Prairie Style houses and the modernist moves of Mies van der Rohe and Skidmore, Owings & Merrill—curves have been de rigueur in the recent projects making a splash in town. Think of Frank Gehry’s Pritzker Pavilion and Studio Gang’s Aqua Tower. But local architect Jackie Koo (and her eponymous firm, Koo and Associates) has taken a stand against this curvaceous trend with the recently opened Wit hotel, proving that once again, straight lines are in.

Located in the central Loop, the Wit is fronted by a slashing chartreuse zigzag (dubbed “the lightning bolt” by the hotel’s marketers) across the 27-story glass façade, a bold move made more surprising by those looking closely at the fine print—the 298-guest-room Wit is part of the usually humdrum Doubletree Hotel chain, hardly known as a boutique hotelier. “Boutique hotels are location-centric,” says Koo, who credits the coveted site in Chicago’s theater district with convincing the chain to take the project in a more offbeat direction.

The small, 9,500-square-foot corner site is filled to its limits by the 250,000-square-foot building, which was developed as two discrete pieces. The north half exposes the structure’s concrete frame, while the south comprises the hotel’s signature folded glass façade and the dynamic canted roof that rises toward the intersection of State and Lake streets. Breaking the mass of the slender building gives it a smaller scale on the streetscape—in contrast to its generally larger neighbors. The chartreuse glass of the lightning bolt bends to fill the canopy protecting the entrance—and casts its wickedly hip color onto pedestrians unlucky enough not to stay at the hotel.

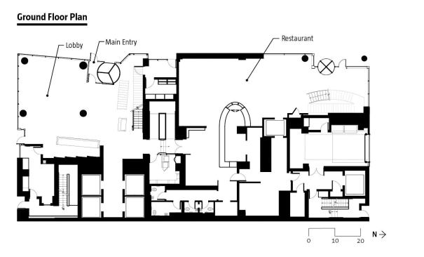
A double-height lobby puts the Wit’s comings and goings on display for riders on the adjacent elevated trains; the north end of the building sandwiches two of the hotel’s three eateries—the more casual on the first floor, the more formal on the second. A single separate entrance from the street allows public access to both.

The two restaurants at the base have been well received, but it’s the rooftop one that drew overflow crowds of hipsters during its inaugural summer. Central countertops are shielded from the sun by inverted umbrellas and movable tables are scattered for intimate groupings. From any vantage, the skyline view dominates.

Although the hotel is not LEED certified, the owners tout a handful of eco-friendly features that include heat pumps, low-E glazing, and dual-flush toilets. Lighting was designed to beat industry standards by 30 percent, with expected annual savings of 1.24 million kWh.

Koo has made the most of a relatively modest budget, so that both concrete and glass conspire to put hipster drama in what could have been a very ordinary structure. By canting the planes of the curtain wall and resolving them with a streak of bright color, she’s built what she calls a “one-move”—but not one-note—design strategy, a successful ploy that ensured the building’s signature design could not be value-engineered out during the process. And the Wit responds to the developer’s constraints while creating a new beacon in Chicago’s theater district.

“It’s a marquee without being a sign,” Koo says.


Project Credits

Project the Wit, a Doubletree Hotel
Client Scott Greenberg/ECD Co.
Architect Koo and Associates, Chicago—Jackie Koo (principal in charge of design and construction); Tim Weber (project architect); Damian Petrescu, Zenovia Toloudi, Isabela Gould, Dan Rappel, Christopher Berenfeld, Sabine Kollwitz, Karen Dunsford (project team)
Interior Designer Cheryl Rowley Design
Design/Build Mechanical Engineer of Record AMS Mechanical Systems; Building Systems Engineering
Structural Engineer Halvorson & Partners
Design/Build Electrical Engineer
JMS Electrical—Donald Kash
Civil Engineer Terra Engineering
Geotechnical Engineer Ground Engineering Consultants
Construction Manager/General Contractor James McHugh Construction Co.
Landscape Architect Daniel Weinbach and Partners
Lighting Designer Lightswitch Architectural
Acoustical Engineer Shiner and Associates (preliminary design); Threshold Acoustics (construction)
Size 250,000 square feet

Materials & Sources

Acoustical System Newmat newmatusa.com
Carpet Tai Ping taipingcarpets.com; Aqua Carpet
Ceilings Armstrong (Optima ceiling tiles) armstrong.com
Concrete James McHugh Construction Co. mchughconstruction.com
Fabrics and Finishes Valley Forge valleyforge.com; Fabricut fabricut.com; S. Harris & Co. sharris.com; Kneedler-Fauchere;Osborne & Little osborneandlittle.com
Flooring Porcelanosa porcelanosa-usa.com; Atlas Concorde atlasconcorde.it
Glass Viracon (glass supplier) viracon.com; Saflex (Vanceva colored laminated interlayer) saflex.com
HVAC McQuay mcquay.com; ClimateMaster climatemaster.com
Lighting Control Systems Lutron lutron.com
Lighting Lightolier lightolier.com; Juno Lighting Group junolightinggroup.com; Winona Lighting winonalighting.com; Challenger Lighting challengerlighting.com; Visual Lighting Technologies (fiber optics for screen) visual-lighting.com
Plumbing and Water System Kohler Plumbing Fixtures kohler.com; Toto USA (Aquia III Dual Flush Toilet) totousa.com
Windows and Curtain Wall Trainor trainorglass.com; Kawneer kawneer.com, Nanawall nanawall.com

About the Author

Edward Keegan

ARCHITECT contributing editor Edward Keegan, AIA, is a Chicago architect who practices, writes, broadcasts, and teaches on architectural subjects.

No recommended contents to display.

Upcoming Events

  • Design Smarter: Leveraging GIS, BIM, and Open Data for Better Site Selection & Collaboration

    Live Webinar

    Register for Free
  • Slate Reimagined: The Surprising Advantages of Slate Rainscreen Cladding

    Webinar

    Register Now
  • The State of Residential Design Today: Innovations and Insights from RADA-Winning Architects

    Webinar

    Register for Free
All Events