The Gateway, Maryland Institute College of Art

Baltimore / RTKL Associates

5 MIN READ

The eclectic mix of buildings that form the Baltimore campus of the Maryland Institute College of Art (MICA) has long given the institution an unusual charm. But that same diversity of building types—ranging from a Victorian hospital-turned-dormitory to a row of historic townhouses—has also conspired against public understanding of the school’s mission to educate artists. All of that is changing with the recent completion of the Gateway, an eye-catching $32 million facility positioned strategically to showcase the college’s programs and enhance its visibility.

The building’s multiple functions as residence hall, theater, career center, and café satisfy an assortment of needs for the college. But its physical location on the campus edge was equally important for the 183-year-old institute. “This is an important anchor site for us,” says MICA president Fred Lazarus, who points out the prominence of the building’s site, the presence of a nearby cultural district, and the proximity of a light-rail transit stop.

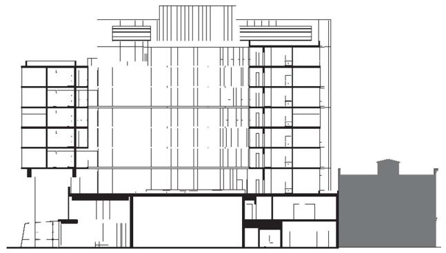
In addition to its intelligence as an urban design gesture, the 87,000-square-foot project is notable for its unique beginnings—conceived through an in-house competition among young designers at RTKL, the Baltimore-based architects of the building. Teams representing seven of the firm’s offices submitted entries, and two London employees, Grant Armstrong and Christy Wright, emerged as winners. Their concept deftly knit together difficult site constraints and wide-ranging functions, wrapping three dormitory pods and a studio tower around a central courtyard. Key elements of their scheme survived in the final design, refined by a local team, which consolidated the living units into a drum-shaped residential wing and a rectangular glass tower.

Viewed from the campus, the dominant image of the building is formed by the faceted cylinder, which is elevated on slender concrete columns. Clad on its outer façade in a staggered pattern of multicolored glass, the drum contains three- and four-bedroom apartments for juniors and seniors. Single-occupancy bedrooms—including amenities such as custom-designed furniture and homosote pinup walls?are placed along the perimeter to maximize natural light, an important consideration for artists who often work in the solitude of their rooms. In addition, each of the 63 apartments has a generously sized living space, kitchenette, and bathroom.

The nine-story rectangular tower forms the building’s north façade, running along busy North Avenue and angling toward nearby I-83 like a giant billboard. Wrapped in fritted glass panels, the tower houses additional apartments and provides work space (including 38 cubicles and two open-plan studios) for MICA’s student artists. “The site allowed us, for the first time, to create this transparency where the creative process is put on display to passersby,” says Michael Molla, MICA vice president of operations.

Concrete balconies ringing the interior of the drum overlook a landscaped courtyard that is the spiritual heart of the dormitory. “From the balconies, you can look down and see the activity in the space,” RTKL principal Shawn Reichart says. A concrete platform in the courtyard serves as a stage for concerts or small performances.

Other key functions occupy the lower two floors. The ground-floor lobby doubles as gallery for student work, while a small café tucked into the north end of the lobby serves light fare and coffee in an informal setting. Opposite the gallery are entrances to the BBox, a flexible, black box theater that hosts movies, lectures, performances, and concerts. Up one level, on the second floor, are an apartment for the residence adviser, offices and meeting spaces for academic programs, and MICA’s career development center.

Lazarus notes it was his desire from the beginning to create a mixed-use facility. But in its final iteration, the Gateway building transcends the mere fulfillment of functional requirements. It serves as a visible symbol for the institute, involves the broader community in MICA programs, and contributes to the overall revitalization of the city of Baltimore.

Project Credits
Project: The Gateway, Maryland Institute College of Art, Baltimore
Client: Maryland Institute College of Art
Architects and Engineers: RTKL Associates
General Contractor: Whiting-Turner Contracting Co.
Landscape Architects: Higgins-Lazarus Landscape Architecture
Civil Engineers: KCW Engineering Technologies Inc.
Lighting Design: Flux Studios


TOOLBOX

Exterior Glass
Viracon, Inc.; viracon.com
One of 16 varieties of glass used on the exterior of the building, the colored panels wrapping the residential drum are Viraspan, an insulating spandrel glass manufactured by Viracon. The applied color is a ceramic frit—some white, some gray, some a custom green—that covers the entire surface of the glass and provides privacy inside the rooms. The operable vision light in each bedroom has a frosted appearance from the outside, created by a film interlayer.

Exterior-Grade Theater Lighting
Altman Lighting Co.; altmanltg.com
Adjustable spotlights for presentations and impromptu performances on the courtyard stage are attached to 1½-inch stainless steel rails that project from the fifth-floor landing. Rated for outdoor use, the cast-aluminum fixtures used noncorroding hardware and fittings. Joinings have heavy gaskets to protect the lamp, reflector, and ballast from inclement weather. Similar fixtures with flood lenses are used for ambient lighting in the courtyard.

Dorm Room Furniture
Coriander Designs; corianderdesigns.com
Designer Aynur Gunes, a MICA alumna, consulted with current students to develop dorm room furniture that would suit their particular needs. Going green was an important factor. Fabricator Coriander Designs built the combination bed/desk/storage unit using sustainable maple and tongue-and-groove construction with natural glues. Doors for the freestanding cabinets are bamboo. For flexibility, the desktop under the loft bed can be removed.

About the Author

No recommended contents to display.

Upcoming Events

  • Build-to-Rent Conference

    JW Marriott Phoenix Desert Ridge

    Register Now
  • Reimagining Sense of Place: Materiality, Spatial Form, and Connections to Nature

    Webinar

    Register for Free
  • Homes that Last: How Architects Are Designing a Resilient Future

    Webinar

    Register Now
All Events