The Botwin Building

A ground-up, green-minded building fills the shoes of a lost Kansas city icon.

2 MIN READ

When developer Diane Botwin stood on a Kansas City, Mo., street corner in February 2007 and watched her flagship building—purchased by her parents 34 years earlier—burn down, she had to balance her own emotional loss against that of her tenants. She also had to figure out how to proceed: Rebuild the original 1923 structure, beloved flaws and all, or start fresh. It was not an easy decision to build an entirely new, modern, and sustainable building in what Botwin calls the “goofy, challenging, and creative” neighborhood of Waldo, but the decision to use El Dorado wasn’t hard at all. “When they found out [what happened], they came running and put their arms around me and said it would be OK,” Botwin says. “This project started that day.”

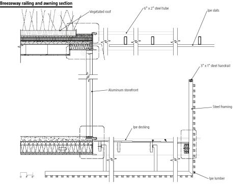
The new glass-and-metal structure may look nothing like the terra-cotta–clad, lath-on-slat original, but it serves the same function, at least in spirit: a mixed-use space for community gatherings. “One thing they got exactly right,” Botwin says, “was the scale of the building.” The two-story, 12,500-square-foot space was designed to hold four commercial tenants. A cantilevered second story shades ground-floor patios with outdoor seating for restaurants and coffee shops. A collaboration with local artist Anne Lindberg—whose work focuses on the character and weight of drawn lines—resulted in a 200-foot-long glass public art installation. Working with glass manufacturer Viracon, Lindberg’s line drawing was fritted onto glass panels that make up the second-floor glazing. In addition to providing aesthetic value, the pattern also provides sunshading by filtering the light into the tenant spaces.

To combat issues of stormwater runoff on the site—a common problem in Kansas City, where the sewer system is antiquated—El Dorado added a vegetated roof to absorb rainwater and remove it from the public system. Though the building is not LEED certified, the firm made sure it met the standards. El Dorado prepared a report that broke down all possible LEED points and offered three tiers of options on how to proceed, with cost outlays and repayment estimates so that the client could see what was and was not within her grasp. “As a property owner, I don’t care about the certification,” Botwin says. “What matters to me is that I am doing in my value system the right thing.” And the concern about change from the good citizens of Waldo? By the size of the Friday night dinner crowd at Kennedy’s Bar & Grill on the ground floor, they’ve welcomed it with open arms.

Project The Botwin Building, Kansas City, Mo. Client Diane Botwin, Botwin Family Partners, LP Architect El Dorado—Josh Shelton (principal in charge); Steve Salzer (project architect); Brady Neely (design support and prototyping) Structural Engineer Bob D. Campbell M/E/P Engineer Lankford + Associates Lighting Derek Porter Studio Site-Specific Art Anne Lindberg General Contractor Hoffman Cortes Size 12,500 square feet Completion September 2008

About the Author

Katie Gerfen

Katie Gerfen is the former editor-in-chief of ARCHITECT, as well as the former editor of Custom Home.

No recommended contents to display.

Upcoming Events

  • Slate Reimagined: The Surprising Advantages of Slate Rainscreen Cladding

    Webinar

    Register Now
  • The State of Residential Design Today: Innovations and Insights from RADA-Winning Architects

    Webinar

    Register for Free
  • Specifying Smarter with Copper-Clad Aluminum (CCA) Metal-Clad Cable

    Webinar

    Register for Free
All Events