RTKL Offices

Chicago / RTKL

6 MIN READ
Mark Lauterbach
 Vice President 
 RTKL

Credit: Patricia Parinejad

Mark Lauterbach Vice President RTKL

For nine of RTKL’s first 11 years in Chicago, it occupied offices in Holabird & Roche’s Marquette Building—a late 19th century classic of the Chicago School. Looking for a new space, the firm decided to take a completely different direction, and the 105-person office moved to the 18th and 19th floors of the midcentury Borg-Warner Building. “It’s the oddball building on Michigan Avenue,” says vice president and project lead designer Mark Lauterbach.

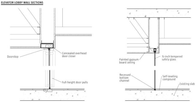
“We wanted a space that felt different,” Lauterbach says, “but we wanted it to be neutral.” RTKL sought this effect by developing the public spaces as a play on white. Glossy white concrete floor tiles greet visitors at the 18th floor elevator lobby and extend through a glass wall into the reception area, where a Corian desk, model display stands, and a plaster wall all reinforce the white-on-white motif.

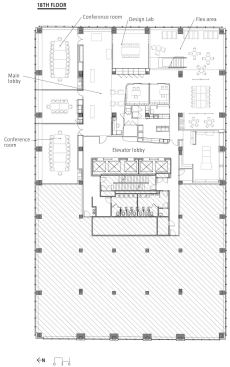
The 18th floor is devoted to shared work areas. Bracketing the reception area are three conference rooms and the glass-enclosed Design Lab, which hosts intensive client workshops at a high-top table and puts the team on display for visitors and RTKL employees. “Clients love that. It’s so atypical,” says Lauterbach of the fishbowl effect.

In one corner of the 18th floor, Lauterbach and project designer Jason Peters carved a double-height space out of two 21-foot-square concrete structural bays; it functions as a “third place” where one is likely to find staff working away from their assigned desks.

A ceremonial stair in the double-height space leads to the 19th floor, which is an open studio with a small central library offering seating at the top of the stair. Rows of glass-enclosed, semiprivate offices for the vice presidents line the internal core of the building. Every workstation is open to views of the lake and has natural light from two directions.

The collaborative nature of RTKL’s working process informed the choice of furnishings. The firm asked six vendors to set up workstations for its employees to test-drive for a few weeks. At a reception, each manufacturer presented its products, and a vote resulted in the selection of a European design by Alea. Its low partitions preserve the lake views from every desk while promoting interaction and even eavesdropping among team members. “You learn a lot listening to how somebody handles a contractor or a consultant on the phone,” says Lauterbach, who describes this as a form of mentoring.

All of RTKL’s old furniture from the Marquette Building was recycled—reused, sold, or donated—as part of the green strategy for the project. While the offices achieved a LEED Silver certification, Lauterbach notes that their commonsense approach to reuse doesn’t earn any LEED credits. The new furnishings are intended to be even more sustainable. RTKL hopes to keep durable modern classics like its new Eames chairs in service for three decades or more. “It’s about keeping things,” Lauterbach says.

Project: RTKL Chicago Offices
Location: Chicago
Client: RTKL
Architect: RTKL, Chicago—Mark Lauterbach, Daniel White (vice presidents); Michael Schwindenhamme (principal designer); Alan Kirkpatrick, Caesar Vitale (project managers); Kevin Montgomery (project architect); Jason Peters (project designer); Michelle McMinn (interior designer); Aimee Stern (conceptual designer); Todd Kaiser, Erin Grigsby (LEED AP); David Davenport (commissioning agent); Patricia Kazinski (lighting consultant)
M/E/P Engineer Ramm Associates
Structural Engineer: TGRWA
Speciality Systems Consultant: The Whitlock Group
General Contractor: Oscar J. Boldt Construction
Lighting Control Systems Consultant: Lutron Electronics Co.

Product Specs Seating

Aeron task chairs
Herman Miller Inc.
hermanmiller.com

Mayflower Plastic Stack Chair in white and green
Materia
materia.se

Mayflower Stacking Barstool in white
Materia
materia.se

Mayflower Upholstered Guest Chair
Materia
materia.se

Corian Glacier White laminate on gallery benches
DuPont
dupont.com

B.2 Lounge Chair in white and chrome
Bernhardt Design
bernhardtdesign.com

JoJo Adjustable Height Stools
Allermuir
allermuir.com

Bix seating (booths)
Steelcase
steelcase.com

Eames Aluminum Management Chair
Herman Miller Inc.
hermanmiller.com

Eames Soft Pad Executive Chair
Herman Miller Inc.
hermanmiller.com

Flooring

Concrete 16-by-24-inch field tile in pearl smooth finish
Sadlerstone
sadlerstone.com

Velvet Grid broadloom carpet
Masland Contract
maslandcontract.com

Kinetic broadloom carpet
Masland Contract
maslandcontract.com

Estuary broadloom carpet
Masland Contract
maslandcontract.com

Artesian broadloom carpet
Masland Contract
maslandcontract.com

Veneto linoleum sheet flooring
Johnsonite
johnsonite.com

Etrusco linoleum sheet flooring
Johnsonite
johnsonite.com

Levelrock brand Proflow flooring with wax finish
USG Corp.
levelrock.com


Finishes CraftWood wallcovering in walnut veneer
SR Wood
srwoodinc.com

Alkemi recycled scrap aluminum countertops with Nebula honed finish
Renewed Materials
renewedmaterials.com

Concealed overhead door closer with 90 degree hold-open
Blumcraft of Pittsburgh
blumcraft.com

Fabric-wrapped pinup panels
Maharam
maharam.com

Binary upholstery fabric
Maharam
maharam.com

Repeat Classic Stripe upholstery fabric
Maharam
maharam.com

Orakel Blume upholstery fabric
Maharam
maharam.com

Color Blox series field tile in A1117
Crossville
crossvilleinc.com

Kho Lang Li series tile in pattern 16904, in white
Royal Mosa
royalmosa.com

Brushed Aluminum plastic laminate
Arborite
arborite.com


Furniture Office/Team Room tables in aluminum with birch veneer
Alea
aleaoffice.com

Corian Reception Desk
DuPont
dupont.com

Occasional table in glass and chrome
Bernhardt Design
bernhardtdesign.com

Dining and lounge tables in various heights with white tops and chrome bases
Allermuir
allermuir.com

Vox series conference tables in sycamore veneer
Nienkämper
nienkamper.com

Vox series credenzas in sycamore veneer with aluminum trim
Nienkämper
nienkamper.com

White melamine laminate library layout furniture
Kayhan International
kayhan.furnishgroup.com

White melamine laminate storage furniture
Kayhan International
kayhan.furnishgroup.com

Perimeter storage, including cabinets and printer stations, in white melamine laminate
Alea
aleaoffice.com

Skyblend particleboard kitchen cabinets with bamboo veneer
Neil Kelly Cabinet Co.
neilkellycabinets.com


Wall Systems Aluminum and glass individual office wall system
Infinium Architectural Wall Systems
infiniumwalls.com

Transparent glass panels
Trainor Glass Co.
trainorglass.com

Milk finish glass panels
Trainor Glass Co.
trainorglass.com

Sheetrock
USG Corp.
usg.com


Lighting and Shading Recessed linear direct staggered lamp Edge 4S with acrylic lens
Pinnacle Architectural Lighting
pinnacle-ltg.com

Calculite Matrix compact fluorescent open downlights
Lightolier
lightolier.com

SL207C Floating Paper 9-by-9-inch forms, spectral architectural lighting
Lightolier
lightolier.com

Recessed Bivergence fixtures with T5 lamps
Zumtobel
zumtobel.us

2RT5 recessed fluorescent downlights
Lithonia Lighting
lithonia.com

LEV-level suspended fixtures with T5 lamps
Énergie
energielighting.com

Combo CO Series recessed MR16 fixtures with Trim
RSA Lighting
rsalighting.com

Lytespan Step spot mini HID track lighting
Lightolier
lightolier.com

Moser pendant fixture with opal handblown glass
Louis Poulsen Lighting
louispoulsen.com

Bella pendant fixture in white pliable acrylic with a satin finish
Énergie
energielighting.com

Sonar 1 frosted lens low-bay pendants with fluorescent lamps
Delray Lighting
delraylighting.com

Flexible white undercabinet LEDs
RSA Lighting
rsalighting.com

Tolomeo Classic task lamps for individual workstations
Artemide
artemide.com

Window shades
Lutron Electronics Co.
lutron.com


Paints Eco Spec Interior Latex in Flat 219; Eggshell Enamel 223; Semi-gloss Enamel 224
Benjamin Moore & Co.
benjaminmoore.com

Eco Spec Primer Sealer
Benjamin Moore & Co.
benjaminmoore.com


Ceilings Eurostone sustainable ceiling panels
Chicago Metallic Corp.
chicagometallic.com

Techstyle acoustical ceiling panels in white
Hunter Douglas
hunterdouglascontract.com


Systems Furniture Zefiro SYS workstation furniture
Alea
aleaoffice.com


Miscellaneous Wayfinding graphics and artwork on glass
Aion Solutions
aionsolutions.com

Projectors and videoconferencing
The Whitlock Group
whitlock.com

Projectors and videoconferencing controller
Extron Electronics
extron.com

“RTKL” solid acrylic signage blocks
PSI Model Builders

About the Author

Edward Keegan

ARCHITECT contributing editor Edward Keegan, AIA, is a Chicago architect who practices, writes, broadcasts, and teaches on architectural subjects.

No recommended contents to display.

Upcoming Events

  • Build-to-Rent Conference

    JW Marriott Phoenix Desert Ridge

    Register Now
  • Reimagining Sense of Place: Materiality, Spatial Form, and Connections to Nature

    Webinar

    Register for Free
  • Homes that Last: How Architects Are Designing a Resilient Future

    Webinar

    Register Now
All Events