Press Club

Baldauf Catton von Eckartsberg Architects

4 MIN READ
Christian von Eckartsberg, Principal-in-Charge/Design Principal, Baldauf Catton von Eckartsberg Architects

Christian von Eckartsberg, Principal-in-Charge/Design Principal, Baldauf Catton von Eckartsberg Architects

A new vision for a wine bar in downtown San Francisco, a wine-loving region, Press Club started as a business plan hatched by part-owner Andrew Chun at Dartmouth’s Tuck School of Business. The premise: Provide a space where employees of select local wineries can showcase their wares in a setting that will keep bringing patrons back for more.

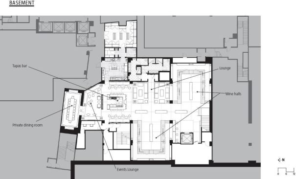
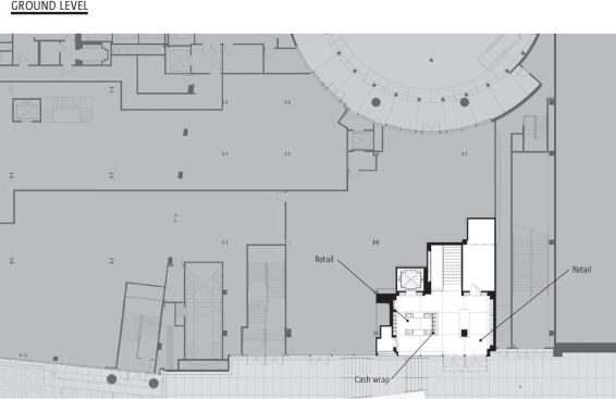
Enter Baldauf Catton von Eckartsberg Architects—which made a name for itself as retail architect for the San Francisco Ferry Building renovation and other projects—and a design team led by principal Christian von Eckartsberg, a fellow Dartmouth alum. “This had to be a place to not only capture the tours and business travelers,” von Eckartsberg says. “It is critically important that this is a place that locals feel great about.” A small retail space on the ground level gives way to a 7,000-square-foot basement level with a tapas bar and two wine halls for tasting.

The resulting space is an urban expression of the wine country, pairing natural materials—black walnut wood, cork wall and ceiling coverings—with more industrial finishes such as concrete and steel. This simple materials palette is carried throughout the space. Wood appears on walls, the bars, and soffits, while stainless steel appears on everything from the stair rail assembly to the countertop of the cash wrap by the entry.

Programming the space was a challenge, especially given that von Eckartsberg was “sensitive to not having this turn into the wine ‘food court’ of San Francisco.” The space—­which began as a raw, open 12,000 square feet—is delineated by the use of soffits, area rugs, and wine racks to define the tasting bars in the wine halls, the two lounges, and the tapas bar. The only closed-off room that the public can access is a private dining room at the rear of the basement level. To reduce noise, a black acoustic blanket is attached to the ceiling above the soffits to dampen the inevitable echoes of a space with very little soft-surfacing.

Each of eight winery stations is defined by subtle stainless steel signs and bottle displays. Behind each station, a lit display case shows the wines available. And no cash registers clutter up the place—all purchases are totaled up and paid for at the door, adding to the exclusive club feel.

So sidle up to Chateau Montelena’s station, grab a glass of chardonnay, and enjoy being part of the in crowd.


The Spec List

Flooring

Sisal Twist carpet in Tie Dye • Bentley Prince Street • bentleyprincestreet.com • Circle 435

Moki carpet in Fustic • Masland Contract • maslandcontract.com • Circle 436

Ceilings

Acoustical ceiling tile • Armstrong • armstrong.com • Circle 437

Fabric Cork • Jelinek Cork Group • jelinek.com • Circle 438

Finishes

American black walnut wood • Plant Architectural Woodwork • plantwoodwork.com • Circle 439

Precast concrete sinks and bartops • Concreteworks • concreteworks.com • Circle 440

Ceramic and glass tile • Gino Rinaldi Inc. • rinalditileandmarble.com • Circle 441

Interior paint • Kelly-Moore •kellymoore.com • Circle 442

Board-formed cement plaster • Giampolini & Co. • giampolini.com • Circle 443

Metal and stainless steel finishes • Eclipse Design • eclipsedesigngp.com • Circle 444

Furniture

Custom furniture • Dependable Furniture Manufacturing • dependablefm.com • Circle 445

Club chair • Andreu World America • andreuworldamerica.com • Circle 446

1292 Cube barstool • ISA International • havaseat.com • Circle 447

Ottomans • Martin Brattrud • martinbrattrud.com • Circle 448

Custom tables • Warisan • warisan.com • Circle 449

Custom tables • Brent Comber Originals • brentcomber.com • Circle 450

Decorative pillows and custom cushions • Georgina Rice and Co. • georginarice.com • Circle 451

Fabrics

Haze fabric in Barley • Knoll Textiles • knoll.com • Circle 452

Moto HC fabric in Picnic • Knoll Textiles • knoll.com • Circle 453

Sublime fabric in Grass • Arc-Com • arc-com.com • Circle 454

Repeat Classic fabric • Maharam • maharam.com • Circle 455

Voila fabric in Mushroom • Architex • architex-ljh.com • Circle 456

Imago Progeny drapery fabric in Blonde • Knoll Textiles • knoll.com • Circle 457

Lighting

Bella pendant with clear glass shade • Niche Modern • nichemodern.com • Circle 458

Par 38 track lighting • Litelab • litelab.com • Circle 459

Micro Spot G • Translite Sonoma • translite.com • Circle 460

Undercounter LED lighting • Winona LED • winonalighting.com • Circle 461

4 recessed low-voltage downlights • LiteFrame • prescolite.com/brands/liteframe.php • Circle 462

Fluorescent T8 wall washers • Danalite • danalight.dk • Circle 463

Par 38 fixtures • RSA Lighting • rsalighting.com • Circle 464

2 by 4 recessed fluorescent fixtures • Lithonia Lighting • lithonia.com • Circle 465

Step 02 Square Deco step lights • Winona LED • winonalighting.com • Circle 466

Clarity Ceiling fixtures • Resolute • resoluteusa.com • Circle 467

Studio pendant fixture • Neidhardt Lighting • neidhardtinc.com • Circle 468

ELX Series recessed exit signs • Sure-Lites • surelites-lighting.com • Circle 469

Ceiling rectangular box and drum pendants based on the David 16 fixture • Resolute • resoluteusa.com • Circle 470

Vertical Transport

Passenger Elevator • Mitsubishi • mitsubishi.com • Circle 471


Project Press Club

Location San Francisco

Client Millennium Partners, Taste Partners

Architect Baldauf Catton von Eckartsberg Architects, San Francisco—Christian von Eckartsberg (principal-in-charge/design principal); Megan Hannon (job captain/project designer); Kevin Zeller (project manager); Anna Pahucki (interior designer)

M/E/P and Lighting Engineer CB Engineers

Structural Engineer Desimone Consulting Engineers

General Contractor Plant Construction Co.—Jeff Gherardini, David Smith (construction managers); Crystal Bunzell (superintendent)

About the Author

Katie Gerfen

Katie Gerfen is the former editor-in-chief of ARCHITECT, as well as the former editor of Custom Home.

No recommended contents to display.

Upcoming Events

  • Design Smarter: Leveraging GIS, BIM, and Open Data for Better Site Selection & Collaboration

    Live Webinar

    Register for Free
  • Slate Reimagined: The Surprising Advantages of Slate Rainscreen Cladding

    Webinar

    Register Now
  • The State of Residential Design Today: Innovations and Insights from RADA-Winning Architects

    Webinar

    Register for Free
All Events