Pierresvives, designed by Zaha Hadid Architects

Zaha Hadid’s new municipal building adds to the architectural renaissance of Montpellier, France, and draws together three public agencies under a single concrete, glass, and gold-louvered roof.

7 MIN READ

The ancient French city of Montpellier is no stranger to urban development: An ornate 19th-century opera house commands an impressive Beaux Arts ensemble on the Place de la Comédie in the heart of the old town. For well over a decade in this century, civic leaders have taken the cue from the city’s own urban precedent by using architecture to revitalize and reshape the city, calling on Jean Nouvel, Hon. FAIA, Christian de Portzamparc, Paul Chemetoff, Ricardo Bofill, Hon. FAIA, Massimiliano Fuksas, Hon. FAIA, and other European talents to invigorate the city with special architectural moments that help catalyze new urban fabric. A de facto exhibition of contemporary architecture, Montpellier is one of the few French cities where new quarters are as compelling as the historic core. The civic leaders adhere to the modernist theology of bettering lives through architecture and urban planning.

Citizens driving northeast toward the community of La Paillade now round a hill and confront a building by Zaha Hadid, Hon. FAIA, that commands the broad valley from its position on a rise. With flowing lines, rounded corners, and an overall vectorial list to the west, the monumental structure seems like a moored ship. In the landscape, Hadid’s design is a completely unexpected apparition.

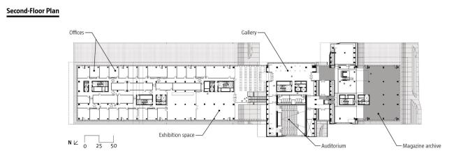
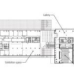
Hadid does not design down to her audience, and in Montpellier the client himself set the bar high. The driving spirit behind the project, which is called Pierresvives, was Dr. André Vezinhet—president of the province’s General Council and a former chief city planner—who cites the humanist agenda of Rabelais: “I build only living stones [pierres vives]—men.” The idea is to build people, in this case through architecture that houses an enriching mix of cultural and athletic programs. The building, dubbed “City of knowledge and sports,” unites and relates three departments—regional archives, sports headquarters, and a multimedia library—all under one long roof that is several football fields in length. The separate agencies had all outgrown their respective facilities, and Hadid won the competition in 2002 by proposing to bring them together in a single building, rather than leaving each one isolated on different parts of the same campus.

In addition to the agenda of creating an environment that forms individuals—Vezinhet cites, in Latin, the Roman poet Juvenal’s admonition for a sound mind in a sound body—there was the social agenda. The council president made a gesture to a disadvantaged minority neighborhood with a program of social outreach housed in a building that makes a grand and serious architectural gesture. The building has the presence of a cathedral, and will organize the town now being built around it. Vezinhet conceived and sited Pierres­vives as a commanding player on an urban chessboard. The building will serve as the centerpiece in a new eco-city of about 900 apartments, that will link to La Paillade, an existing neighborhood with some 25,000 people—including a large Maghrebian population living in public housing.

Pierresvives now anchors the entire community with an institution open to all. Vezinhet sited the building strategically, where it mattered, in an overlooked, low-income area separated from more affluent parts of town: “My passion was to integrate La Paillade with the rest of the city by building a hyphen,” he says.

Hadid mixed her punctuation by grafting an exclamation point to the hyphen. Sometimes considered an elitist starchitect dedicated to rarefied commissions such as museums, the socially responsible Hadid, in fact, has always designed her public buildings with a democratic agenda aimed at expanding the public sphere. Her open geometries invite the public into and through structures that extend the street.

Hadid frequently bases her projects in organizational diagrams. At Pierresvives, working with project architect Stephane Hof, she based the plans in a concept of branching. The organizational concept quickly adopted a metaphor—the tree of knowledge—worked out not only in plan but also in section and on the façade, where glazing outlines corridors and public spaces that branch through the building. In between, opaque concrete volumes house archives constituting a full 60 percent of the building. The flow of spaces represents not only the trunk and branches but also the flow of sap.

The programs inside, and especially the public spaces legible on the exterior, effectively open the institutions to the public. Smooth pre-cast concrete panels enclose volumes that are separated by glazed interstitial spaces that in turn track the path of public spaces through the building. Hadid maps the interior on the exterior, and even projects the vertical map of the façade horizontally onto the front plaza and back parking spaces as a “shadow” in plan.

About the Author

Joseph Giovannini

A prominent critic, journalist, author, teacher and architectural designer, Giovannini earned his master's degree at Harvard University's Graduate School of Design and runs his own practice, Giovannini Associates.

No recommended contents to display.

Upcoming Events

  • Build-to-Rent Conference

    JW Marriott Phoenix Desert Ridge

    Register Now
  • Reimagining Sense of Place: Materiality, Spatial Form, and Connections to Nature

    Webinar

    Register for Free
  • Homes that Last: How Architects Are Designing a Resilient Future

    Webinar

    Register Now
All Events