The clubhouses of St. Andrews, Pinehurst, and Oakmont are the stuff of legend. Their grand profiles and time-honored architectural styles recall the sport’s beginnings as a gentlemen’s game. But at Blessings Golf Club near Fayetteville, Ark., club owner John Tyson had a different vision in mind.
Tyson, the chairman of Tyson Foods, sought out the best golf club architects he could find. At the same time, he asked hometown architect Marlon Blackwell—who had rarely been to a golf course, much less designed a facility for one—to toss his own ideas into the mix.
Some of Tyson’s invitees made models to communicate their ideas; others sent him sketches. “I got a lot of your traditional structures. But they just didn’t appeal to me,” Tyson says bluntly. What bothered him most about the traditional designs were the floor plans, which were chopped into small, enclosed rooms dedicated to each function. In addition, they lacked any relationship between indoors and out.
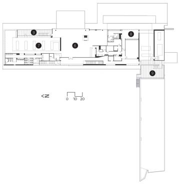
Blackwell took a different tack. Unlike the other schemes, his proposal for the clubhouse (which ultimately won the day) took its primary cues from the site—a wedge-shaped parcel pushed up against a low hill and stretching across a shallow valley toward a winding creek. With the Blessings Clubhouse and a smaller companion facility for the University of Arkansas golf team, he sliced across the valley, creating both a threshold and an edge.
Other circumstances influenced the design of the building as well. The discovery of Osage Indian artifacts on the site meant that a large section of the land could be built upon but not disturbed. Economics was another constraint: The budget ($198 per square foot for the clubhouse) forced Blackwell to think strategically. “But the ultimate principle we were working with was that, in some ways, this was like a house,” he says.
TREADING LIGHTLY Blackwell wanted the project to rest lightly on the land and to encapsulate the program in a simple figure whose precise geometry would be a counterpoint to the rounded forms of the natural landscape. “Rather than the scrambled-egg approach, in which every programmatic element would be expressed as a different shape or a profile at the edge, we wanted to express everything in a single form,” he says. “The best vernacular buildings I know of are single figures in the land. So we drew upon that.”
The juncture of hill and valley is where Blackwell chose to build the two-story, bar-shaped clubhouse—springing from the foot of the north-facing mountain into the archaeological zone. The building’s form creates an entry portal that operates as a breezeway framing the 18th green, a threshold to the golf course beyond, and an event space.
To preserve the archaeological site, the spread footings of the clubhouse rest on three feet of engineered fill. Local dry-stacked stone forms a mass at the base of the building and defines one edge of the single-story golf cart storage building beside the club’s swimming pool. Variations in the copper enclosure––some panels with standing seams, others with flush—help diminish the building’s scale by articulating the surface. “What we’re trying to do,” says Blackwell, a professor of architecture at the University of Arkansas, “is elevate mass and volume to equal status.”
Closer inspection of the building envelope reveals Blackwell’s strategy to tighten the budget. His formal composition of the building shell is independent of the structural bays. Some columns are in the rooms, some are inside gypsum walls, and some are just inside the glass. “If we express the structure in a rationalized, celebrated way, it increases the cost,” Blackwell explains. “To subsume the structure and make it about the surface planes—the volumes and the masses—we are able to control the costs better.”
Most visitors enter the building via the stone-paved portal, stepping into the lobby—a quiet, luminous space, with Pennsylvania bluestone floors and warm cherry-paneled walls—through a pair of towering doors. From there, the entry sequence slowly reveals controlled views of the landscape, the golf course, and a Zen garden outside the expansive dining room windows.
INNER PEACE The clubhouse interiors exhibit a modern sensibility that complements Blackwell’s architecture. In the dining room and elsewhere, interior designer Meredith Boswell combined lean furnishings with muted carpets and upholstery to create a comfortable but subdued setting.
On the second floor is the men’s grill; its lounge area offers panoramic views of the surrounding valley through an immense glass curtain wall. Blackwell introduced a media wall, fireplace, and bar to domesticate and subdivide the room. Tucked into the north end of the space is the sumptuous locker room, where cherry-veneer lockers exude the feeling of expensive casework. The adjacent wet area is skinned on all surfaces in shades of green-glazed tile, while a corridor that veers off to one side ends in a double-height, skylit spa.
Given his lack of familiarity with golf and the early competition, Blackwell admits the whole affair was a bit intimidating at first. He visited several golf clubs and even took a continuing education course on golf club design. Tyson reassured him by saying the project was about pleasing people and creating good space. “Every step of the way,” says Blackwell, “there was the unspoken challenge: How could we take on all these factors but still come up with something that feels more part of this place?” In the end, by being responsive to the circumstances dealt him, Blackwell created a singular building with a certain authenticity.
TOOLBOX With its compact exterior volume and open interiors, the Blessings Golf Club departs from the traditional typology of small, often dark rooms in sprawling structures. Blackwell and Boswell’s palette of natural, modern, and midcentury-inspired finishes, furnishings, and building materials helps impart a sense of comfort and quiet elegance.
The wet area of the men’s locker room is clad in matte and gloss field tile as well as tile from Heath’s Tapestry Collection. This collection was influenced by custom installations by Tod Williams and Billie Tsien and by Boswell herself. Three patterns are available—argyle, stitch, and Flemish bond—which are face-mounted on 12-inch squares for easy installation.
For the carpeting in the downstairs dining room and other areas, Boswell specified Windfall, a low-profile, textured broadloom, in a solid color. The cut-and-loop pile creates a rich but understated floor plane that allows the interior’s natural cherry wood finishes to shine and does not compete with the simple lines of the midcentury modern–inspired furnishings.

The clubhouse’s expansive windows were achieved using a storefront thermal framing system by EFCO. The system allowed for large expanses of glazing uninterrupted by mullions. Thus the views remain intact and the windows still provide good thermal performance.
OTHER PRODUCTS & MATERIALS Exterior—Dry-stacked stone veneer by Schwartz Stone and copper wall systems by Pac-Clad.
Lighting—Hanging light fixtures by Boyd Lighting and standing lamps by Lucifer Lighting.
Furniture—The Catifa chair by Arper was used in the downstairs dining room. Chairs in the upstairs men’s grill are by Keilhauer, as are the coffee and side tables. Grill dining tables are by Speke | Klein.
Project: Blessings Golf Clubhouse and Guardhouse, Johnson, Ark.
Client John Tyson
Architect: Marlon Blackwell Architect, Fayetteville, Ark.—Marlon Blackwell (principal in charge); Gail Shepherd (project architect); Meryati Johari-Blackwell, Chris M. Baribeau, Scott A. Scales, Tony Patterson, Matthew Griffith, Chuck Rotolo, Herb Crumpton, Jose Ribera, Julie Chambers (project team)
Landscape Architect: The Landscape Studio—Ed Blake
Interiors: Meredith Boswell
Lighting Design: John Rogers
Structural Design: Tatum-Smith Engineers
M/E/P Engineer: HSA Engineering Consulting Services
Civil Engineer: CEI
General Contractors: May Construction—David Swain, Johnny Brewer
Size: 28,392 square feet total—clubhouse, 21,700 square feet; cart storage, 6,500 square feet; guardhouse, 192 square feet