Old Orchard Woods Condominiums

Skokie, Ill. / Optima

6 MIN READ

The low-scale sprawl of Skokie, Ill., a Chicago suburb some 14 miles northwest of the Loop’s iconic high-rises, has recently sprouted a skyline of its own—a trio of interconnected 20-story towers that form Old Orchard Woods. With more than 600 condominium units carved out from a total area of a million and a half square feet, the complex is considerably larger than many of its downtown brethren.

The project’s architect is David Hovey of Glencoe, Ill.–based Optima. Hovey also acts as the developer, general contractor, and marketer for his projects (see sidebar below), and his quadruple role gives him exceptional control over the intertwined economics, environmental strategies, and aesthetics of his buildings.

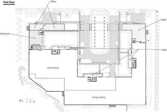
The complex is located on a wedge-shaped property located between an expressway to the east, a forest preserve to the west, and Stanley Tigerman’s new Illinois Holocaust Museum to the south. Hovey sited two double-loaded towers of almost identical length running north-south and a longer, third tower running east-west. The towers sit atop a four-story base, which incorporates an entrance courtyard and amenities such as parking, a swimming pool, and a party room. Units on the lowest residential level have access to the main, 1.2-acre green roof above the parking garage. Other green roofs appear on higher levels, and have access from private terraces.

Nine-story voids—“essential to a building this massive,” says Hovey—separate the towers at the lower levels, but the building mass is continuous on the upper floors. In reality, there are no direct programmatic connections between the three towers. They function separately. But the complex articulation of form isn’t just an architectural conceit—it reflects Hovey’s decades of experience marketing his own projects. “You provide a variety of floor plan types,” he says of the buildings’ diverse footprint. “It gives people variety in size, views, and location in the building.”

Hovey studied architecture at the Illinois Institute of Technology and still teaches there, and the academic connection is apparent in the functionalist aesthetics of Old Orchard Woods. Recessed balconies relieve the grid of an off-the-shelf curtain-wall system, with its cleanly integrated aluminum extrusions. Two shading devices add another purposeful layer of visual interest: a red-painted, two-tiered aluminum shade on windows on some south and west elevations, and a vertical screen on the upper-level bridges between the towers.

Hovey’s role as developer and general contractor had an equally significant impact. He juggled the logistics of construction to his advantage: A moving, single-tower crane was set on a railroad track between the three condo towers, eliminating the need for it to be disassembled and reassembled three times. Hovey chose a concrete structure because it is the most cost-effective material for apartment construction in the Chicago area, while the aluminum cladding he specified provides long-term ease of maintenance and protection against the region’s harsh freeze/thaw cycles. And a phased construction schedule for the three buildings decreased the size of the construction loans he had to take out—all of which makes sense when architect, contractor, and developer are one.

Optima founder David Hovey was born and raised in a seaside town of 900 people in New Zealand. He moved to the United States while in high school and received undergraduate and graduate degrees in architecture from the Illinois Institute of Technology (IIT) before spending four years working for Helmut Jahn. In 1978, he founded Optima—in order to develop, design, and market a six-unit residential complex near the University of Chicago.

Hovey notes that he’s self-taught in his multiple roles. He methodically worked his way from small to larger scale projects. “I had no idea how to do construction financing, marketing, accounting,” he says. One constant in the three decades since has been his accountant. “I walked in the first day with almost no money and he said, ‘I think you need more,” Hovey says. That accountant hasn’t just helped Hovey in his journey from architect to multi-faceted designer/developer/general contractor/marketer. Today, he’s also the accountant to President Barack Obama.

The size of the firm varies, depending on the market, from 75 to 150 employees. Like Hovey, many of the people are trained architects who move from role to role within Optima. The 64-year-old Hovey splits his time between two offices—one in Chicago’s North Shore suburb of Glencoe, the other in Scottsdale, Ariz. But despite the perilous economy, Hovey shows no signs of slowing down. “It’s difficult for all of us,” he says, but he notes one crucial difference between his firm and architecture firms. “If I want a new project,” he says, “it’s my decision to go out and buy a piece of land and start a new project. We don’t have to wait for a client.”

Project Credits
Project:
Old Orchard Woods, Skokie, Ill.
Client: Optima Old Orchard Woods LLC, Glencoe, Ill.
Architect:Optima, Glencoe, Ill.—David C. Hovey (architect of record); Tod Desmarais, Matt Cison, Roman Wachula, Mike Schwerzler, Jim Evans, Benjamin Yonce (design team)
Consulting Engineer: CS Associates
Size: 1.5 million square feet


TOOLBOX

Curtain Wall
PD Manufacturing International
Much of Old Orchard Woods’ aesthetic comes from its aluminum-and-glass curtain-wall system with fully integrated horizontal and vertical sunscreens. These elements—including the balcony handrails—were manufactured by China-based PD Manufacturing International. This was Optima’s first foray into China for an important building component. “We thought the distance might pose problems getting the materials,” says Optima vice president Matt Cison, “but when we had a minor delay, the company overcompensated by air shipping.”

Green Roof Assemblies
American Hydrotech
hydrotechusa.com
Green roofs throughout the complex all utilize garden roof systems from American Hydrotech—using a combination of their Extensive and Intensive product lines. The two lines are differentiated by the amount of maintenance required—the Extensive line comes with sedum, grass, and other maintenance-free plants, and the Intensive system can accommodate small trees, annuals, and other species that require regular gardening care. Optima has used the manufacturer’s products for almost two decades. “For something this critical, we want to use what we think is the best,” Cison says.

Cabinetry
Merillat
merillat.com
Ameriscan Designs
ameriscandesigns.com
David Hovey thinks from a developer’s perspective in providing a variety of apartment configurations and views. The same is true of the kitchen cabinetry options, which allow buyers to select from three stan-dard Merillat lines—Rutland II, Classic, and Masterpiece—all of which are available in a variety of wood and laminate finishes. For kitchen enthusiasts, Cison also notes a “custom” option from Ameriscan, a local manufacturer, with 14 cabinet door options ranging from maple and cherry to zebrawood, wenge, and Japanese tamo.

About the Author

Edward Keegan

ARCHITECT contributing editor Edward Keegan, AIA, is a Chicago architect who practices, writes, broadcasts, and teaches on architectural subjects.

No recommended contents to display.

Upcoming Events

  • Design Smarter: Leveraging GIS, BIM, and Open Data for Better Site Selection & Collaboration

    Live Webinar

    Register for Free
  • Slate Reimagined: The Surprising Advantages of Slate Rainscreen Cladding

    Webinar

    Register Now
  • The State of Residential Design Today: Innovations and Insights from RADA-Winning Architects

    Webinar

    Register for Free
All Events