Museum of the Moving Image

New York / Leeser Architecture

5 MIN READ

At first mention, it seems odd that the Museum of the Moving Image (MMI) is located in Astoria, Queens, N.Y., removed from Manhattan’s wealth of cultural institutions. But it turns out that the museum is perfectly sited among the ghosts of early filmmaking. MMI occupies a building in the complex of masonry-and-industrial-sash buildings that once were the Astoria Studios.* Built in 1920, the buildings served as the East Coast production facilities for Paramount Pictures for more than a decade. As the film industry evolved from silent pictures to “talkies,” production moved to Hollywood, and the complex passed through several hands, eventually falling into disrepair.

In 1977, the newly created Astoria Motion Picture and Television Center Foundation assumed responsibility for the site. Four years later, Rochelle Slovin, the foundation’s first director, proposed the creation of a museum in one of the Astoria Studios buildings. She crafted a mission, initiated an acquisitions strategy, and inaugurated public programs, and, in 1988, New York’s Gwathmey Siegel & Associates Architects completed a renovation of the 1920s building to house the new Museum of the Moving Image.

Over nearly two decades, the museum amassed a collection of 130,000 artifacts representing every aspect of film and television production, and by 1996 it had outgrown its facilities. Needing more space, Slovin spearheaded a master plan for renovation, upgrades, and, most importantly, an expansion, which would almost double the museum’s size from 50,000 to 97,700 square feet. Then she went in search of an architect.

“We wanted a New York architect, but we also wanted one who was not only talented, but under-recognized at the time,” Slovin says, explaining that she has long been committed to young artists and designers. The selection process began with 31 firms being sent Requests For Qualifications. Eventually, Slovin and a museum committee reduced the list and compensated three firms to develop ideas for the expansion. “Thomas Leeser immediately stood out,” Slovin says. “He had a unique, imaginative perspective about the media arts and was undeterred by a budget that kept shrinking.”

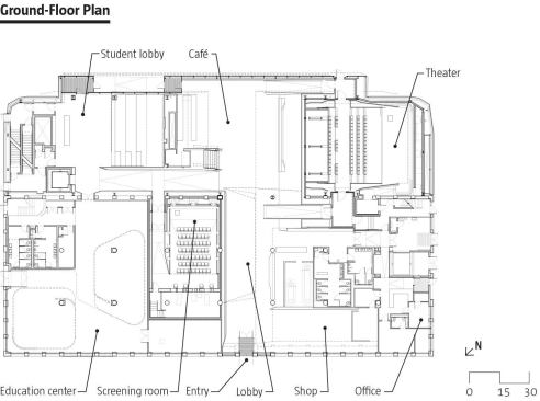
Thus began the museum’s three-year, $67 million evolution ($54.7 provided by the City of New York). The site had been listed on the National Register of Historic Places in 1976, a designation that limited alterations to the exterior. The only apparent change to the historic façade is a new entrance and bolder signage on mirrored and transparent glass. However, once visitors enter the lobby, the moving-image experience begins immediately. A 50-foot-long wall ignites a voyage of gentle disorientation, with a large-scale panoramic video constantly projecting a swirling, cyclical narrative.

Across the lobby, a pair of gently sloping ramps edged in soft blue light lead to the new 267-seat main theater. The theater’s interior is wrapped in an acoustical womb of 1,136 triangular, vacuum-formed felt panels fitted together by open joints with integrated lighting. The pulsing color of the panels is International Klein Blue, named after the French artist Yves Klein, who developed the intense, ultramarine-based color from pure pigment and a binding medium.

Elsewhere, Leeser employed light-blue, seamless, cast-polyester floors and canted walls, meant, according to Leeser, to evoke the otherworldly experience of being inside a spaceship. A grand staircase is the orienting element for the museum. The first landing delivers visitors into a darkened amphitheater, where visual acclimation is challenged by digital projections. Mood lighting seeps out from under the amphitheater benches, further manipulating depth perception. Spatial flexibility drives much of the interior architecture. Circulation and exhibitions often share the space, creating a continuous experience. Fortunately, Leeser’s strategy has a logical flow of circulation and gallery spaces that is easily embraced, minimizing any discomfort from constant changes in lighting levels. This is true even on the third floor, where a 4,100-square-foot gallery offers flexible space for experimental installations incorporating real-time, interactive 3D and stereographic projections. These virtual spaces are created within the rational boundaries of the physical gallery, creating what the exhibiting artists are calling “hybrid spaces.”

Leeser’s addition covers the back of the existing building, providing a backdrop for a yet-to-be-completed 10,000-square-foot plaza. Students will enter the new education center from the plaza. The façade’s skin is made of triangular panels similar to those in the ground-floor theater. More than a thousand thin, light-blue aluminum panels with open joints are precisely fitted together with a tolerance of a mere 3/16 inch. The effect, in contrast to the heaviness of the existing masonry building, is that of super-lightweight apparition, dematerializing against the sky. It’s a beautifully quiet counterpoint to the nonstop action inside.

*Correction, March 11, 2011: As originally published, this article incorrectly added the name “Kaufman” to “Astoria Studios.” We regret the error.


Project Credits

Project Museum of the Moving Image, Astoria, N.Y.
Client Museum of the Moving Image—Rochelle Slovin (director); Herbert S. Schlosser (chairman of the board of trustees)
Architect Leeser Architecture, New York—Thomas Leeser (founder and principal); David Linehan, AIA, (project manager); Simon Arnold, Kate Burke, Sofia Castricone, Henry Grosman, Joseph Haberl (design team)
Owner’s Representative Levien & Co.
Construction Manager F.J. Sciame Construction Co.
Audio/Visual Scharff Weisberg
Acoustician JaffeHolden
Lighting L’Observatoire International
Graphics Karlssonwilker
Exterior Wall R.A. Heintges & Associates
M/E/P Engineers Ambrosino, DePinto & Schmieder
Specification Construction Specifications
Structural Engineers Anastos Engineering Associates
Civil/Geo-Technical Stantec
Code/Expediting JAM Consultants
Elevator VDA
Hazardous Materials TRC Cos.
Projection Systems MDC Systems
Restaurant Program JGL
Design Security Ducibella Venter & Santore
Sustainable Design Atelier Ten
Telephone & Data Shen Milsom Wilke
Textile Design Cindy Sirko
Courtyard David Dew Bruner Design
A/V Contractor Electrosonic
Security Contractor Tritech Communications
Rendering VUW
Size 50,000 gross square feet (existing), 47,700 gross square feet (new construction)
Cost $67 million

Materials and Sources

Wallcoverings Designtex (felt) designtex.com
Drywall Knauf Drywall (perforated drywall) www.knaufdrywall.co.uk
Flooring Fusion Floors (poured urethane) fusionfloors.com
Carpet/Carpet Tile Bentley Prince Street bentleyprincestreet.com
Glass Competition Architectural Metals
Lounge Seating Moroso (Osorom seating) moroso.it
Cafeteria, Dining, Auditorium Seating Viccarbe (Aspa tables) viccarbe.com; Materia (Mayflower Stools) www.materia.se; Irwin Seating Co. (theater seating) irwinseating.com; Maharam (upholstery) maharam.com
Student Orientation Cushions Quinze & Milan quinzeandmilan.tv
Conference Table Asplund (Bermuda Mega table) asplund.org
Chairs Dynamobel (Dis chairs) www.dynamobel.com
Custom Curtain Rose Brand (designed by Cindy Sirko) rosebrand.com
Desks Howe (Tutor) howe.com
Chairs Vitra (Sim, designed by Jasper Morrison) www.vitra.com
Architectural Woodworking MillerBlaker millerblaker.com
Signage Graphic Systems Group gsgnyc.com

About the Author

No recommended contents to display.

Upcoming Events

  • Design Smarter: Leveraging GIS, BIM, and Open Data for Better Site Selection & Collaboration

    Live Webinar

    Register for Free
  • Slate Reimagined: The Surprising Advantages of Slate Rainscreen Cladding

    Webinar

    Register Now
  • The State of Residential Design Today: Innovations and Insights from RADA-Winning Architects

    Webinar

    Register for Free
All Events