On a site formerly occupied by George Lucas Industrial Light & Magic, RMW Architecture & Interiors has created a welcoming space for low-income patients.
George Lucas’ Industrial Light & Magic (ILM) has provided special effects for some of the major adventure movies of our time, including Star Wars and E.T. But when the company left its long-term lease on a collection of three warehouselike offices and model shops in San Rafael, Calif., it set the stage for perhaps an even more impactful production: Those nondescript buildings were bought by the county and turned into the Marin Health & Wellness Campus, a collection of public health facilities for the wealthy area’s low-income residents.
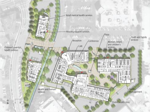
Owned by the county of Marin, the recently completed, $28 million project unifies public health facilities—including mental and physical health clinics, a conference center, and youth and family services—that previously had been scattered around the city.
In order to break down the mass of the ILM buildings, while at the same time creating a sense of unity, San Francisco–based RMW Architecture & Interiors created a campus of five buildings arranged on 5.8 acres of gardens and paved plazas. Curved trellises connect the buildings and help take the edge off of what was previously a boxy composition of spaces.
The architects also took the edge off the original buildings themselves, literally. “There was nothing precious about them,” says RMW principal Bart McClelland. “We didn’t feel bashful about lopping off the end of a building.” To make the environment more approachable and habitable, they added massive windows to the once-closed façades and skylights to the once-solid roofs. To unite the buildings with a common identity, the architects replaced the existing roofs with green prepatinated copper sheets and projecting sunshades. To give visual prominence to the central reception and conference facility, they created a two-story glass atrium that rises above the mostly single-story complex. The goal was to make these public spaces light and airy, McClelland says, and the push for still-pending LEED Gold certification—with its premium on daylighting—helped.
The campus itself feels more like a little community than a health center. Farmers markets are held in the plaza, and movies are projected on the walls in the summer—something the former tenants know a little something about. Maybe, just maybe, an Indiana Jones marathon is in the works.
1
of 10
Bernard Andr??
Marin County is an enclave of the rich and famous, but the new M…
Marin County is an enclave of the rich and famous, but the new Marin Health Wellness Campus focuses on providing health and family services for low-income residents. Bright colors, landscaping, and abundant daylight welcome visitors to a complex where consolidated city and community services are available with extended hours that accommodate work schedules.
Bernard Andr??
The campus' relationship with the surrounding streetscape has ch…
The campus' relationship with the surrounding streetscape has changed dramatically since RMW's overhaul. The original tilt-up, peaked-roof structures …
Bernard Andr??
… have been reclad in patinated copper and the roofs flattened…
… have been reclad in patinated copper and the roofs flattened, creating a much more dynamic street presence.
Bernard Andr??
The main reception space serves as a bridge between the campus a…
The main reception space serves as a bridge between the campus and San Rafael, the seat of Marin County. Entrances are set into glass walls on either end of the space. Clerestory windows and porthole skylights-in a ceiling clad with Ceilings Plus metal perforated tiles in a wood finish-introduce even more daylight.
Site Plan
Bernard Andr??
The tenants relocated from largely closed-plan environments to a…
The tenants relocated from largely closed-plan environments to a much more open-plan space. Standardsized cubicles were used in offices in all five buildings to ensure that as departments grow and shrink over time, the furnishings can be reused.
Bernard Andr??
While Lucas' company is known for creating drama on screen, its …
While Lucas' company is known for creating drama on screen, its offices didn-t exactly live up to this standard. The three original structures were featureless, tilt-up concrete warehouse buildings sitting in the middle of a sea of parking lot. Inside, the greatest highlights were the artistic scrawlings on the walls. 'It was an archaeological dig,' says RMW director of architectural design Stephan Ciulla. 'We found remains from before Star Wars. Years of posters and storyboards and characters. It looked like a fraternity house: There were posters on the wall and a lot of graffiti that the CG guys had left behind-glitter pen sketches on concrete walls.-
Bernard Andr??
The plazas and gardens create a community gathering space that h…
The plazas and gardens create a community gathering space that has uses far beyond the realm of healthcare. Farmers markets, movie showings, and public art displays invite area residents to interact with the campus even when they aren-t there for an appointment.
Bernard Andr??
The main reception lobby is differentiated by a raised and cante…
The main reception lobby is differentiated by a raised and canted roofline clad in the same patinated copper that appears elsewhere on the campus. Greenscreen trellis panels are attached to the courtyard walls so that-in time-the walls will be vegetated, furthering the idea of a community green space. Circulation from main reception to the public health clinic is delineated by a curving covered walkway-one of several on site-lined with brightly painted columns encased in perforated metal jackets.
Sam
Lubell has written five books about architecture: Never Built Los Angeles,
Julius Shulman Los Angeles: The Birth of a Modern Metropolis, Paris
2000+, London 2000+, and Living West. He writes for
Wired, The New York Times, The Los Angeles Times, Los Angeles Magazine, New
York Magazine, Wallpaper, Contract, and other publications. He
co-curated the A+D Architecture and Design Musuem's Never
Built Los Angeles exhibition in 2013. He is working on three upcoming books: Never
Built New York, Shooting Modernism, and Midcentury Modern Travel
Guide.