Lux Art Institute

Encinitas, Calif. / Renzo Zecchetto Architects

4 MIN READ
Renzo Zecchetto
 Principal 
 Renzo Zecchetto Architects

Credit: Jim Brady

Renzo Zecchetto Principal Renzo Zecchetto Architects

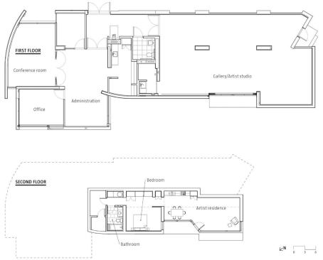
The Lux Art Institute, a nonprofit dedicated to environmental art, is creating a new home for itself in Encinitas, Calif., at the edge of the San Elijo Lagoon Ecological Reserve—a rare untouched coastal wetland in San Diego County. This sensitive landscape provided both the appeal and the challenge of building on the steep four-acre site.

Santa Monica–based Renzo Zecchetto Architects designed the institute’s new building to nestle into the hillside with minimal impact. The building—which houses a visiting artist residence and studio—is the first step in a larger project. A second phase will include a museum and administrative building. The entire project is slated for LEED certification.

Architectural gestures such as the four periscopelike concrete light scoops and a cantilevered roof that folds over the entrance are designed to maximize energy efficiency. The north-facing scoops bring daylight into the studio, while the cantilevered roof protects offices from southern and western sun exposure and heat gain. A large barn door in the studio slides open to provide natural ventilation, reducing the need for mechanical systems. Photovoltaic panels will be added in phase two, further reducing the building’s energy demands.

Energy conservation drove Renzo Zecchetto’s material choices and led him to search for local manufacturers. “We design for green in the long run,” he says. “We assess the life span of the building, not the capital investment.” Zecchetto looks carefully at the energy consumption of the products that he specifies. “It is important to utilize materials in their natural state,” he explains. “Raw concrete, solid-state lighting, UV glass, and no paints, chemicals, or solvents.” True to this philosophy, Zecchetto specified cast-in-place concrete and plaster walls with integral color. Other products integrate recycled materials: The teak panels on the building’s exterior are embedded with recycled plastic, and the concrete masonry unit (CMU) blocks in the basement are composed of aggregate salvaged from demolished roads.

“There are a lot of incredible materials nowadays: composites, countertop materials like CaesarStone, cement fiber boards,” says Zecchetto. Getting information from manufacturers is critical, but given the current eco trend, it can be tough to sort green from greenwash. A keen awareness of all the sustainable processes that go into construction, from the fuel needed for transportation to high-efficiency lightbulbs, will set the course of future green building. At the edge of the San Elijo Lagoon, these small moves add up to an environmentally responsible building in keeping with the Lux Art Institute’s mission.

Project: Lux Art Institute
Location: Encinitas, Calif.
Client: Lux Art Institute
Architect: Renzo Zecchetto Architects, Santa Monica, Calif.
Project Manager: Campbell-Anderson & Associates
Civil Enginner: Aquaterra Engineering
Landscape Designer: California’s Own Native Landscape Design
Structural and M/E/P Engineer: TMAD TAYLOR & GAINES
Size: 4,090 square feet
Costs: $1.9 million

PRODUCT SPECS

Exterior Underground pipe and fittings
Diamond Plastics Corp.
dpcpipe.com

Underground pipe and fittings
Ferguson Enterprises
ferguson.com

Underground pipe and fittings
Fast Fabricators
fastfab.com

Underground pipe and fittings
Tyler Union
tylerunion.com

Underground pipe and fittings
Christy’s
tchristy.com

Rebar
Minshew Brothers Steel Construction

Concrete
Palomar Transit Mix Co.

WRDA 64 concrete admixture
Grace Construction Products
na.graceconstruction.com

Concrete
California Portland Cement Co.
calportland.com

Concrete pigment
Davis Colors
daviscolors.com

CMUs
RCP Block & Brick
rcpblock.com

CMU rebar
BlueLinx Corp.
bluelinxco.com

CMU grout ready-mix concrete
Robertson’s
rrmca.com

Structural steel
Steel Dynamics
steeldynamics.com

Below-grade waterproofing HDPE/bentonite sheet membrane
Tremco
tremco.com

TREMDrain drainage board
Tremco
tremco.com

Fiberglass insulation
Owens Corning
owenscorning.com

Four-ply gravel-surfaced fiberglass built-up roof
Johns Manville
johnsmanville.com

Metal lath
Western Metal Lath
wmlinc.com

Exterior cement stucco
LaHabra Stucco
lahabrastucco.com

Fiber-reinforced stucco base
LaHabra Stucco
lahabrastucco.com


Windows and Doors Wood-veneered door
Pacific Architectural Wood Products

Glazing
Tierra Glass Co.

Dorma 5000 Series exit device
Dorma
dorma.com

JT 08 exterior door hardware
Dorma
dorma.com

LM Series exterior door hardware
Dorma
dorma.com

RTS88 exterior door hardware
Dorma
dorma.com


Finishes Ceramic tile
Waterworks
waterworks.com

Glass tile
Walker Zanger
walkerzanger.com

Countertops
CaesarStone
caesarstone.com

4133 surface-mounted pocket roller shades
MechoShade Systems
mechoshade.com


Plumbing and Fixtures Toilet-paper dispenser
Bobrick
bobrick.com

Stainless steel grab bar
Bobrick
bobrick.com

Paper towel dispenser/waste receptacle
Bobrick
bobrick.com

Recessed toilet seat cover dispenser
Bobrick
bobrick.com

K-3519 toilet
Kohler
kohler.com

017109 toilet
Duravit
duravit.com

K-2210 lavatory bowl
Kohler
kohler.com

Commercial Line lavatory bowl
VitrA
vitra-usa.com

12200 lavatory
Cabano
cabanobath.com

786-E3-665 faucet
Chicago Faucets
chicagofaucets.com

K-515 bathtub
Kohler
kohler.com

1109.14BP drinking fountain
Haws Corp.
hawsco.com

Water heater
Bradford White Corp.
bradfordwhite.com


Paints and Coatings Interior paint
Frazee Paint
frazee.com

Enviroseal 20 concrete sealer
BASF
basf.com

Silicone building sealant
Dow Corning
dowcorning.com

Sikaflex-15 LM
Sika Corp.
sikacorp.com


HVAC Infinity 96 gas furnace
Carrier Corp.
carrier.com

Infinity 17 air conditioner
Carrier Corp.
carrier.com

Slot air diffuser
Titus
titus-hvac.com


Lighting SN strip fluorescent lighting
Lightolier
lightolier.com

LC downlight
ERCO
erco.com

FD16 downlight
Indy Lighting
indylighting.com

ES-1 wall light
Louis Poulsen Lighting
louispoulsen.com

Yosemite and Saratoga landscape lighting
B-K Lighting
bklighting.com

Track lighting
ERCO
erco.com

LC Lens wallwasher
ERCO
erco.com

Reef 360 bollard
Simes
imes.it


Fire Protection Royal Flush II fire protection
Tyco International
tyco.com

Horizontal sidewall sprinklers
Tyco International
tyco.com

About the Author

Mimi Zeiger

Mimi Zeiger is a Los Angeles-based journalist and critic. The author of New Museums, Tiny Houses and Micro Green: Tiny Houses in Nature, she teaches in Art Center’s Media Design Practices MFA program and is co-president of the Los Angeles Forum for Architecture and Urban Design.   

No recommended contents to display.

Upcoming Events

  • Design Smarter: Leveraging GIS, BIM, and Open Data for Better Site Selection & Collaboration

    Live Webinar

    Register for Free
  • Slate Reimagined: The Surprising Advantages of Slate Rainscreen Cladding

    Webinar

    Register Now
  • The State of Residential Design Today: Innovations and Insights from RADA-Winning Architects

    Webinar

    Register for Free
All Events